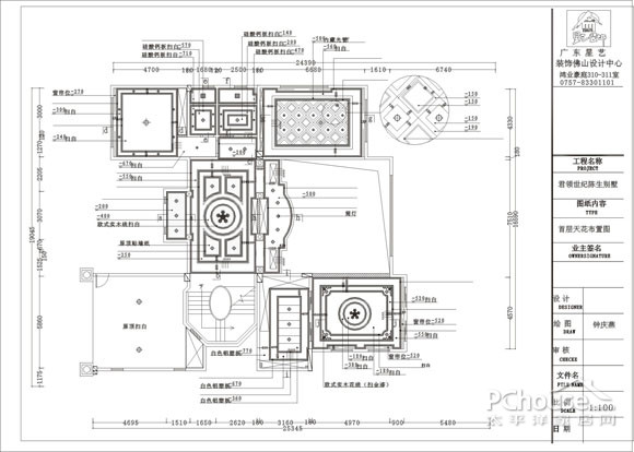
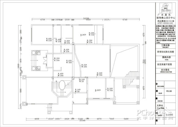
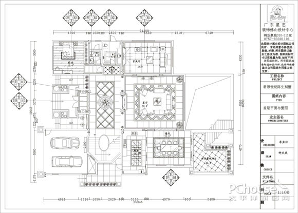
前言: 本案以暖色为装修主色调,运用石膏托头、彩绘玻璃、暗纹墙纸、铁艺、油画等元素,很好地营造出一种古典欧式气氛。而大厅的宫廷式水晶吊灯,天花顶的镀金装饰,墙身大面积大理石,石线的运用及处处精益求精的细节处理,再配以古典华丽的欧式家私恰到好处地显示出欧式风格的奢华。
客厅
其他
网友评论

李孟秋