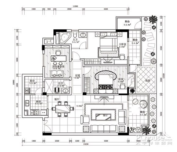
前言: 主人偏爱浅色系的家具,所以在厨房和客厅的布置上,都采用浅色系的搭配,无论是客厅的地板和沙发,还是厨房的橱柜到水龙头,都遵循着现代简约的原则。
相关案例推荐
网友评论

李孟秋
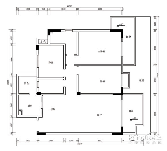
前言: 主人偏爱浅色系的家具,所以在厨房和客厅的布置上,都采用浅色系的搭配,无论是客厅的地板和沙发,还是厨房的橱柜到水龙头,都遵循着现代简约的原则。
相关案例推荐
李孟秋