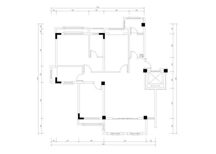
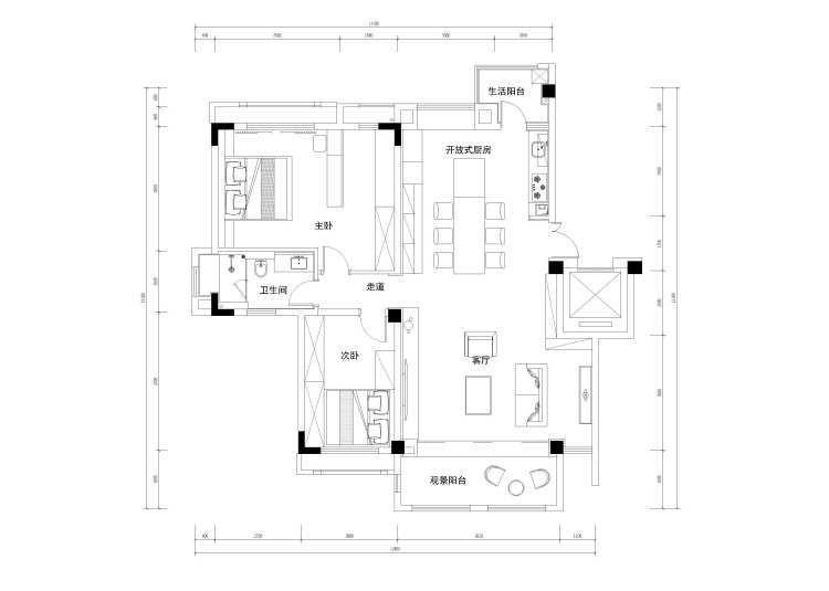
其实这个案例比我发的上一个案例完成的更早,也是我手上造价最低的一个案例(大概全屋所有70+)。先看平面吧,这个是一个女性业主的临时居所,就她一个人和保姆。所以把建面120平的房子从三居室改成了两居室,并取消了一个卫生间。改完如下图
原始户型图,三室
改造户型图,两室
先从客厅开始说吧,第一张图是用手机拍的和SU的一个对比,可以理解为方案还原度的重要性
其实这个客厅非常大,由于业主不怎么对外接待,所以我故意选择了一套小沙发,这样居中布置沙发,会让家具更有陈列感,同时增加呢洄游动线和艺术品陈列空间,提升空间的品质感。
这个地台想特殊说明一下,由于阳台只有1.8米进深,所以是无法摆上围坐的茶桌的,所以增加呢这样一条600宽的白色石材,拓宽了整个阳台区的宽度
这是给业主设计的实木柜子,但是比较遗憾的是我在选料的时候没有介入,造成选到了当年花纹比较碎的原料了,造成整个柜子的纹理不理想
由于业主也是外企高管,常居国外,所以餐饮习惯比较偏欧美,所以选择了开放式厨房,业主很喜欢这个空间,办公和朋友聚餐都在这里完成。
这张餐桌也是我们找木质加工厂定做的,由于吸取书柜的教训,这张桌子在选料的时候就非常注重纹理的表现力,如图
主卧室同样,背景墙由于太麻烦,被业主自行简化了,全是木地板上墙
这张妆台,也是我们设计并定制的实木家具,上面摆满了业主的各种化妆品,家里所有的装饰画也是我们选的,淘宝上业主自购
相关案例推荐
NexxtDesign

粤公网安备 44010602000156号