前言:
在北京西山脚下一个老旧小区的一楼,一套95㎡的两居室正静静等待着新生。即将迎来新生命的屋主,需要为父母和孩子打造一个温馨的居所。
然而,这个南北通透的户型却暗藏bug:一楼、面宽窄、13.5米的超长进深让这个“一线天”两居变得昏暗窄长。
如何在处处承重结构的前提下,改出三间卧室?还要保证采光、通透感和三代人的独立空间?
我们在客厅植入一个儿童房盒子,为了减少新增空间对公区的挤压,盒子调整45度斜角,旋转放入,创造性地打造出双喇叭口视角,让这个窄长户型实现了惊人的视觉放大术,交出了一份惊喜的答案。
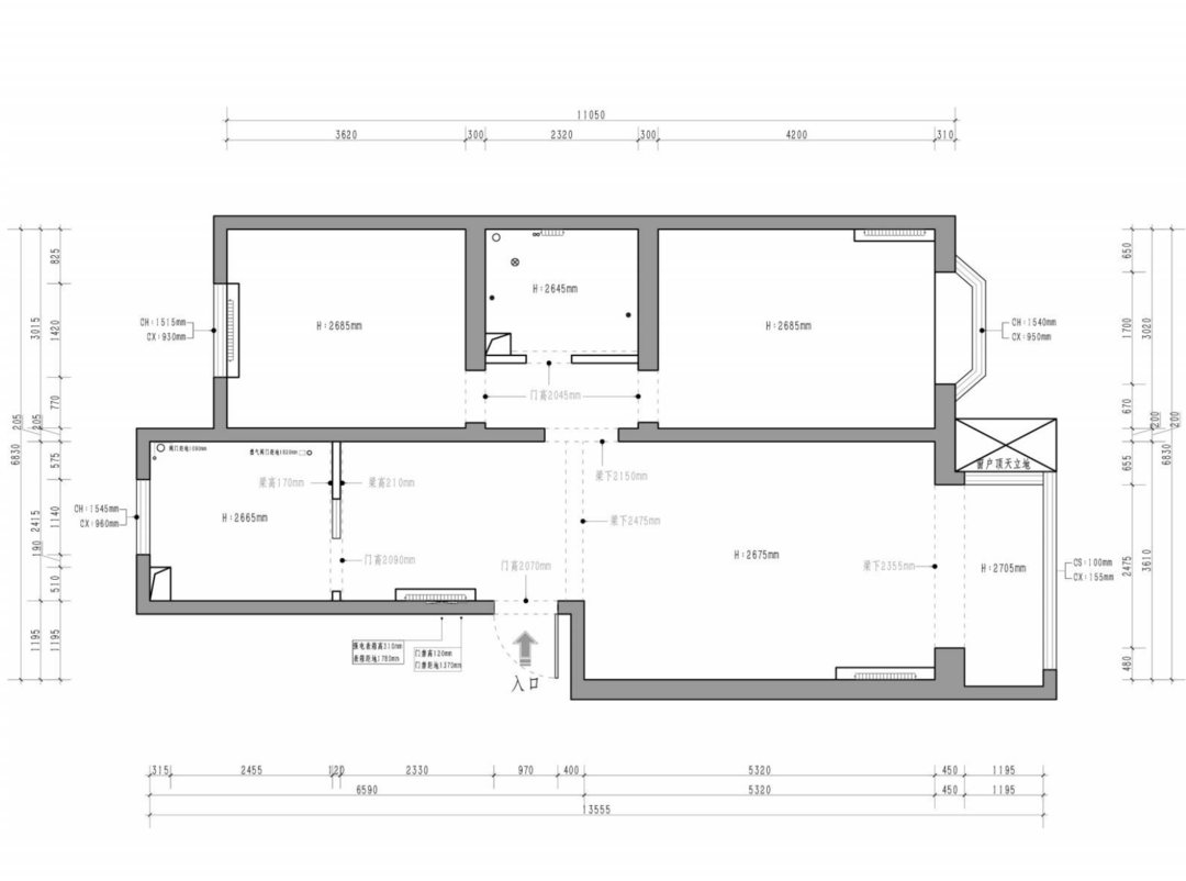
原始结构图
在北京,很多老小区为了提升室内保温效率,户型呈现典型的“窄长条”,这个房子就是其中之一:南侧餐厨面宽2.4米,北侧客厅面宽3.6米,进深长达13.5米,加上位于一楼,采光本就受限,更显昏暗。
业主三世同堂,需求却非常明确:
•增加一间儿童房;
•保持客厅开阔感;
•保证全屋通透;
•新增一间衣帽间。
常规做法只能在客厅硬隔出一间房,越隔越暗、越隔越堵。
当主案设计在图纸上轻轻旋转那个代表儿童房的小方块45度时,整个空间的命运就此改变。
这个看似简单的动作,实则是经过精密的空间尺度推演后的决策,房间内最宽处2.46米,能放下儿童树屋+休息角,内部过道也有足足90公分以上。
平面图
盒子两面还设置移门 + “小拱洞”的双入口,通风好玩又好用。
斜插入客厅的儿童房,像将南向的阳光折射到客厅深处。
盒子的外立面墙体由两种材质砌成。玻璃砖砌筑的上半部分,则让光线得以继续它的旅程。
下半部分是南向迎光面的小蓝砖,像一汪清澈的湖水,散射光线,提升空间的明亮度,整面墙波光粼粼。
移门边缘和斜切转角也处理成弧,避免阳角产生磕碰。
儿童房内部,除了容纳儿童床,角落里预留的三角卡座成为了妈妈以后为孩子讲睡前故事的温馨角落。
树屋上下铺也为孩子玩耍,以后的大人陪伴孩子睡觉,二胎做一些未来性的设想。
房间两个入口的设计让儿童房流动起来,孩子可以玩捉迷藏,又能给空间内部通风透气。
旋转后的墙体自然形成一个喇叭口的视觉效果,原本局促的客厅突然有了纵深感。
悬浮式的细窄书柜和量身定制的卡座沙发,进一步强化了这种通透感,让每一寸空间都物尽其用。
客厅是三代人最好的放松地,为了满足更多座位,沙发框架和阳台地台一体定制,卡着阳台垭口定制成L型座面,沙发横向长度130公分,纵向65公分,横向98公分,深度70公分,比常规沙发省地20%。
沙发下面留空31公分,用来放收纳筐,玩具随拿随收。阳台抬升做地台,也成了瑜伽、阅读、陪玩三合一区。
沙发的尺度也不影响儿童房拱门的开合,即便是大人出来也不会拥挤。
沙发对面是移动电视配超纤薄悬式书架,墙面预埋加固钢板,钢板置物的承重强却视觉轻盈,3.4米长也不显压抑。
整个空间的地面都是浅色莱姆石,增加空间的自然感,小尺寸拼贴方式增强空间延伸感。
北侧的餐厨区面临着更大的挑战,2.45米的面宽意味着传统的布局方式在这里完全失效。
我们给出的解决方案,定制一张2米长、65公分宽的窄岛台,集餐桌、备餐台、收纳柜于一身,好用方便。人坐下后,过道的宽度还能过人。
岛台尺寸图
岛台的一侧紧挨着改造后的玻璃门厨房,炒好的菜转身就能上桌。
厨房用的这种隔断式金属复古门,是水波纹,关上是透光的,让北边暗厅”焕发生机。
厨房是好用的U型布局,电器都集中在左侧,中间洗菜区,右边烹饪区,洗衣区也放进了客厅,上下水方便顺势解放卫生间面积。
卫生间是全屋最暗处,拆除了原先封闭式“混卫”,走廊做了朝上照明的线灯。
浴室分成了内外区,重组为高效的四角动线。
外区左侧是洗漱台,悬浮洗手台,不留卫生间死角,局部红色点亮蓝色基调,右侧是隔断柜,造型犹如屏风,柜子朝淋浴房打开,方便存放浴巾、护肤品、补货用品。
柜子细节
内侧分两区,左边马桶间,右边淋浴房。
内部都是清爽的蓝色基调。
北向卧室是老人房,靠窗加厚床头做半墙,作为老人起夜的扶手,上面加了一层红色金属支架,兼具床头置物功能,旁边整墙衣柜满足收纳,布局简洁安静。
主卧门口隔出了一个独立衣帽间,超窄房遵循一个杂物能放外面,绝不进卧室。
主卧床尾也做了金属架衣柜,堪比第二间步入式衣帽间,里面隐藏办公区,帘子一拉,保持空间干净松弛。
轴测图
这套95㎡的两居改三居,没有砸墙扩面,没有牺牲采光,更没有拥挤压抑。有的,是斜角儿童房带来的灵动视角,是玻璃砖墙引光的温柔,是定制家具对尺寸的极致尊重,是每一寸空间都被真正“用”起来的巧思。
在这个家里,每个成员都能找到属于自己的角落,又能相聚在明亮的公共区域。三代同堂不是将就,而是用设计让每个世代都能舒适地生活在一起。
相关案例推荐
北京七巧天工设计
设计师相关作品
编辑精选

粤公网安备 44010602000156号