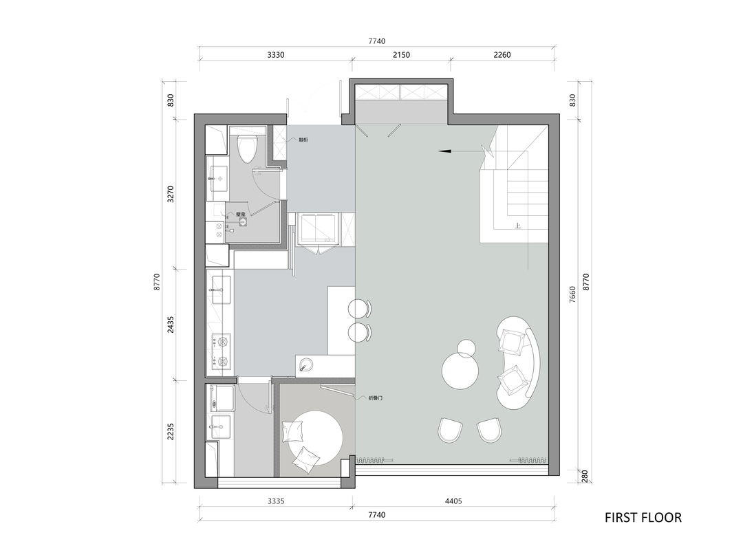
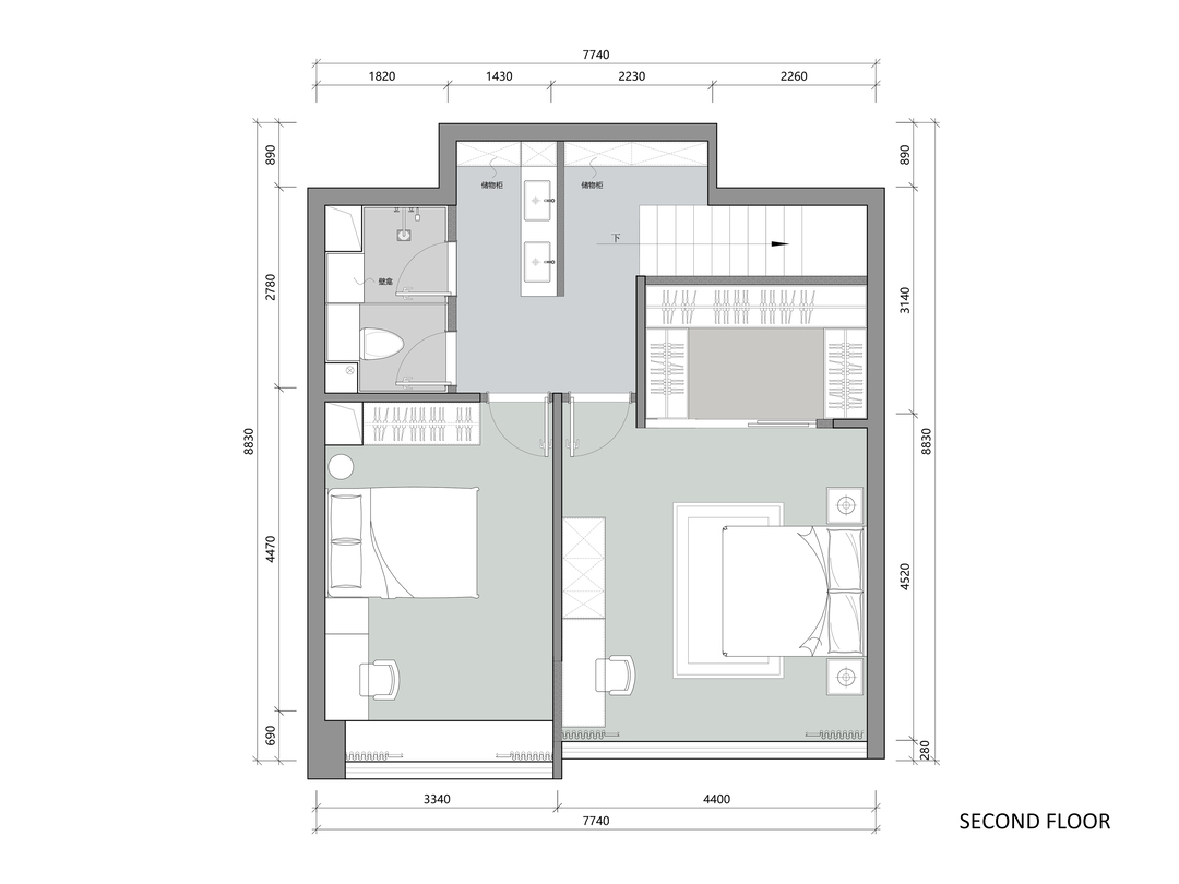
前言: 一楼通过深色与浅色的体块对比划分出功能区与休闲空间。左边深色区域集中了卫生间、玄关、厨房、生活阳台以及小健身区多个功能区域,客厅则规划到了右边的浅色区域。二楼做了三分离的卫生间,将上楼梯的玄关与盥洗台结合。
玄关
玄关柜体与卫生间门结合,用深色的材质将其统一起来,干净清爽。选用简约黑白几何抽象装饰画,以大块面的笔触与肌理感丰富入门处的视觉感受。米奇是业主和家人在香港旅行时购买的,将旅行的回忆延续到新的空间。
客厅
打破传统客厅“沙发+茶几+电视”的布局,选用体量较小的家居单品,可根据需求随意调配,实现空间的多功能性,融合家庭、娱乐和生活。
亚克力与环保板材结合的置物架,不仅为空间带来收纳展示功能,还以简洁利落的外形与空间的黑白线条相呼应。
厨房
与客厅不同,厨房餐厅区域则以黑色为主调。这个区域就像一个黑色盒子嵌入空间之中。厨房内设置了推拉门,打开时可扩展空间,关闭时则可隔绝油烟。岛台的设置增加了操作区域,同时也可作为用餐区域。
相关案例推荐
网友评论
季意空间设计
设计师相关作品

粤公网安备 44010602000156号