前言:
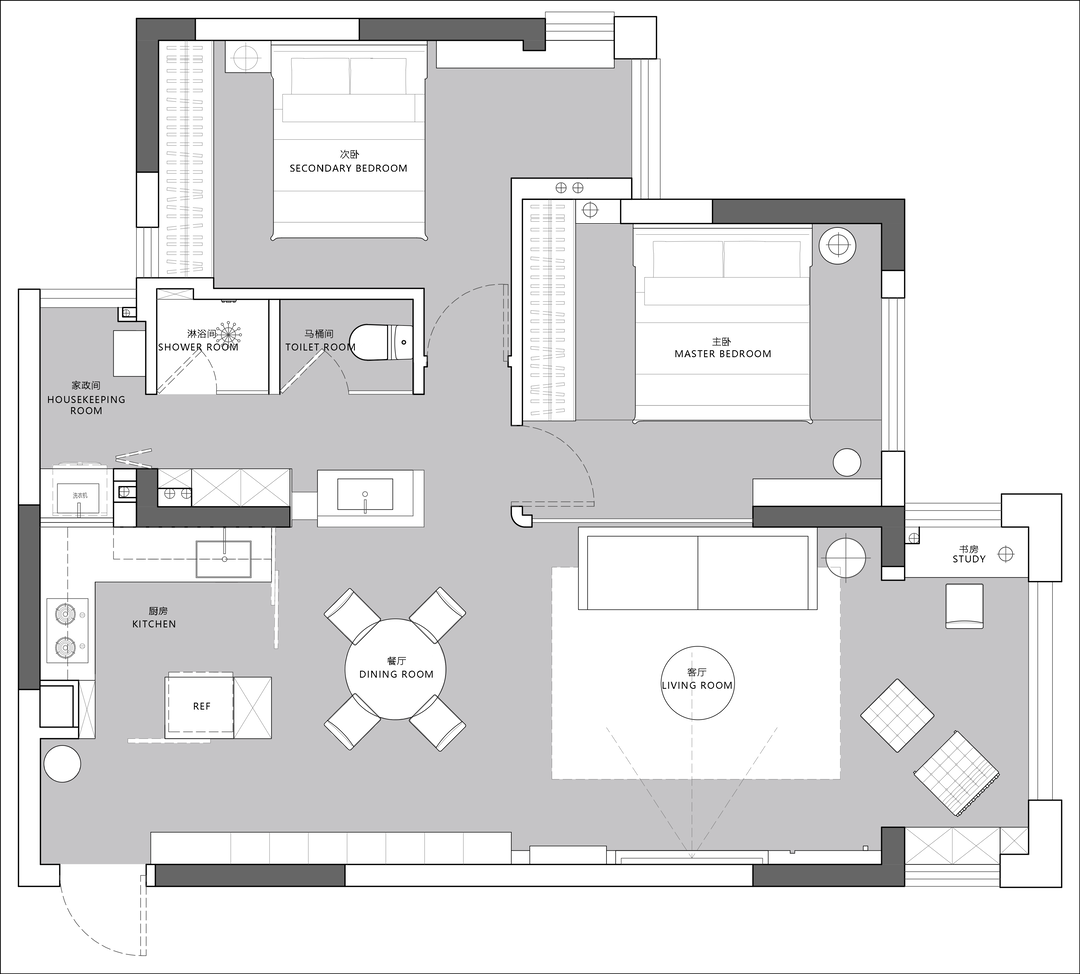
原始 89㎡两居存在户型局促、动线单一、厨卫空间狭小等问题。基于客户保留 2 卧、追求开放公共空间及多互动回游动线的需求,以 “空间重构、功能复合、质感营造” 为核心理念,运用木饰面、水泥艺术漆等材质,融合极简与松弛感风格,打造通透、多功能的全周期居住空间。
打破传统分区,将厨房、餐厅、客厅贯通为超级公共区 。厨房采用半开放式 + 扩大操作空间,买菜回家动线,进出餐厨动线,通过木饰面与水泥艺术漆的材质延伸,自然衔接;客厅取消多余墙体,与主卧通过玻璃隔断 + 窗帘实现 “通透 - 隐私” 双模式,构建 “社交型” 互动场域,适配聚会、亲子交流。
将原狭小卫生间拆分为 “洗漱区、马桶区、淋浴区”,干区外置浴室柜(悬浮浴室柜挂装墙面 + 悬浮镜柜),满足多人同时使用;增设家政柜(集成收纳),打通 “洗衣 - 晾晒 - 收纳” 家政动线,提升空间利用率。
客餐厅
相关案例推荐
网友评论
成都集间设计
设计师相关作品

粤公网安备 44010602000156号