前言:
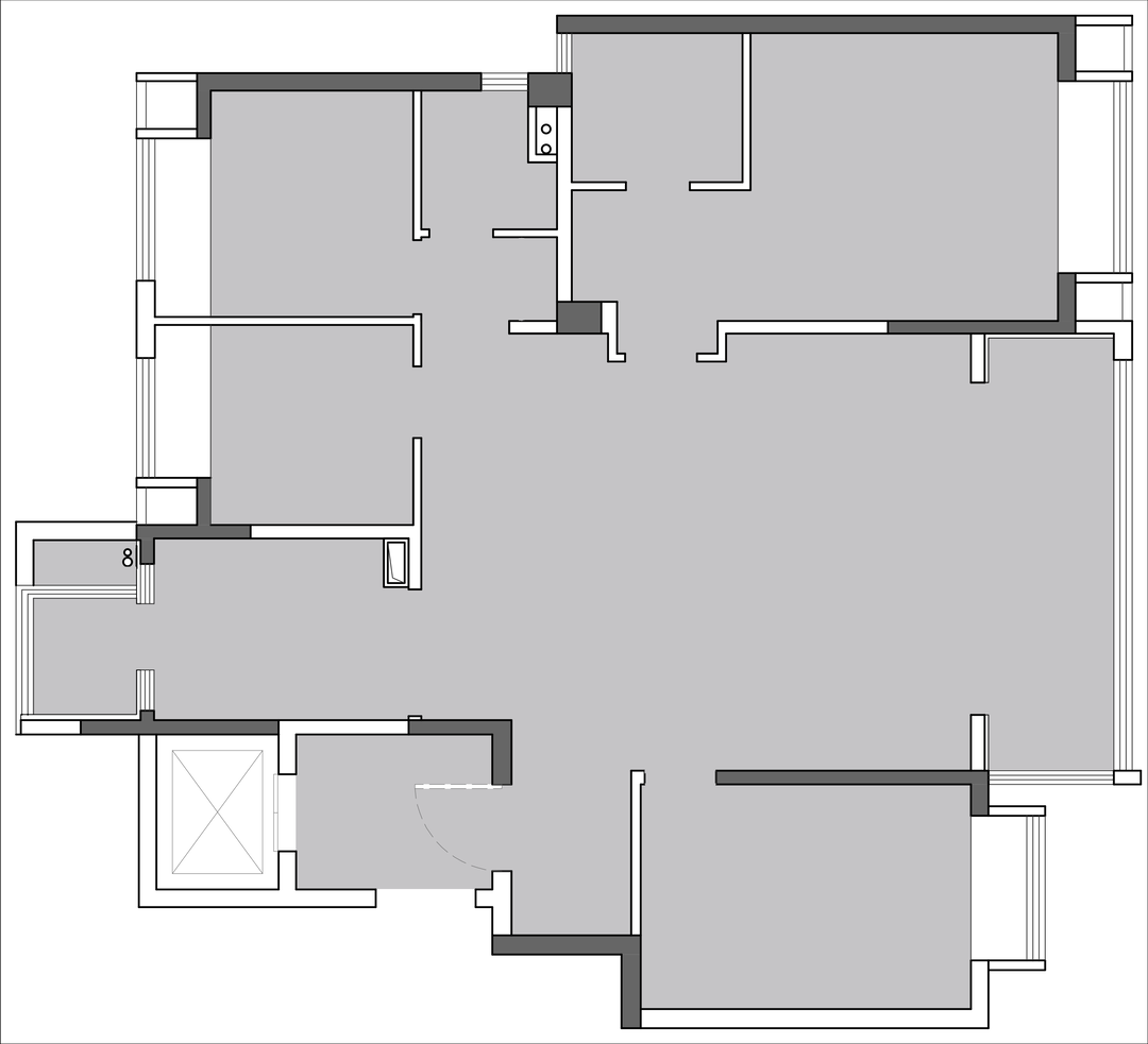
原始 140㎡四居存在户型局促、动线单一、空间利用率低的问题。基于客户保留 3 卧 1 书房、预留儿童房,追求开放公共空间、多动线互动及回游动线的需求,以 “空间重构、功能复合、风格融合” 为核心理念,运用柚木、清水混凝土等材质,融合中古与包豪斯风格,打造适配全周期生活的多元居住空间。
打破传统分区,将厨房、餐厅、客厅贯通为超级公共区 。厨房采用中岛 +半开放式设计,与洗衣房串联,形成 “备餐 - 烹饪 - 清洁” 一体化流程;餐厅与客厅无硬性隔断,通过柚木与清水混凝土的材质拼接,自然划分空间,构建 “社交型” 互动场域,满足聚会、亲子交流等场景。
规划环形回游动线,串联入户玄关、公共区、多功能书房区与。入户后,可经玄关→客厅→餐厅→书房→卧室区形成环线,客厅沙发与餐桌对望的布局,沙发与岛台,岛台与多功能书房,书房与厨房折叠窗的联动。形成多洄游的空间动线,破解单一动线弊端,增强空间流动性与家人互动性,让不同区域活动自然衔接。
相关案例推荐
网友评论
成都集间设计
设计师相关作品

粤公网安备 44010602000156号