前言: 这个家的业主是一对热爱电竞,喜欢收藏公仔的年轻夫妇,他们希望自己的新家简单、干净、易收纳。结合房屋特点和业主的习惯爱好,我们以极简风格作为这个家的衬底,往上叠加他们的兴趣爱好,最后呈现的这个家既有极简风的干净利落,又有别具一格的个人居住趣味。
主要改动:
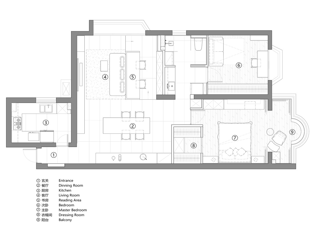
1. 将原始客厅局部抬高,改造为书房&电竞区,并用亚克力打造出一面会发光的公仔展示墙;
2. 取消通往主卧的走廊,优化动线,并在主卧新增了衣帽间;
3. 让渡部分次卧面积给到卫生间,打造出使用体验更佳的三分离卫浴。
进门右侧做了内置的玄关柜,柜门选用镜面不锈钢。镜面元素通过反射可以在视觉上很好地“扩容”,避免进门就被小空间束缚的压抑感。地面用马赛克拼出了业主喜欢的公仔chiikawa的图案,让他们每日的归家提供仪式感和好心情。
从公区望向玄关的视角,顶面柔和的灯带搭配大面积的镜面不锈钢,小玄关的闭塞感很大程度被消解。
沿墙打造出4米长的餐边柜作为水吧台,收纳量和台面使用面积都十分充足。餐边柜一侧台面下方特意留空,为业主的猫砂盆留出位置。
因为业主夫妇十分热爱电竞,为了契合他们的爱好,我们将正对客厅电视的区域做了抬高,打造为他们的电竞房&书房。在施工过程中,特地预埋了加长线,连接电脑和电视两端的游戏设备。
书桌背后的公仔展示墙是公区视觉的中心。黑色体块存在感极强,亚克力材质打造出规整的方格造型,在灯带的映射下,发光的亚克力方格如同科幻的光盒阵列,既具科技感又富有艺术性。
餐灯特意选择这种透明的球形吊灯,宛如一个悬浮的星球,给这个电竞之家增加了一份独特的科幻感。吊灯内的颜色也与电竞房的壁灯颜色产生呼应。
客厅让出部分面积给电竞房后,只保留最基本的电视,电视柜和沙发。通长的悬浮电视柜解决客厅的杂物收纳,靠近窗户的顶天立地柜预留了透气的孔洞,用来收纳业主的游戏设备。
原卫生间是面积不大的二分离,次卧部分面积让给卫生间后,我们将这里打造为使用体验更佳的三分离卫浴。洗手池墙面上蓝色的美缝线给这个简约的空间注入了活泼的气息。
相关案例推荐
Till Studio耕造设计工作室
设计师相关作品
编辑精选

粤公网安备 44010602000156号