前言:
本案是一个126㎡的两居室,业主是一对审美独到的年轻人。
在结构可改动不多的情况下,结合业主的习惯与喜好,我们最终在这个家里实现了开阔的大门厅、超长的餐岛一体、悬挑的酒吧台、流畅延伸的客厅、带洄游动线的主卧、有美好景观的阳台泡澡区……
全屋大面积采用北美FAS级别的黑胡桃木天然木皮,搭配些许米色洞石和混凝土材质,黑胡桃木低调沉稳,洞石与混凝土粗犷原始,在精致与粗糙的碰撞中打造出戏剧性。
从功能到颜值都将这个家改头换面,打造成专属于他们的理想居所。
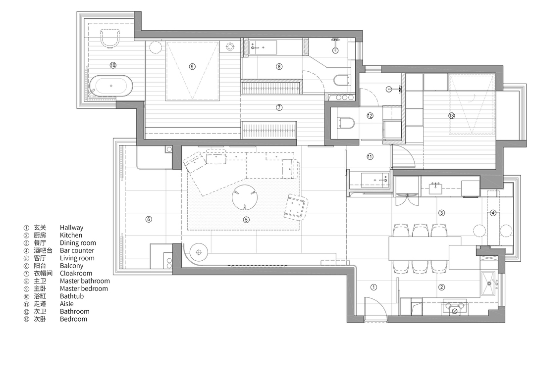
1. 玄关后撤,新增墙体打造大门厅,墙体后方作为客卫洗手区;
2. 拆除厨房墙体,打造餐厨一体空间,可伸缩餐桌+岛台方便多人聚餐;
3. 利用餐厅和厨房之间的承重结构打造悬挑酒吧台;
4. 用超长电视背景墙和沙发背景墙消解客厅大长厅的无聊感,猫爬架和家政柜则安排在阳台;
5. 拆除主卧原始衣帽间,围绕房间中央的衣柜形成洄游动线,串联主卧各大功能区,浴缸移至主卧阳台打造个性泡澡区;
6. 次卧设计为多功能间,藏了一张墨菲床,不用时收起;
7. 借玄关新增的墙体,将客卫洗手池外移,同时在干区安排了洗烘套装。
我们以将整个玄关后撤,用新砌的墙体作为入户端景,打造出一个尺度开阔的大门厅。
入户第一眼便是黑胡桃木与米色洞石的碰撞,奠定了全屋的材质主题。这堵背景墙与客厅以及餐厨空间的材质呼应让空间实现自然过渡,削弱了原始户型中餐厅与客厅的错位感。
客厅阳台一体,是个进深足足有5.8m的大长厅,这样的大长厅需要创造出延伸感,整个空间才能像画幅一样被徐徐打开。电视背景墙从阳台延伸至入口和餐厅,沙发背景墙也从阳台延伸到两个卧室的入口,视觉上的连续让整个空间的线条流畅、利落、优雅。
沙发背景以整墙黑胡桃实木贴皮覆盖,凹凸的装饰体块与通往卧室的移门相呼应,使移门更好地融合于整体墙面之中。
拆掉厨房墙体后,空间足足有4.7m宽,轻松容纳中厨、餐桌岛台、西厨水吧台三大功能区,餐桌两侧还能留出宽敞的通道。2m的餐桌,90cm的岛台,坐10个人也没问题,完全可以满足业主在家聚餐的需求。
利用承重墙上做悬挑结构,把餐厅的小阳台变为日常小酌的酒吧台。
厨房与餐厅之间有一堵承重墙,我们刻意保留了墙体端头,补浇水泥使其更为平整,米色洞石的岛台穿插其中,黑胡桃木、洞石、混凝土三种材质在此形成强烈的反差,在精致与粗糙的冲突中打造出丰富的视觉体验。
浴缸从卫生间移到了卧室阳台,梳妆台也安排在这里,拾高了200mm的地台既可以增加空间层次感,消解高度过高的窗台,同时还能方便浴缸上下水管的排设。
相关案例推荐
Till Studio耕造设计工作室
设计师相关作品
编辑精选

粤公网安备 44010602000156号