前言:
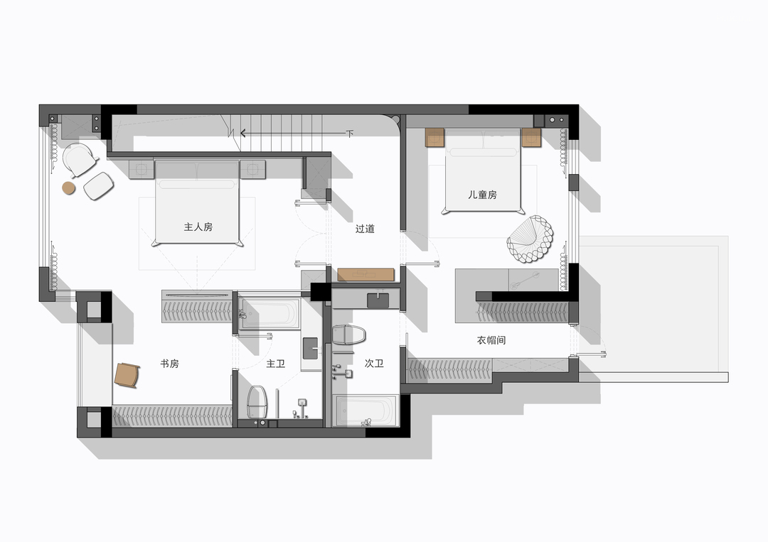
这栋叠拼别墅是一对户外爱好者屋主的改善型住宅。本项目源于屋主对「理想家宅」的深层思考——既要满足户外爱好者的探索热情,也要守护家庭生活的温暖日常。户外运动狂热者与居家生活需求间如何建立动态平衡,需要重点解决四大矛盾:户外爱好者与居家生活的平衡、老幼群体活动半径的差异化需求、公共娱乐与私密休息的互不干扰、多重兴趣爱好的有机整合。
通过空间重组构建三代同堂的互动关系,以生活习惯为导向进行有针对性的分区设计,构建「专属领域+共享空间」的复合型结构,实现私密性与归属感的共生。
相关案例推荐
网友评论
胡真滔
设计师相关作品

粤公网安备 44010602000156号