前言:
关于家的探讨
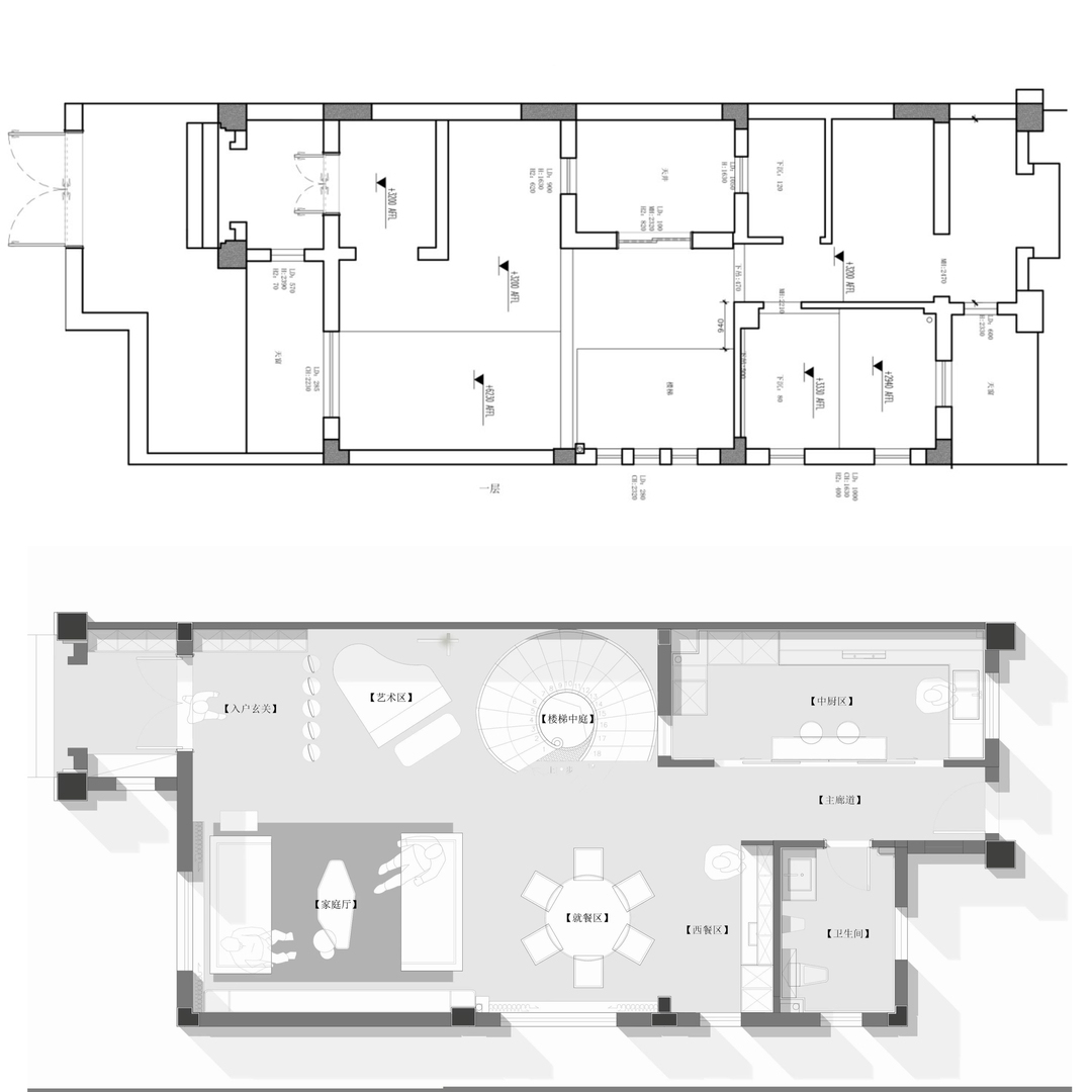
通过空间的界限去传递
家与人的情感,人与物的寄意
三餐四季,舍弃繁奢
在旋转交错之间感知家人之间的温馨
业主说:希望客厅是阳光的,是温暖的,是书香琴韵的,所以设计师去掉了电视机,去掉背景墙,去掉无用的装饰和功能,一家人在这里享受其乐融融,享受岁月静好!
两位大家长真的很爱看书,开放式书架以粗旷岩石&温润木质塑写,然后被丰富的日常填满,面立而坐的家人“会谈”也多了一分文人气质.
生活怎么能缺少音乐呢?钢琴、吉他....当温柔的光线洒落在沙发,柔软的地毯上坐着欢聚的家人朋友,一起奏弹着熟悉又美妙的音乐.
随便再来几个人,这个地方也能坐下,开放式圆桌餐厅给足了这个家的温馨感,皮质的舒适感是男业主特意嘱托的.
自然采光和新鲜空气从旁边的窗台不断涌入,是他们想要的阳光呀!隐形收纳则让空间有一种很好打扫的舒适澄澈感,屋主说,两位小朋友都能多吃了一碗饭了.
金属灯罩加上暖色灯光,将光线散落四处,就餐都有独特的光芒在里面,灯光的映衬,让氛围更舒适平和,在六口之家团圆围坐吃饭的欢声笑语中,感知生活的温暖.
位于三楼的主卧,是两位当家人的私密空间,生活的慵懒在这里舒展开,床头以卷轴为屏,除了温润的木,我们提取大笔触的山水墨痕,介以涂料来表达,两位业主大大喜欢家里有生命的味道,能感受到自然与文人的呼吸,比如温润的木,自给自足.
看起来没有过多装饰的卧室,是两位长辈休息的最佳地方,一幅画&一盏灯会陪伴很多个日夜,但它也有隐藏起来的嵌入式灯带,恰到好处的舒展卧室的安静感.
大闺女的卧室,用一种仙气弥漫的留白藏起一个墙面,天鹅绒肌理艺术涂料从地面攀爬蔓延,打造一个甜美版的蓬莱仙境.
悄悄走进小女儿的卧室,当清透的纱窗飘落,一轮日出升起,就把这里当做一个小书房,小朋友经常在这里看看书、听音乐、阅读.... 睡意袭来时,休息区就近在咫尺
负一楼的客房拥有独立的阳光休闲区,坐在卧室也能轻松晒太阳,空气中都是自由温暖的感觉,这个只用来睡觉的卧室也很讨喜,多了一分民宿休闲风.
这个书房只属于男女主人,书柜延续二楼书房的斜角度几何收纳,“边学习工作边享受阳光的温暖”是办公人的放松方式,现在它的实现为屋主提供了更舒适的氛围.
二楼的开放式书房,当黑板轨道门滑向另一端,一门多用让书柜收纳展示更多变,家长也能以讲课式辅导两位小朋友的功课,就算是来了爱捣蛋的小朋友,一只笔就能安静下来.
上下楼时间比较多,让过程变得有仪式感是很有必要的,微水泥旋转楼梯,衔接的是地下两层楼上两层的距离,简洁流畅的线条像钢琴的起伏的音乐线.
闲置天井的废物利用效果还不错,随着音符跳动,木质与微水泥相互交融间,两位翩翩公子&四位楚楚佳人,踩着感应式灯光,一步一步静享时光,随时的感受电视剧般的闪亮登场.
相关案例推荐
时一设计
设计师相关作品

粤公网安备 44010602000156号