前言: 后疫情时代,人们开始更多地关注与审视家的重要性,作为家族居住与团聚的重要载体——祖宅,开始被重新定义。生活在城市里的年轻人希望能抽出更多的时间与父母团聚。过往的回家场景,更多的时候像是在完成一种流程,这其中,老的家宅对于逐渐增加的家庭人口以及快速迭代的生活需求难以匹配成为了核心原因之一。这次我们面对的祖宅改造正是在这样的大背景下被提出来的,顾家祖宅建于上世纪90年代,由于工作原因,近20多年房屋除承担传统节日祭祖的功能之外,属于几乎无人居住的状态,导致基础功能缺失,甚至难以满足基本的居住需求,使得业主每次返乡都变成了匆匆之行。业主希望新的祖宅能兼顾三代人不同的生活习惯,显著提升居住品质与舒适度,更好的匹配当下的生活需求,使返乡之旅不再是难熬的时光。同时需要保留老宅在传统文化中的必要功能。
设计要求:
1.设置坡屋面,提高室内隔热保温效果,减轻屋面排水负担。
2.保留堂屋祭祖功能,一楼设置老人房。
3.两层各设置一个卫生间。
4.二楼为主卧及儿童房。
原建筑缺点:
1.三开间格局,室内空间过于空旷,进深及房屋尺度过大,功能细分不足。
2.两层楼仅楼下一个公共卫生间,不能满足当下居住需求。
3.二楼外廊阳台过长,实体护栏导致室内采光不足。
4.阶梯式建筑布局增加了坡屋顶设计的难度。
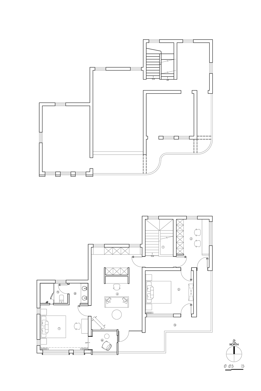
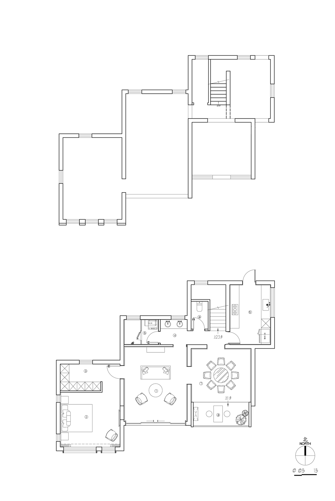
改造方案(室内部分)
1.保留堂屋功能,利用原堂屋北侧进深设置三分离客卫。
2.优化老人房、餐厅动线,为老人房设置独立步入式衣帽间。
3.餐厅设置双动线,使公共区交通更为便捷,餐厅南侧向外延伸设置茶室。
4.二楼设置含客厅、衣帽间、书房、卧室、休闲区、卫生间一体化套房。以及儿童房和独立书房/衣帽间。通过阳台串联形成大洄游动线。
改造方案(建筑部分)
1.设置南北非对称咬合式坡屋顶,可以与阶梯式建筑布局形成良好融合,屋顶造型脱离了传统形式,能更好的融入现代风格立面。
2.重新整合西侧窗户形式,形成宽窄两组窗户形态,通过黑色金属板勾勒丰富立面层次。
3.考虑到需要更换新的护栏,从施工便利、实用性和经济角度出发,变圆角为直角,拆除原砖砌护栏及高台窗,调整为玻璃护栏+落地窗形式,提高室内采光和体验感,使立面更为现代。
4.一楼餐厅向南扩展设置茶室,二楼主卧向东扩展设置休闲区,两个拓展区域外侧采用单独的木质包裹,中和了黑白色调的冰冷感,也突出强调了两个新设置的具有当代生活场景的空间。
东西向剖面图
南北向剖面图1
南北向剖面图2
轴测图
堂屋作为承载农村重要俗礼的场所,成为乡村建筑中不可缺少的部分。我们将客厅与堂屋功能结合,形成可以满足更多场景需求的融合性厅堂。
原始室内净高达到惊人的3.7米,即便做满屋吊顶,仍然会觉得墙面过高,尺度太大,在室内体验过于空旷。我们通过设置300mm高的踢脚线,在踢脚线上部设置木质线条,同时在顶部向下300mm处也设置木质线条。通过切割立面比例来丰富弱化过高的墙面,同时线条的勾勒也提升了墙面整体质感。
餐厅回归了传统的圆桌形式,更符合家庭团聚就餐的场景需求,动线的打通,使餐厅与其他区域产生密切的功能联系
茶室作为餐厅的延伸功能,为传统家宅的生活场景中增添了一些意趣
餐厅南侧的茶室
多条动线形成通畅的空间格局
楼梯视角,高窗为楼梯带来充足明亮的采光
楼梯看向餐厅区
二楼走廊
通往二楼套房客厅的过道
套房客厅提供了一处家庭成员休闲放松的所在的同时保证了私密性
抬高的“木屋”作为阅读与小憩的独立空间
主卧拥有超大落地窗
可以尽揽田园风光
休闲区由主卧进入并与客厅和阳台形成视线交互
相关案例推荐
开物营造
设计师相关作品

粤公网安备 44010602000156号