前言: 从过往仅需满足居住的单一诉求到对空间审美的追求以至场所精神的承载,私宅在人们生活日益富足的当下被赋予了更多定义和期望。本次设计,让我们再次拓宽了家的可能性的边界。 这是一套一层带地下室的住宅,一层建筑面积约132㎡,地下室约61㎡,地下室净高约为4.3米。屋主二人经营一家互联网公司。得益于良好的经济基础与优秀的审美和执行力,项目尽管面临了前所未有的技术困难,施工周期更是持续了近两年之久,但仍然以很高的完成度落地。
▲1层原始平面
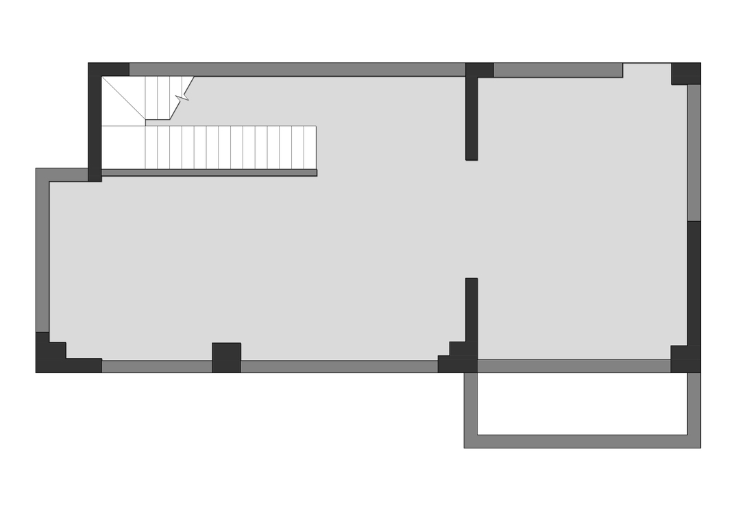
▲1层平面
一层: 1.调整了次卫洗漱区位置,使主卧与北卧动线分离,避免次卧入口正对洗漱区的局面。
2.厨房设置L型隔墙,将冰箱外置,更方便服务于餐厅。
▲1层模型轴测分解图
▲地下室原始平面
楼梯: 拆除原有楼梯,将原有双跑楼梯变为5跑,缩短每段梯步的长度,降低下楼疲劳感,营造游园式体验。通过楼梯盘旋围合出的区域则作为楼梯下部的收纳空间。
▲地下室平面
地下室:我们将地下室功能拆解为左(西)、中、右(东)三个部分,东南侧拥有较好的采光条件,作为工作室区域。中部是楼梯入口所在位置,中部的南侧作为水吧区,北侧则利用楼梯与东侧墙体之间的区域作为钢琴区,最西侧作为影音区及游戏区,地面整体做了抬高。上部空间大面积挑空,顶部采用深色涂料涂刷并嵌入迷你射灯形成“星空”效果,为缺乏采光的地下室营造出更多的想象空间。
▲地下室夹层平面
新建钢结构夹层,夹层将地下室空间一分为二,考虑到夹层主要作为儿童娱乐区使用,为了避免夹层对下层空间造成压抑感,方案采用了大量的挑空来满足上下两层的通透性并尽量保证了光线的进入。 夹层同样分为左中右三个部分,通过在中部设置一组T型廊桥作为交通枢纽通往东西两端区域。 从工作区北侧楼梯可进入到夹层,夹层东部区域作为亲子区,原建筑采光天窗位于亲子区南端,采光窗与亲子区之间做了挑空处理,为下部工作区提供了充足的采光。 亲子区向西进入到夹层的交通核心:“T型廊桥”,廊桥向南可通过金属滑梯滑至下层海洋球池,向西则通往夹层最西端的悬空木屋,木屋设置若干不规则窗洞,为上下层的交流提供了媒介。
▲地下室夹层钢结构布置图
剩余区域均做了挑空处理,极大的增加了空间游览体验以及上下层空间的通透性。 另外考虑到4.3米的尴尬层高,需首先满足下部空间的使用需求,最终将地下室底层的净高确定为2.3米,夹层扣除楼板以及地坪层之后的净高为1.8米,可满足儿童安全通行。
▲地下室空间结构分解动图
▲地下室剖面示意图
▲地下室原始照片
业主需求:1.充分利用地下室层高为正在上幼儿园的男孩打造一处充满趣味的儿童游乐空间。 2.需要有男主人办公的工作室。 3.考虑到原两跑楼梯第二段太长,对儿童安全方面不友好且缺乏趣味性,希望对楼梯进行重新设计。
▲地下室西侧影音区与楼梯,顶部为廊桥,廊桥两侧通过木饰面下挂解决了材料衔接的问题
▲楼梯与钢琴区。钢琴区上部为挑空区,通过直角倒圆结构的设计为钢琴区提供了照明需求
▲钢琴区侧墙上的拱形洞与楼梯产生对话
▲影音区上部为夹层西端的悬空小屋以及滑梯
▲通过一个半圆形结构,在圆弧上设置两个拱形门洞通往东侧的两个功能区
▲弧形结构内侧
▲采光孔下方的工作区
▲弧形结构与工作区,工作区顶部挑空,将采光窗的光线引入工作区
▲通往夹层的楼梯
▲夹层亲子区
▲亲子区看向采光井
▲夹层廊桥
▲采光井下方的休闲区
▲从廊桥上看楼梯
▲夹层与楼梯
▲廊桥通往滑梯
▲滑梯入口
▲悬空木屋内部
▲悬空木屋圆形窥视口
▲廊桥西端往东看
▲楼梯细部
▲楼梯围合出的部分作为下层的储藏空间来利用,顶部用镜面弱化体量,与悬空木屋朝向楼梯的窗洞产生有趣的联系
▲一层下楼方向
▲通过楼梯的窗洞看向地下室区域,我们为业主设计的霓虹灯LOGO成为空间焦点
▲一楼楼梯入口处用彩色涂刷的拱形放大了入口视觉感受,让下楼更具仪式感
▲一楼客厅。通过不同马卡龙色的碰撞以及圆润的家具选择和结构元素,定义了业主对空间“可爱”、“清新”的风格诉求
▲客厅南视角
▲客厅细部,多色彩之间的碰撞
▲客厅细部
▲屋主饲养的约克夏宠物狗
▲餐厅延续了一楼整体的设计语言,餐桌下方的拱形小洞体现了小狗的家庭地位
▲拱形洞与小狗
▲餐厅局部
▲餐厅看向客厅
▲西厨水吧区
▲餐厅看向厨房,厨房采用折叠门
相关案例推荐
开物营造
设计师相关作品

粤公网安备 44010602000156号