前言:
本案以“内建筑”为核心设计哲学,将三代同堂的生活需求与艺术化空间结构深度融合。设计师以“盒子模块”为语言,通过切割、错叠与虚实碰撞,在500㎡的垂直维度中构建出兼具仪式感与功能性的居住剧场。
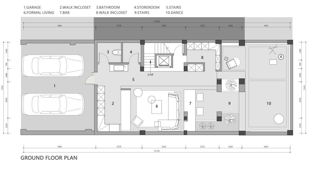
将地下室打造为三代共融的活力场域:
通过地面高低差划分舞蹈区与社交区,悬浮方块结构既保留视线通透性,又暗合日本“间”的空间哲学。枯山水砾石带如墨迹般流淌于模块间隙,让自然进入室内,带来生机和希望。
整墙镜面实现双重叙事——孩童舞姿的即时镜像与空间纵深的无限延伸,结构错落有致,灯光明暗对比,镜中宇宙即空间核心。
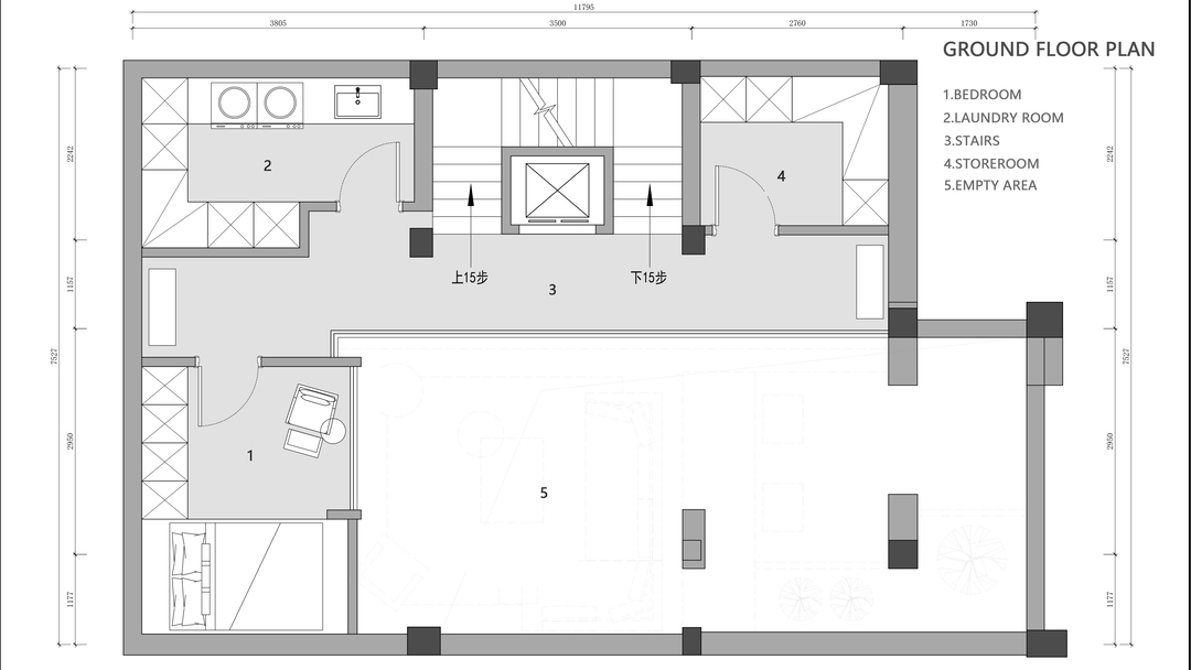
一楼针对面宽和纵向比例,放大空间比例。设计师以黄金分割重组西厨岛台与长餐桌,胡桃木餐桌如悬浮雕塑延伸空间视觉。电视背景墙嵌入线性灯带,让趣味模块进入每一个细节。
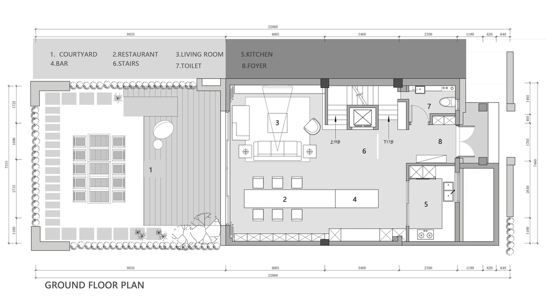
客厅俨然一处中古器物的剧场,玻璃与木质结合的茶几、绿色单椅、落地台灯与电视背景墙的双色分割构成视觉锚点,沙发区灰调羊毛地毯如水墨氤氲,在模块化架构中注入手作温度。
楼梯的设计既保留了功能性,又加入了趣味性。犹如一个山脉意象的结构,通过模块化错位叠砌,形成“山峦剪影”般的垂直动线。孩童可置身其中,进行空间游戏,好的空间,应激发使用者的创造力。
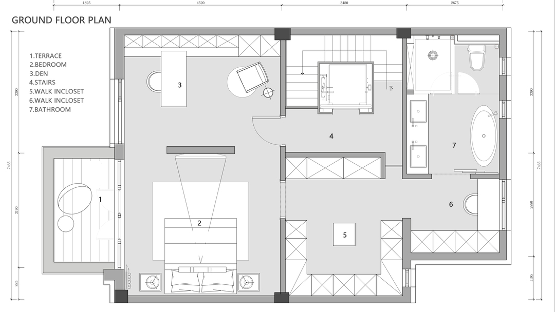
主卧套房基于层高和面宽做了些分割,增加空间层次。主卧床头模块墙内嵌暗色护墙板,在整个空间的色彩上产生对比。主卫色彩与卧室保持一致,主体明亮,黑色淋浴房线条在划分功能区域的同时再次点缀空间。光线透过竖向长窗,在墙面投射出几何光痕,在光线赋予的仪式感中,开启新的一天。
相关案例推荐
朱从昊
编辑精选

粤公网安备 44010602000156号