前言:
“建筑不应该脱离自然和人类本身,而是应该遵从于人类的发展,这样会使自然与人类更加接近。”——阿尔瓦·阿尔托
从着手设计这栋房子伊始,我们便期望以最少的装饰,为光、风以及人们的生活轨迹预留出最大的空间。我们认为,优质的设计并非一味地填满,而是适度留白,让生活自然生长。
初步勘察发现建筑是传统联排户型,开间窄、进深长,这是首要解决的问题。我们改造楼梯布局,将两跑楼梯改三跑楼梯并增设玻璃电梯,解决了采光难题。楼梯成为光与视线流动通道,玻璃电梯通透不挡光。我们坚信舒适源于对自然节奏的尊重。
功能布局上,一、负一楼及夹层为生活起居等公共空间,二、三层为私密个人空间,实现动静分离。
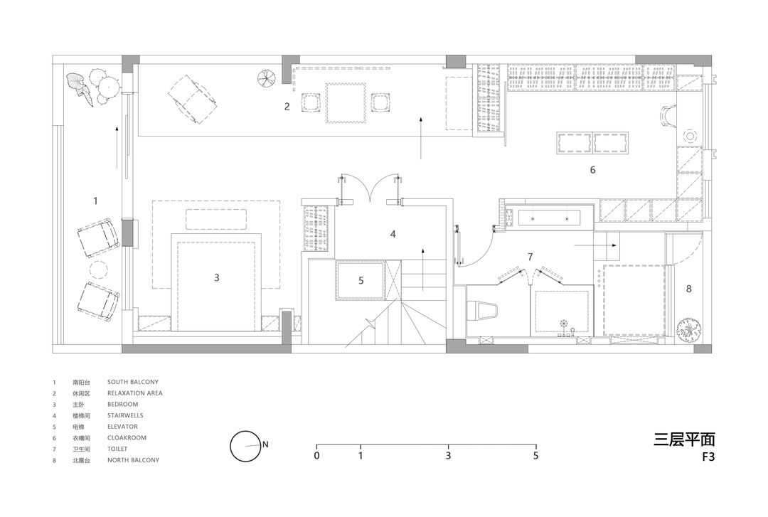
三层是完整套房,强调生活仪式感。土建改造打开榻榻米上方楼板,让光线留印记,墙面有呼吸肌理,空间层次展现。主卧床边梁柱经结构改造让卧室更舒适,打开睡眠区上方楼板形成独特体验,主卫与衣帽间用玻璃砖分隔增趣味。
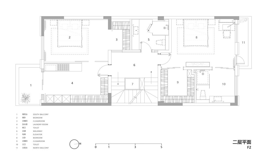
二层南侧卧室与洗衣房结合,亚克力屏风模糊边界;北侧卧室是独立套间,材质留白营造私密空间。
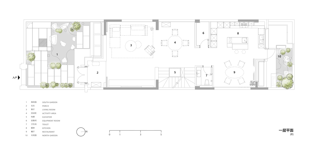
一层将客厅、餐厅与开放式厨房融合,拆除隔墙后空间开阔,落地窗引入光线,地面通铺肌理砖,墙面保留微水泥本色。红黑色橱柜与金属吊灯碰撞,橱柜拉手隐藏,中岛台面选深色石材,高柜区电器平嵌,岛台与餐桌间动线合理,厨房器皿精心挑选。
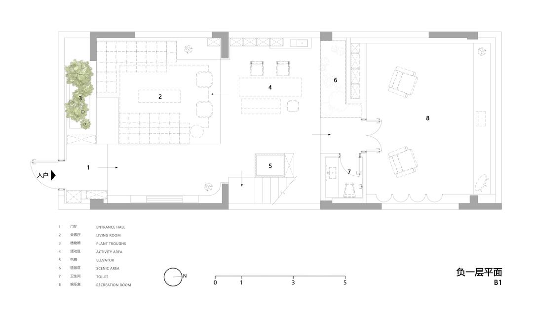
负一楼保留4.7米层高优势,设三分之一面积的夹层,让采光井光线照亮空间。夹层形成半开放阅读或工作区,玻璃栏杆通透。夹层下方用沙发围合下沉式休闲区,与茶桌构成茶叙角落,红色茶柜与灯带营造沉静氛围。
我们摒弃复杂材质叠加,用温润木色和柔和光线让空间有呼吸感,用隐藏灯带和温润肌理柔化结构。希望家人在光影中感受松弛,把日子过柔软丰盛。我们始终坚信,优秀设计是留白中的丰盈,能治愈心灵,让人慢生活。
相关案例推荐
南京素空设计
编辑精选

粤公网安备 44010602000156号