前言:
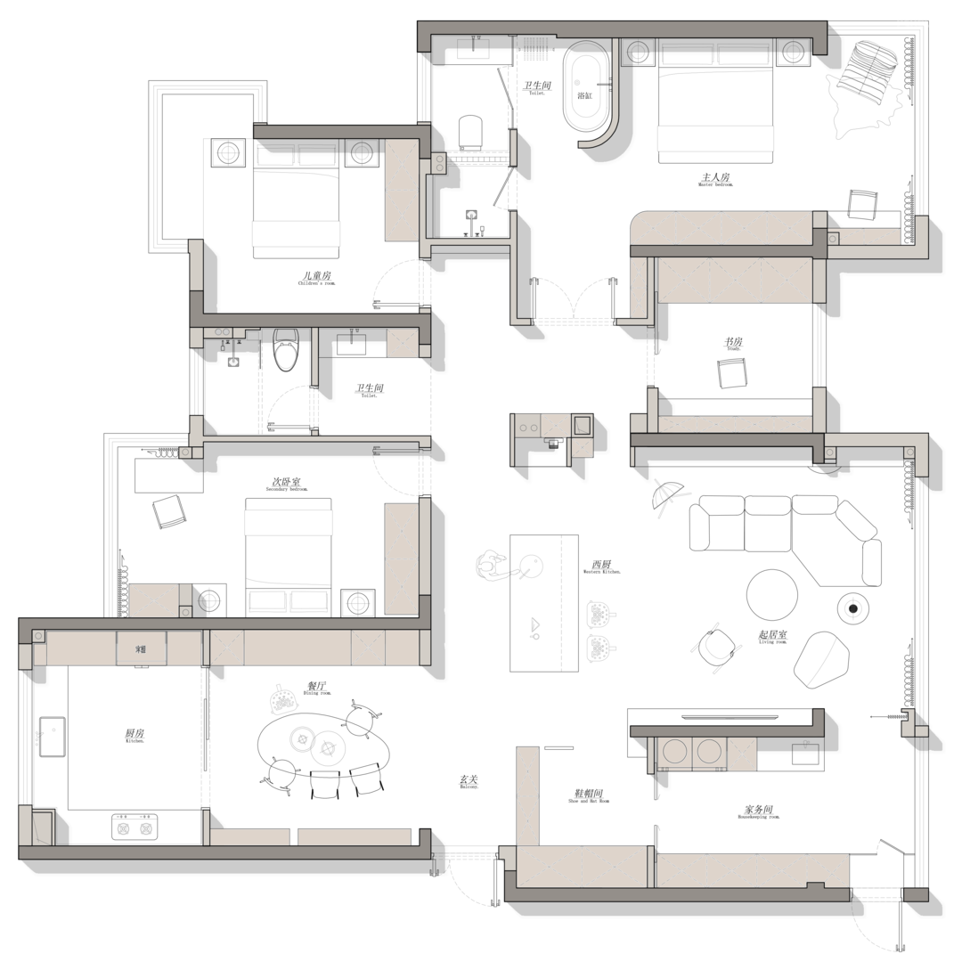
本案位于湖北黄石,在这个小屋里三代同堂不是标配,四口之家的成长才是刚需。因为父母住在步行可达的距离,所以无需被 “预留长辈房” 的惯性思维束缚,屋主想要的是把每平米都过成自己想要的样子,更是能跟孩子一起成长的弹性空间。
我们以「现代极简形式 + 弹性功能模块」的设计手法,通过「中岛台+水吧台」设置双径洄游动线,串联互动场景,打造适配四口之家全周期成长、兼具情感联结与极简质感的居住环境。
客厅
相关案例推荐
网友评论
胡真滔
设计师相关作品

粤公网安备 44010602000156号