前言:
本项目针对二胎家庭的生活需求,以现代极简为基底,通过黑白的主调与跃动的勃垦地红的点睛之笔重构精装房的空间。黑白色的墙板构成了对比的主框架,主餐桌、餐椅、模块化沙发强化了极简的质感,仅有的勃垦地红在冷静的基调中注入了鲜活的生命力。
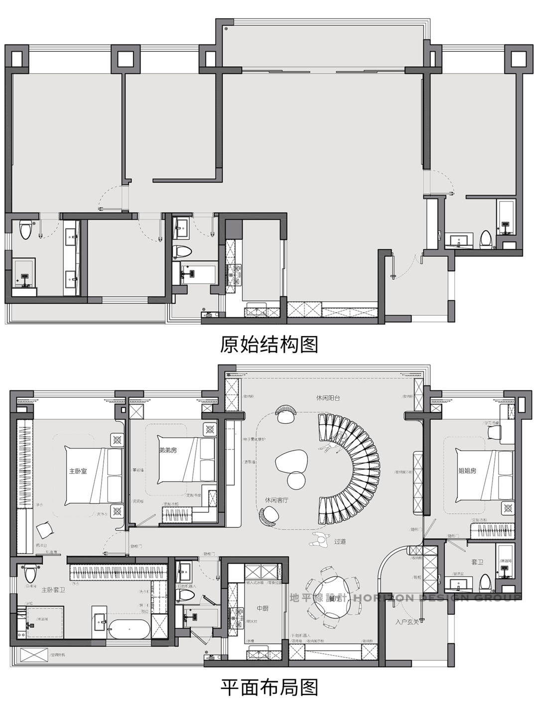
弧形语言贯穿了细节与家具造型,尤其是入户,为了弱化过长的承重柱,设计师思考了立面截图,手画了弧形就此建模,虽然调整了入户视角,向餐厨区域发散,但正好留有余地在原有的区域做出了收纳空间,以最低的拆改成本实现了刚柔并济的亲子成长容器。
核心改造构建了「三大独立生活单元」:
全屋贯彻安全适幼的设计,墙体转角与家居边缘均采用圆弧收口工艺,在塑造艺术性的同时消除了小朋友的磕碰隐患;
主卧兼并相邻次卧形成睡眠区、步入式衣帽间及卫浴区的完整套房,满足大量储物需求;
两个次卧分别提取小朋友的生活关键词,姐姐的房间整合书房、卧室及卫生间的功能,提供更全面的成长空间。弟弟的房间紧邻主卧布局,缩短夜间照看动线。
入户的餐厅延续空间弧形语言,圆弧曲面吊顶与入户的拱形造型形成双面呼应,弱化原始结构梁体的存在感。餐桌、餐椅均带着柔和线条,与斜面造型的吊灯都有着太空时代的痕迹,用圆润打造流线型的空间感。
在冷静和温暖之间,建立了独特的视觉秩序。实现从餐厨区缓缓向客厅移动时,实则有个线性过渡空间,去达成空间里平衡的支点。
在艺术化的设计表达之中,更需要融入实用的功能。餐桌旁以深色木材和洞石-两种材质的搭配去打造一个极简的水吧台,内置烤箱和收纳系统。餐厨分区采用黑色联动滑门,有效阻挡了中厨的油烟,玻璃格栅兼具了透光性和视觉秩序。
蛇形沙发如山脉蜿蜒盘旋于客厅中央,曲线的流转精准咬合空间的轮廓。勃垦地红的单人沙发、具有造型感的单椅,相互起伏、碰撞,生长出原始的生命力。
转过视线,电视墙通过黑与白的色彩对比,同时采用切割、错位的造型,内嵌的火焰壁炉,以光影制造叙事感。
沙发之后,墙板如山脉起伏的脉络。设计师运用了两组色彩不同且带有强烈对比的材质去打造了这一展示书架。在粗犷和精细之间,碰撞出原始而现代的气息。
最终的呈现,客厅的艺术性不在装饰品,而在空间本身:石材的切割、火光跳动的壁炉、所有被打磨掉的锐利线条、灯光的舞蹈,都突出「空间即艺术」的属性。最终,都服务于居住者在空间中的体验,用最准确的材质去创造每一个有温度的瞬间。
相关案例推荐
地平线设计事务所
设计师相关作品

粤公网安备 44010602000156号