前言: 这一套案例是曲园风荷的落地案例案例,设计师通过对屋主需求的了解与沟通,将极致的生活态度融入到居住空间,为这个幸福的三口之家打造了极致而多元化的生活空间,整体设计施工到落地虽然长达了两年之久,但在看到完美收官时屋主满意与肯定的目光,再长也是值得的。
木质的悬浮楼梯
透明的玻璃扶手
如若不是室内随阶而亮的灯光“缓步而行渐向云端”的视觉享受
结合LEEDARSON抱朴落地灯
让这里已经远远脱离实际更像是室内的一处景观
禅意十足的茶室
真的风雅也无需远离生活
人时有静
在这里修身养气伸展诗意
也是生活中另外一种浪漫
随着镜头的推进
阳光通过采光井漏下来
唤醒一件件精美的陶器
在这里重现它原本的文化使命
这里是屋主的爱好、是收藏
但更是文化的积累
也将整体空间提升了一个维度
将极致的生活态度融进生活是对自身的犒赏
更是品质的追求
多模块化的客厅设计
以自然简约的方式展现黑与白在空间中流淌的魅力
拥有一扇落地窗
感受每日第一缕阳光
无需过多的繁琐亦可感受落日余晖
也可百无聊赖地享受万物俱寂的世界
夜晚时分
LEEDARSON栖风落地灯
与进口壁炉相互成就空间氛围
火焰的炙热灯光的柔和
忙碌着结束
享受慢下来的松弛时光
长形的定制餐桌
自然的桌面纹理
赋予了整个餐桌一种向外的张力
外推的改造扩大客餐厅空间
两扇落地窗搭配窗外绿植
是整个空间纯天然的点缀
用设计的巧妙构思成就的两幅自然画作
开放式厨房
06年黑白配色的潮流延用至今
柜体的考量更是满足后十年储物需求
通透、明亮的设计收纳着食材与摆件讲诉的独特故事
让整个空间充满着温情与味道
尝着岁月的味道
放下生活的疲惫与劳累
一张文案、一把小椅、一排书柜
读书读诗、提笔练字
给心灵一块寄托之地
极简的设计与陈列
收纳与展示的柜体
有序且安静的“伴读”
明洁清雅的氛围
勾勒出“无事且从闲处乐,有书时向静中观”的生活意境
整体套间设计
给孩子成长过程中一个独立空间
软包的床头撕裂空间单一性
同大白熊布偶一起
陪伴着孩子往后的每个日夜
极简的儿童房设计
没有繁琐的点缀
让时光作画墙壁的“橱窗式”采光
解决了原始空间问题
LEEDARSON台灯MINOTTI茶几组合增添几分趣味感
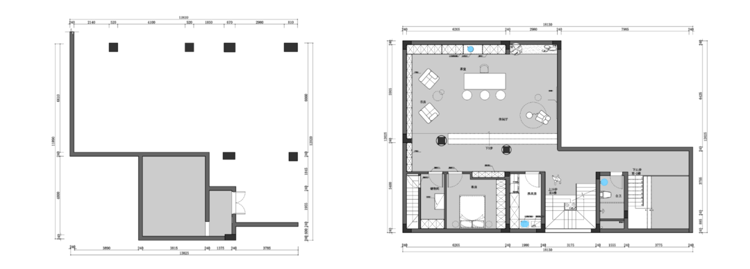
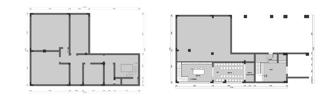
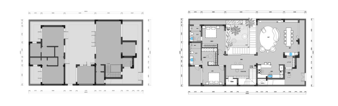
回顾这套案例,重温这个家。设计师将室内与室外相融合的设计手法,一步一景,将户外花园景观纳入室内,在视野上扩大了客厅的空间,餐厅借用原始后花园的空间 打造出一个带有意境的餐厅空间,结合窗户,挂画的形式使整个空间更具有趣味性。由于原始厨房空间利用达不到业主的要求,把原有的楼梯口进行调整,改造成现有的厨房位置,设计师在主卧上没有过多造型堆砌,秉承着“少就是多,简洁就丰富”的设计理念,去掉多余的装饰符号,尽量体现空间整体的尺度关系,原始儿童房的空间结构达不到使用需求,所以将卫生间外扩,增加了使用空间,儿童房横向的条窗结合中庭花园,兼顾采光的同时,更加契合了小区徽派建筑的意境。更加具有趣味性。
相关案例推荐
研舍设计
设计师相关作品
 
 
 编辑精选
编辑精选 
												
													
														
															
																 
												
													
														
															
																 
												
													
														
															
																 
												
													
														
															
																 
												
													
														
															
																 
												
													
														
															
																 
												
													
														
															
																 
												
													
														
															
																 
												
													
														
															
																 
												
													
														
															
																 
												
													
														
															
																 
												
													
														
															
																 
												
													
														
															
																 
												
													
														
															
																 
												
													
														
															
																 
												
													
														
															
																 
												
													
														
															
																 
												
													
														
															
																 
												
													
														
															
																 
												
													
														
															
																 
												
													
														
															
																 
												
													
														
															
																 
												
													
														
															
																 
												
													
														
															
																 
												
													
														
															
																 
												
													
														
															
																 
												
													
														
															
																 
												
													
														
															
																 
												
													
														
															
																 
												
													
														
															
																 
												
													
														
															
																 
												
													
														
															
																 
												
													
														
															
																 
												
													
														
															
																 
												
													
														
															
																 
												
													
														
															
																 
												
													
														
															
																 
												
													
														
															
																 
												
													
														
															
																 
												
													
														
															
																 
												
													
														
															
																 
												
													
														
															
																 
												
													
														
															
																 
												
													
														
															
																 
                                                     
                                                     
                                                         
                                                     
                                                         
                                                     
                                                         
                                                     
                                                     
											
										 
											 
											 
											 
											 
											 
														 
														 
														 
														 
														 
				 
                
 粤公网安备 44010602000156号
粤公网安备 44010602000156号