前言:
# 设计说:
现代极简(Modern Minimalism)
现代极简风并非 “空无一物”
而是通过对材质、比例、光影的极致
把控让空间成为生活的背景板
/
以最少的元素承载最本质的功能
在 “简” 中透出对生活细节的考究
使用柔和的色彩和温暖的色调
营造出简约而精致的氛围🍃🍃......
这个车库入户设计充满现代感与精致感。
空间色调以深灰和黑色为主,搭配简洁的线性灯带,营造出沉稳且时尚的氛围。
整体设计简约大气,既满足了功能性需求,又展现出高端的品味与格调。
屏风采用了简约的设计风格,由多扇组合而成,可灵活折叠。屏风表面的纹理自然且富有质感,色调柔和,与周围的环境相融合,为空间增添了一份雅致与静谧的氛围,既起到了分隔空间的作用,又成为了一处颇具艺术感的装饰元素,提升了整个区域的格调。
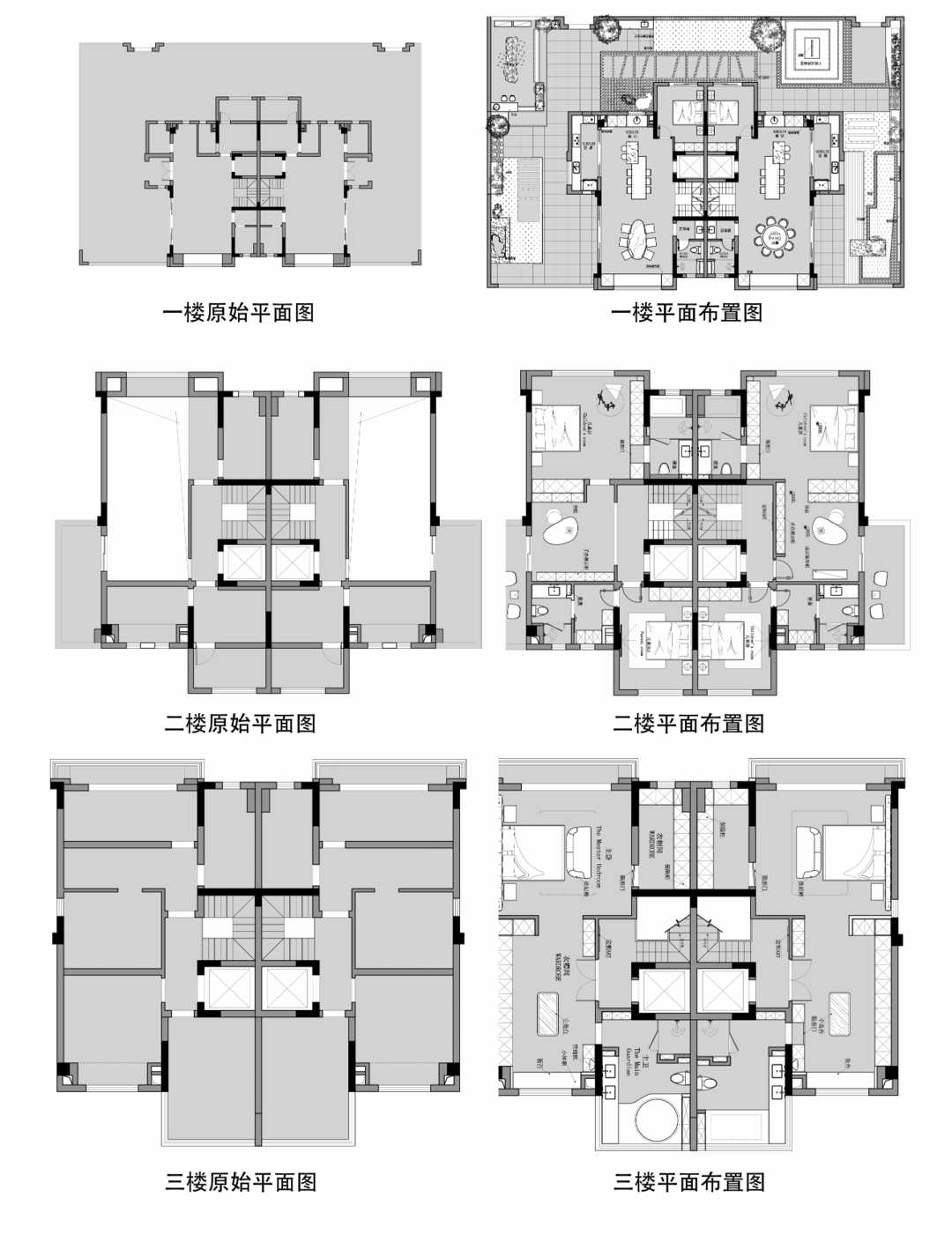
这个玄关呈现出简约而雅致的风格。圆形的桌子搭配粗壮的柱形桌腿,造型简洁大方,桌面材质看起来温润有质感。桌上摆放着带有自然纹理的花瓶,插着枯树枝,增添了几分自然野趣;还有深色的容器以及茶具,营造出一种静谧的氛围。背景的屏风设计,纹理独特,与整体空间色调和谐统一,柔和的灯光打下来,让整个玄关显得静谧且富有格调,给人一种舒适、放松的感觉,尽显雅致与禅意。
楼梯采用了通透的玻璃护栏,搭配浅色的台阶,线条利落,让空间显得开阔且富有轻盈感。周围的墙面为柔和的浅色调,与楼梯材质相呼应,营造出干净、雅致的氛围。
这个空间设计走简约雅致路线。整体以柔和的浅色调为主,营造出干净、通透的氛围。
从布局来看,空间开阔且通透,不同功能区域过渡自然。
沙发造型圆润舒适,搭配深色圆形茶几,色彩对比和谐,增添了空间的层次感。地面铺有纹理细腻的地毯,进一步提升了空间的温馨感。
展现了光影在室内空间的美妙效果。白色墙面上映着光影斑驳,似自然笔触绘就的抽象画 ,营造出静谧且富有诗意的氛围。
整个空间布局开阔且具有通透感,不同功能区域之间过渡自然,没有丝毫的局促与阻隔。
这个空间是一处雅致的茶室设计,充满了中式美学韵味。
整体以简洁的浅色调为底色,营造出宁静、通透的氛围。
木质框架规整有序,灯光从后方柔和打亮,让每一件茶具都如同艺术品般精致呈现,既方便展示收藏,又极具观赏性。
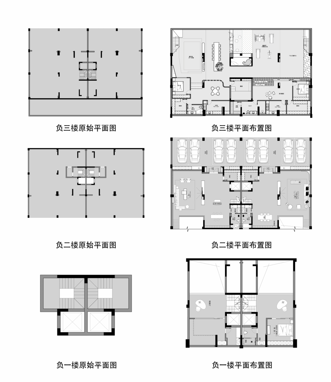
这个地下室设计极具创意与实用性。空间内打造了小型篮球场地,木质地板搭配清晰的白色场地标线,还原了篮球运动的场地氛围,满足运动爱好者的需求。
一侧还配备了健身器材,方便进行多样化的健身活动,实现了运动功能的整合。
整体以简洁的白色为主色调,搭配木质元素,营造出明亮、清爽的视觉效果。
充足的自然光线透过上方空间洒入,减少了地下室的压抑感,再加上绿植的点缀,为运动空间增添了生机与活力,让这里成为一个集运动、健身于一体的舒适场所。
长形餐桌搭配简约的座椅,适合用餐或交流。
整体以简洁的色调为主,搭配木质元素,营造出舒适、雅致且充满自然活力的环境,成为一个集休闲、实用等功能于一体的惬意场所。
这是属于男业主的一方小天地,将自己的爱好融入家中的某个空间,幸福感拉满。
下沉式影音厅,根据整个空间山体结构,做了一些起伏的下沉关系,由软装部定做的沙发,聚会的人可以围坐在14米的沙发中,能够容纳20个人左右,是整个空间中不可或缺的娱乐空间之一。
转角沙发柔软舒适,为空间增添了慵懒的休闲感。
餐厅放在一楼,西厨区做了餐岛一体,平时一家人可以在这里用餐,旁边还有单独的超大餐桌方便宴请人多用餐。
用餐区域有长形餐桌和圆形餐桌两种形式,长桌搭配黑色座椅,简洁利落;圆桌搭配带有纹理的座椅,更显雅致。
墙面还挂有艺术画作,提升了空间的艺术氛围,整体设计简约而不失格调,兼具实用性与美观性。
这处户外花园设计精巧,与室内空间通过大面积玻璃推拉门相连,自然过渡。
花园内铺设规整的硬质地面,便于清洁,方便行走活动 。
花园与周围建筑和谐相融,整体环境静谧舒适,是一处能让人放松身心、享受户外时光的好地方。
圆润造型的座椅增添了空间的柔和感,小巧的边几与花艺摆件,为卧室注入了一丝精致与生机。
整体采用柔和的浅色调,营造出宁静、舒适的休憩氛围。大窗户搭配轻薄的窗帘,让自然光线充分涌入,同时保证了隐私。
色彩鲜艳、图案独特的椅子,成为空间中的视觉焦点,打破了整体的沉静,增添了活力与艺术感。抽屉内对饰品的分区收纳,既方便取用,又尽显精致有序。
简洁的柜体设计,兼具美观与强大的储物功能,能很好地整理各类物品,让空间保持整洁。
靠窗设置书桌,充分利用自然光线,利于阅读和工作。
简洁的柜体设计,兼具美观与强大的储物功能,能很好地整理各类物品,让空间保持整洁。
相关案例推荐
研舍设计
设计师相关作品
编辑精选

粤公网安备 44010602000156号