前言: 每一位客户都怀揣着对理想家园的憧憬,他们渴望自己的居所能够完美地反映出自己心中所构想的蓝图。今天,我们将聚焦于一对充满活力、热爱生活的夫妇,他们梦想着拥有一个能够体现自己个性和品味的家。为了帮助他们实现这一梦想,我们的专业设计师团队倾注了大量的心血和创意,让我们一起深入了解设计是如何巧妙地将这对夫妇的梦想转化为现实的吧!
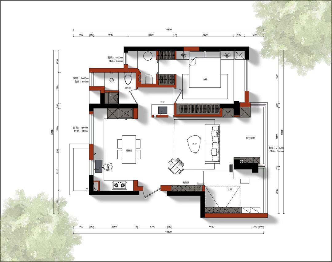
1. 将分散的布局整合成一个统一的整体;将餐厅和客厅合并为一个共享空间。
2. 将次卧与客厅打通,创造出一个舒适的空间,实现客厅的一体化设计。中间部分通过安装一扇可切换的折叠门进行隔断,这样在需要时仍能保证书房的私密性。
3. 卫生间区域扩大面积,打造出一个干湿分离的舒适空间。
客厅、书房与阳台的巧妙合并设计,使得自然光线能够自由地穿透并洒满空间的每一个角落。在空间布局上,通过巧妙地使用折叠门,可以灵活地切换私密区域与公共区域之间的界限。整个房屋采用统一铺设的地板,并在墙面涂刷了整体的白色乳胶漆,以此来营造出一种极简主义的空间体验。
软装的搭配让整个空间显得更加有层次感,深色的沙发不仅提供了舒适的坐感,也成为了客厅的视觉焦点。沙发上摆放着几个斑马图案的抱枕,增添了空间的活泼感。
沙发背后的阳台,被打造成了鹦鹉的小天地,它们在这里可以自由飞翔、嬉戏,享受着阳光的温暖。每当阳光透过窗户洒进客厅,鹦鹉们便会欢快地叫唤,与主人进行着无声的交流,为整个空间增添了一份生机与活力。
折叠门设计可以说是客厅的一大亮点,也是整个家的一个亮点!看似古板,实则灵动。折叠门不仅满足了男主人对于书房私密性与开放性的双重需求,还为整个空间增添了一份独特的韵律感。
当折叠门完全展开时,书房与客厅无缝连接,创造出一个开阔且明亮的共享空间。无论是夫妻与宠物鹦鹉的亲密互动,还是朋友间的欢聚,都能在此空间中自如进行。当需要集中精力工作或学习时,只需轻轻一拉,折叠门便悄然关闭,将书房与外界隔离开来,为工作或学习营造出一个宁静的环境。
没有选择把厨房和餐厅“分开”,而是将二者融为一体。U字橱柜包裹标准餐桌的格局,让空间的利用率能达到最大化,同时彻底放开北面空间,能和南面传达的新鲜空气,温暖阳光相结合使得整个厨房空间明亮通透,充满生机。
卧室空间整体就是黑色和灰色来做基底;格局上重新调整了空间的比例关系,把衣柜从传统的一侧改到前方和墙体集合整体做出悬浮感。
悬浮式的衣柜设计不仅节省空间,还给人一种轻盈现代的感觉。无靠背的床头设计则让整个空间显得更加通透,减少了笨重感。白色饰面板的运用,不仅巧妙地划分了空间,同时也提亮了整个主卧的色调,营造出一种优雅而宁静的休憩环境。
相关案例推荐
上海鸿鹄设计
设计师相关作品

粤公网安备 44010602000156号