前言: 当孩子踏上大学旅程,家成为夫妻二人沉淀情感的港湾。男主人常年奔波在外,推开门那一刻的轻松氛围,便是对辛劳最好的慰藉。我们以空间为笔,勾勒出多功能生活场景,让每一寸空间都充满温度。
玄关
原始1.4米门厅拓宽至1.9米,瞬间解锁大件衣物与日常用品的收纳潜能。定制玄关柜设计巧妙融合封闭与开放形式,入户即见整洁雅致,归家仪式感满分。
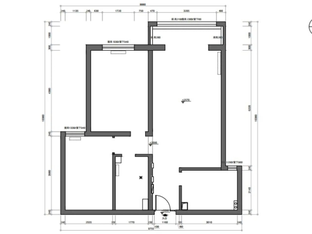
改造前门厅
相关案例推荐
网友评论
巩岩
设计师相关作品

粤公网安备 44010602000156号