前言: 本案业主是一对年轻小夫妻。公区用多重洄游动线,与厨房动线相结合,巧妙运用自然光线与功能分区,营造出开放而富有弹性的空间氛围,为小夫妻创造了多样化的交流场景与立体化的空间体验。设计以日常生活为脉络,融合美学理念与创意构思,通过横向延展与纵向叠加的手法,构建出秩序井然、层次丰富且舒适自在的居住环境。选材与色彩搭配遵循了精致且雅致的原则,采用柔和细腻的色调,完美呼应了业主法式优雅与浪漫情怀的文化品位与生活方式。
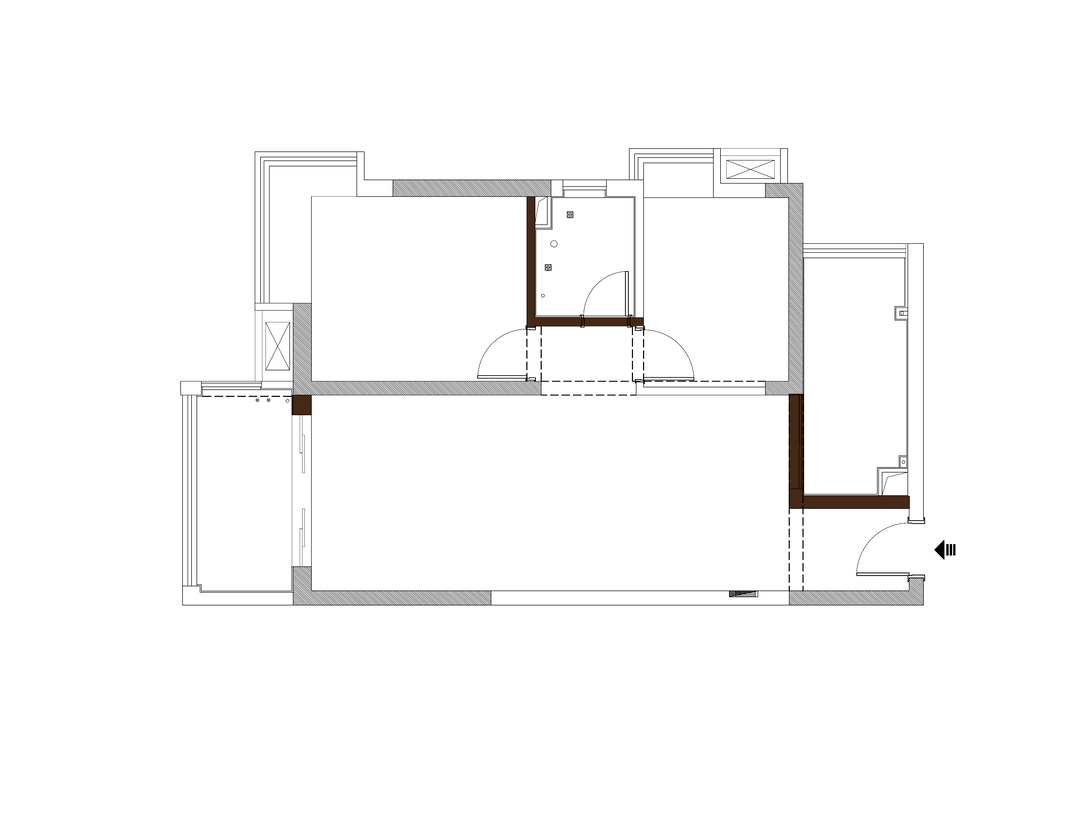
原始户型为规整的两室布局,但存在若干功能性的局限:
1.卫生间未实现干湿分区,且使用面积局促;
2.卧室区域储物配置不足,难以满足日常收纳需求;
3.厨房空间相对封闭,缺乏通透感,操作台面与储物空间均显不足,整体空间利用率有待提升。
这些结构性的限制,为后续的空间改造提供了明确的优化方向。
基于原始户型的空间局限与业主的实际生活需求,我们对平面布局进行了全方位的优化改造:
1.空间重组:打破原有封闭格局,采用开放式设计理念,重塑空间动线。
2.功能升级:
卫生间实现干湿分离,拓展使用面积。
卧室增设定制储物系统,提升收纳容量。
厨房改为开放式布局,增加操作台面与储物空间。
3.细节优化:
引入洄游动线,增强空间流动性、合理规划各功能区比例,提升空间利用率、预留灵活可变空间,适应未来生活变化。
这一系列改造方案旨在打造一个既满足实用功能,又符合现代生活美学的居住空间。
客厅、餐厅、厨房采用LDK一体化设计,打破了空间的界限,让整个公共区域显得更加通透开阔。
阳光透过落地窗洒进来,落在木纹砖铺设的地面上,折射出温暖的光泽。墙面上的角线勾勒出优雅的线条,与吊顶上的灯盘相得益彰,彰显出小法式风格的精致与浪漫。
同时,客餐厅采用洄游动线设计,流畅的环形路径不仅优化了空间布局,还增强了区域间的互动与连贯性,营造出自由而富有层次的生活氛围。
客餐厅采用LDK一体化设计,以流畅的动线串联起生活场景。
餐厅区域巧妙融合定制岛台与嵌入式冰箱,既满足实用功能,又保持了空间的整体性。一盏复古吊灯悬垂而下,与角线装饰的墙面相映成趣,勾勒出优雅的法式风情。
设计师将餐边柜与次卧隐形门完美结合,既保证了收纳功能,又维持了立面的完整性。精选的胡桃木餐桌搭配复古藤编餐椅,其复古的造型与细腻的质感,为用餐时光增添了一抹浪漫情调。整个空间在简约与精致之间取得平衡,演绎出独具韵味的小法式生活美学。
卧室采用地台设计,巧妙地将床头柜与梳妆台功能融为一体,形成简洁的建筑体块造型。
床铺正对窗户布局,既保证了充足的自然采光,又营造出开阔的空间感。设计特别注重实用性,通过合理规划大幅提升了衣帽储物空间。
背景墙选用温暖的姜黄色调,搭配黑色腰线进行横向分割,既增添了空间层次感,又彰显出小法式轻奢空间。
相关案例推荐
南京可以空间设计
编辑精选

粤公网安备 44010602000156号