前言:
这是李小姐和先生第一次装修房子,虽然天禧交付的是高标准精装房,但和他们追求的慵懒状态处在两极。70分的框架,距离理想中满分的家,需要调整的不只是审美风格,还要弥合“标准空间”与“真实生活”之间的距离。
很多业主面对精装房的第一诉求,就是把样板风格调整成符合自己的审美,但对于是否要局改甚至是大改格局,还是有些犹豫。
事实上,每个家庭即使能用“三口之家”、“四世同堂”词汇来概括,仍存在千差万别的生活习惯,我们可以套进标准码里,但不一定舒服,格局改造就是一个量体裁衣的过程。
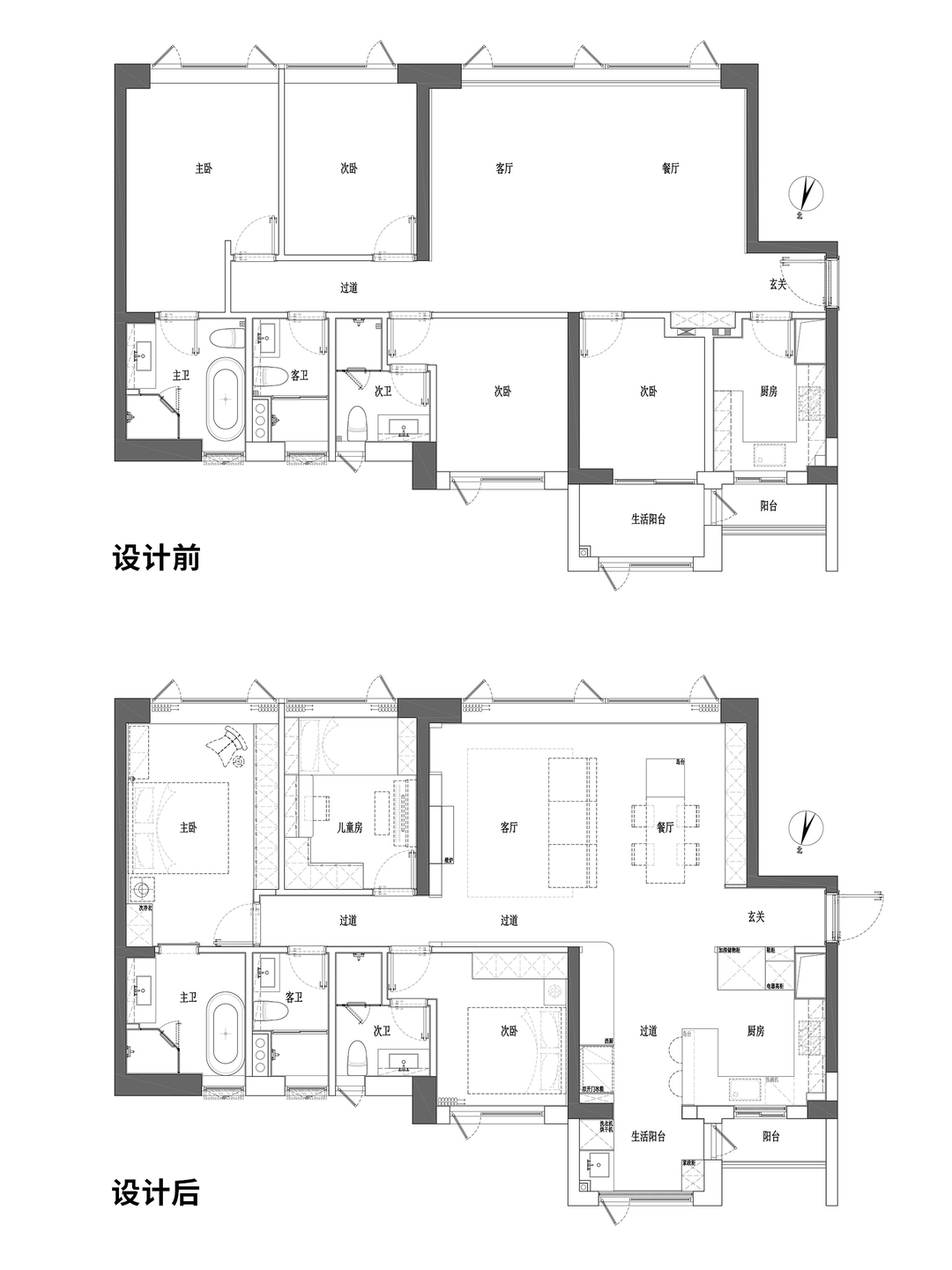
① 确认人口结构→4房改3房
屋主李小姐的三口之家,目前有父母同住帮忙照顾宝宝,所以3房格局就能满足生活需求。将靠近厨房的房间打通,李小姐期待的通透公区就出现了。
② 确认物品结构→收纳规划
根据家里的鞋帽衣物量、书籍量,收藏的碗碟杯具、玩具等非标品数量进行规划收纳。主卧只是调整了门洞位置,就释放了一整排的衣物收纳空间。
③ 确认生活习惯→置入功能区
屋主李小姐是重度咖啡摄入者,打通的房间正好和厨房相连,变身休闲餐吧,在这吃点简餐,或安静地喝杯咖啡,都很享受。
沙发墙
绿植
地板
艺术品
地毯
灯具
装饰画
客厅
艺术漆
混搭
窗帘
客厅看着很丰富,实际上没有太多固定的大件家具,希望创造出一个灵活、随性的空间,可以陪小朋友拼乐高、读绘本,给家人们留出自由支配的空间。
沙发墙
绿植
地板
艺术品
装饰画
灯具
客厅
艺术漆
沙发
混搭
李小姐一家经常去各地走走看看,带回来的纪念品就放在开放的展示架上,积攒的回忆碎片也成为家的装饰品。
洗碗机
混搭
油烟机
烤箱
橱柜
厨房
嵌入式家电
壁柜
开放式厨房
打开后的空间,让厨房不只属于“母亲的角色",开放的互动型空间能支持一家人一起操作,做饭从家务变成了家庭活动。
冰箱
地板
灯具
置物架
储物隔板
混搭
橱柜
厨房
壁柜
开放式厨房
李小姐在咖啡吧冲好每日的续命咖啡,转身在吧台吃个简餐,晚上偶尔和先生煮个夜宵,正好就近享用。
洗碗机
地板
灯具
混搭
橱柜
瓷砖
厨房
嵌入式家电
壁柜
开放式厨房
新的空间模式出现后,就会有新的故事。朋友们来聚会时,孩子们也会假装大人,在吧台自成一桌吃饭。
根据下厨习惯做了细致的收纳规划。
餐厅的长桌特意做了加长,除了满足一家人的用餐需求,这里也是小朋友做手工的区域。带有复古元素的可视化收纳墙,放着一家人的书籍,方便定位物品,也不破坏整体美感。
相关案例推荐
理居设计
设计师相关作品

粤公网安备 44010602000156号