前言:
去年6月,屋主阿困和三色带着宝宝和猫咪搬进了这个色彩浓郁的新家。
早在5年前阿困装修第一套房子时,他就已经开始关注理居。计划装修第二套房时,恰好在一档探家节目中,被设计师may的作品打动,便与三色一起决定新家一定要请may来设计。
从事贸易行业的阿困和化妆师三色因职业原因居家时间较长,对常规风格表示不感冒的他们,在充分了解自己的居住需求后,将家的视觉营造与功能实现全权交由设计师来创作。
当喜好鲜明的业主,遇上同样鲜明的设计师,三人从碰撞与共鸣中找到同频。
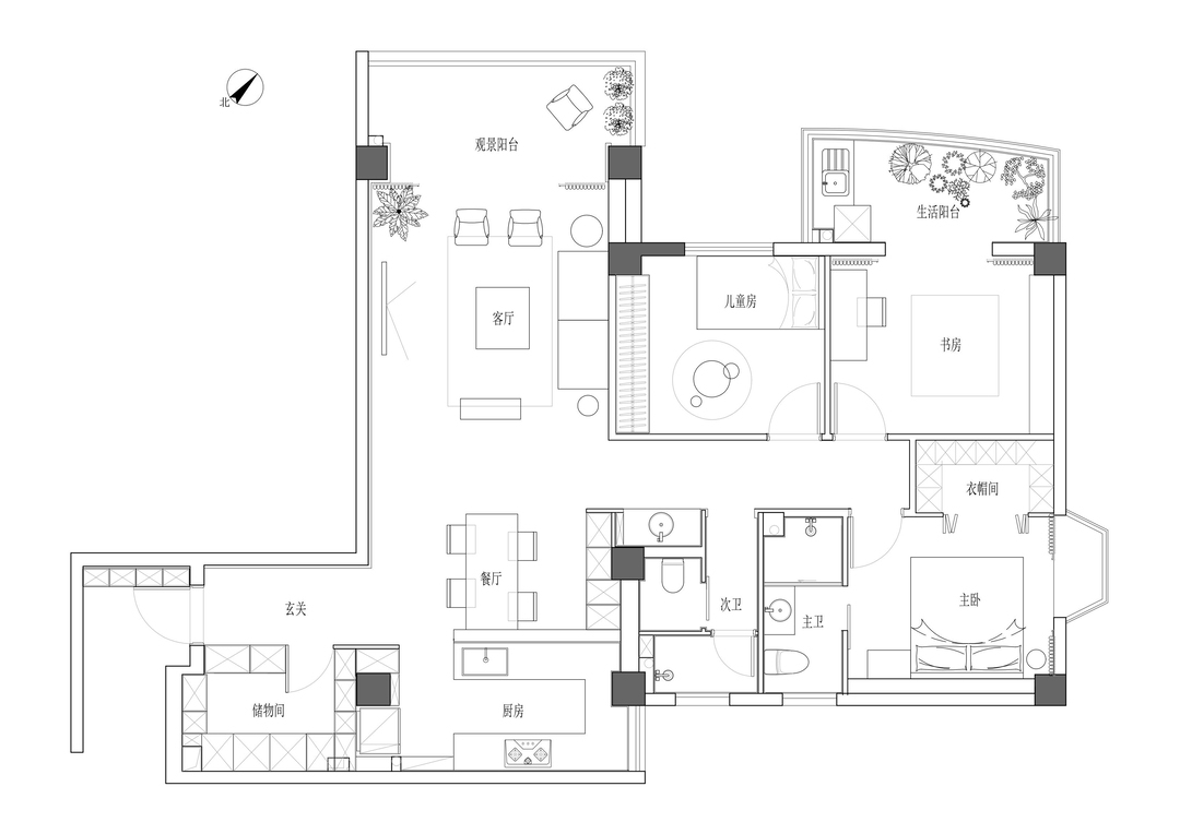
【改造前】
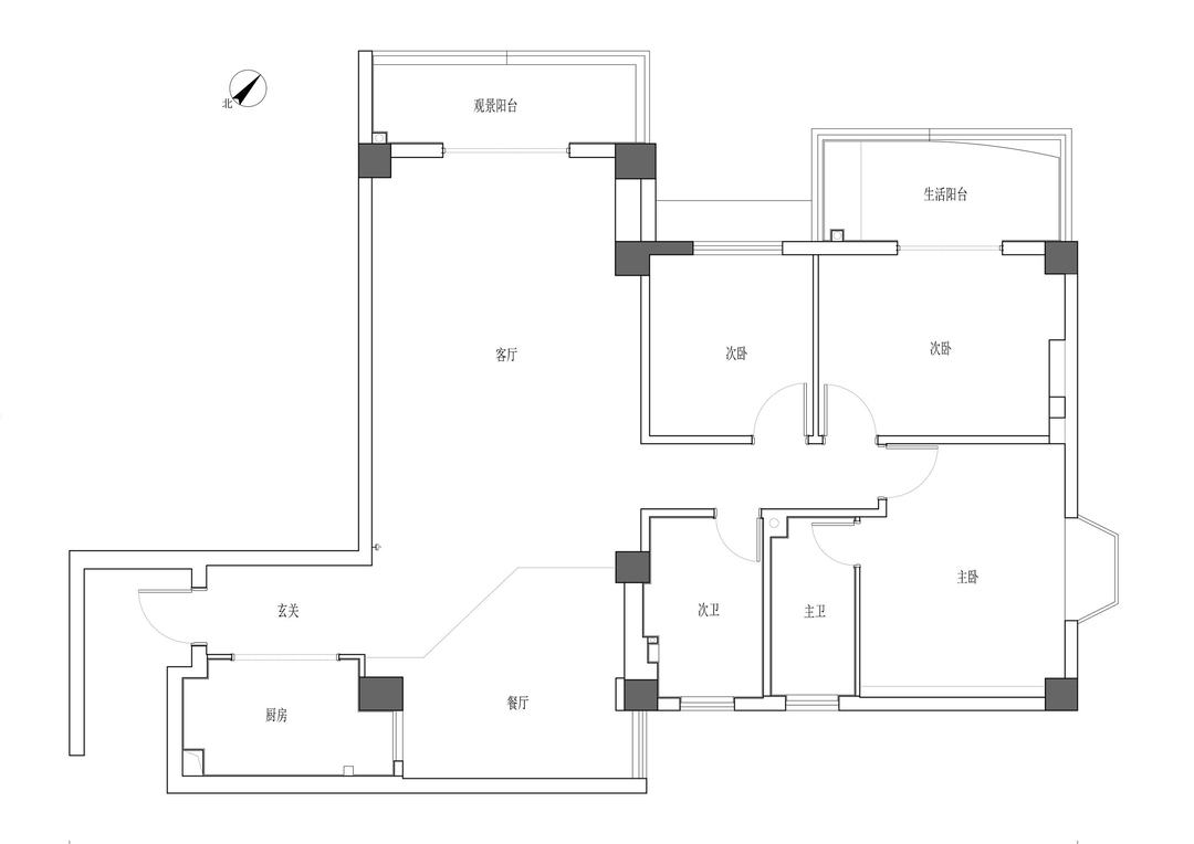
【改造后】
对屋主来说,旧家最迫切的改造当属暗厨和风格了。设计师may将厨房移动至有直接采光的位置,将客餐厨呈一字型的LDK布局,让餐厅成为一进门的视觉焦点。
从玄关开始,花砖组成的地毯将人迎进门,这个家正毫不吝啬地展示着自己的与众不同。
空间的收纳规划与营造出的高度自由感,和屋主三色的生活习惯密不可分。她只保留了最实用的三双鞋作为日常穿着,对于储物她习惯常用的东西放在手边,不常用的东西能舍则舍。
设计师may根据屋主的生活习惯,在恰当的区域设置了恰好的储物空间。
入户一侧,拱形玻璃门背后是步入式储物间。货架形式让储物一目了然,洗烘、清洁工具集中在此,门外的空间则可以暂时逃离家务的琐碎。
绿植
艺术品
装饰画
灯具
地毯
客厅
沙发
艺术漆
混搭
窗帘
推门进入这个家的那一刻,便有种奇妙的穿越感,被色彩与光影渲染后的空间,置身其中仿佛时间都慢了下来,令人很难想起窗外就是车水马龙的繁华商圈。
可以灵活移动的家具也充分展示着自由的主张。没有了定制柜的限制,如果将家具毫无章法地随心摆放,在这个充满松弛感的家中,都能够合理与自洽。
绿植
地板
艺术品
装饰画
灯具
地毯
客厅
艺术漆
混搭
电视柜
有些人觉得“美=不实用”,而屋主三色却认为能随时收入眼中、令人放松的美丽,才是有价值的实用。
当阳光透过窗格,洒在鱼骨拼木地板上时,这个20岁的房子知道自己终于等到了迟来的青春。
绿植
餐椅
餐厅
餐桌
灯具
餐边柜
混搭
隔断
瓷砖
橱柜
设计师may将厨房移动至有直接采光的位置,让客餐厨呈一字型的LDK布局,餐厅成为一进门的视觉焦点。
厨房操作台与餐桌之前的小隔墙,既能遮挡厨房在料理后的些许凌乱,也让用餐时的美食传递,略带在小酒馆时的趣味。
绿植
餐椅
餐厅
餐桌
灯具
餐边柜
混搭
隔断
瓷砖
橱柜
绿植
餐椅
餐厅
地板
餐桌
灯具
餐边柜
混搭
隔断
瓷砖
橱柜
红、黄、绿三原色在设计师may的调配下,丢掉了世俗气,展示出浓郁、动人的氛围感。砖的手工感与木的原生态给空间带来的质朴氛围,是南洋风中不可或缺的元素。
洗碗机
地板
置物架
油烟机
嵌入式家电
开放式厨房
灯具
混搭
储物隔板
厨房
橱柜
瓷砖
壁柜
视觉感受异常丰满的厨房,在使用感受方面当然也不在话下。
U型布局为操作区提供了充足的储物空间,配合着冰箱两侧深浅不一的高柜,和饮食有关的一切被恰当地分门别类、归置其中。舍弃了常规的厨房吊柜,也减少了物品因不常看到而被遗忘的尴尬。
洗碗机
灯具
混搭
储物隔板
置物架
油烟机
瓷砖
橱柜
厨房
嵌入式家电
壁柜
开放式厨房
串联整个家设计语言——色彩、花砖与拱形在三分离卫生间依然有展现。
相关案例推荐
理居设计
设计师相关作品
编辑精选

粤公网安备 44010602000156号