前言:
原户型问题:客户喜欢下厨做美食,但觉得厨房太小,无法满足两口子互动需求;风格上喜欢简洁干净,原有收纳不够;原有的精装房质量太差;
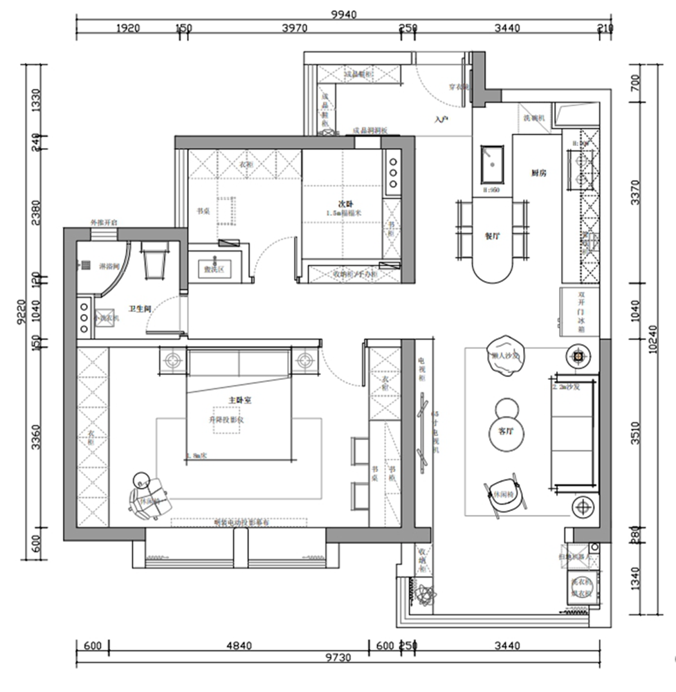
改动了啥?
本来只是想改掉木地板,卫生间,部分天花.....到最后全屋拆了重做哈哈哈哈哈哈不是钱多人傻,只不过是质量太差了
客厅
客厅的氛围往往彰显着主人的品味和个性。运用柔和的灯光、舒适的沙发、精致的装饰品,充满了悠闲和轻松的氛围。
业主一回到家,就能释放一整天的压力,无论是作为边几的书架,电视柜上摆放的游戏机,或者侧面冰箱贴上琳琅满目的回忆照片,都能让全身的疲倦一扫而尽。
餐厨区
做了开放式厨房的改动,整体为U形台面+长条餐桌,地柜木色、吊柜白色的搭配,让整个空间更加简洁。
操作台的正面用了一整块的岩板处理,烟道的两侧是后面贴了珐琅板,让整个空间的储物更加充分(可以吸上很多的瓶瓶罐罐、刀架)
相关案例推荐
网友评论
赖小丽
设计师相关作品

粤公网安备 44010602000156号