前言:
									业主诉求:尽量不改原格局,以软装为主
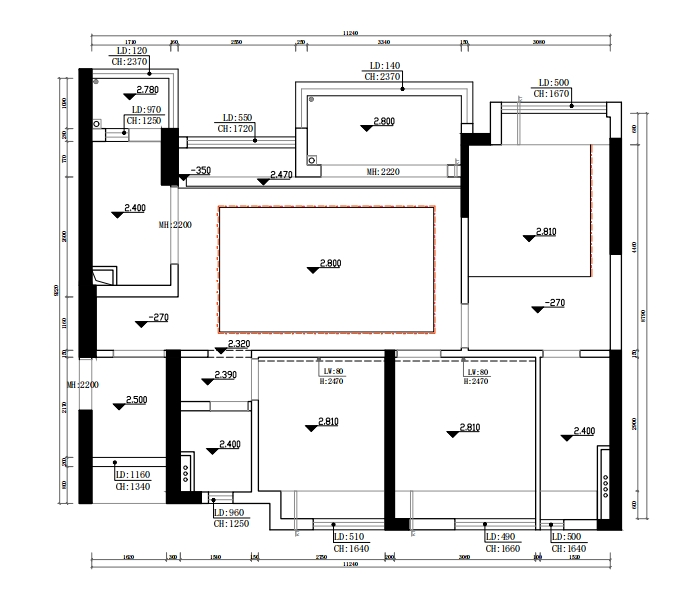
原户型问题:主卧卫生间对着床/餐厅没有足够位置进行收纳/长辈房和儿童房都比较小
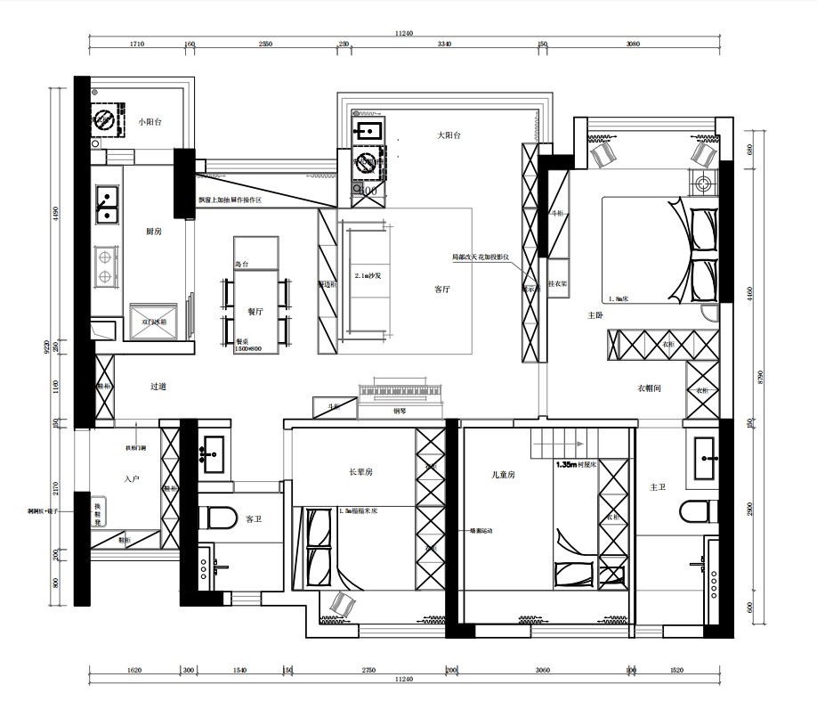
改动了啥:取消次入户门,拆掉改成拱形门洞/更换过道原有柜子门板/更换厨房门/客餐厅天花调整/取消阳台门/封窗
									
入户地面重新铺贴复古小花砖,取消次入户门,改成拱形门洞,使视野更开阔,减轻玄关区域的狭隘和压迫的感觉
玄关过道刷成红色,打造较为亮眼的入户景观,过道柜子更换门板,使和全屋柜子色调统一。
阳台门取消,使阳台和客厅合二为一,使公区面积更宽阔。阳台柜和电视背景组合柜无缝对接,视觉上使空间的完整性更好,也使阳台的空间利用更加优化
客餐厅天花变换造型,原天花高度较低,并且容易藏灰藏尘....
经设计调整后,天花高度上移,并改成简约耐看的双眼皮造型,同时增加照明啦~
原厨房门造型较为笨重老气,改为窄边黑色玻璃门,更符合设计风格和调性。
飘窗柜延伸出来一组矮柜,背靠沙发,形成L型的收纳柜,解决餐厅原格局暴露出来的收纳不足的问题
餐厅飘窗增加柜子,形成一个方便实用的小型餐边操作台,可以放置小家电和其他餐厅小物件
飘窗定制软垫,提高飘窗舒适度,适合闲暇之余放松心情~
主卧做了L型衣柜,作为主卫和床之间的分隔。解决卫生间对着床的问题柜子的侧面单独做了薄柜,用来收纳女主人日常的化妆品以及饰品等小物件,方便又实用床尾增加木质矮柜,储物功能狠狠拉满啦~
长辈房设计榻榻米,为了方便长辈日常使用。床头做了抬高设计,可以收纳小件物品,替代了床头柜的作用同时增加壁灯,方便夜晚起夜或者临时照明。床尾是满墙的高柜,满足日常收纳~适当的开放格设计也为柜子的使用提供更大的便捷性。
相关案例推荐
 
							赖小丽
设计师相关作品
 
 
 
												
													
														
															
																 
												
													
														
															
																 
												
													
														
															
																 
												
													
														
															
																 
												
													
														
															
																 
												
													
														
															
																 
												
													
														
															
																 
												
													
														
															
																 
												
													
														
															
																 
												
													
														
															
																 
												
													
														
															
																 
												
													
														
															
																 
												
													
														
															
																 
												
													
														
															
																 
												
													
														
															
																 
												
													
														
															
																 
												
													
														
															
																 
												
													
														
															
																 
												
													
														
															
																 
												
													
														
															
																 
												
													
														
															
																 
												
													
														
															
																 
												
													
														
															
																 
                                                     
                                                         
                                                     
                                                         
                                                     
                                                     
                                                     
                                                     
                                                         
											
										 
											 
											 
											 
											 
											 
														 
														 
														 
														 
														 
				 
                
 粤公网安备 44010602000156号
粤公网安备 44010602000156号