前言:
今天的案子是一套精装房改造,建面70平。很多人买到精装房都感慨:拆了可惜,留着难看。如果在小成本、小改动的情况下实现生活大改变,是我们此次着重思考的。
业主是一对新婚青年,有一只可爱的蓝猫,在不改大格局下,我们把空间变为一室一厅的布局,并增加大量收纳及储物空间。
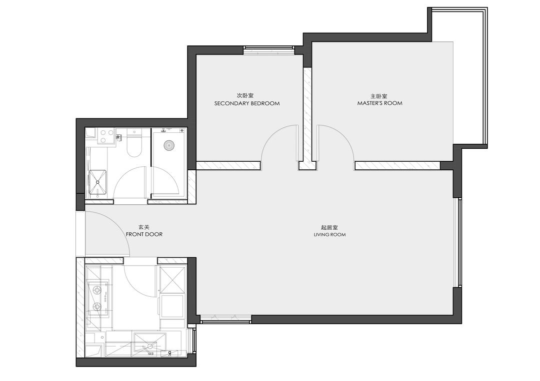
原始户型:
我们保留了原有精装厨房及卫生间,原精装格局厨房较小,无法满足现代烹饪需求。
客厅面积局促,收纳空间受限。
新的布局:
1、我们在靠厨房一侧的餐厅位置增加了一个水吧台,满足业主冲泡咖啡,茶的习惯。
2、我们在主卧墙上做了文章:
-移位门洞,使卧室内容纳衣柜的空间
-在墙上开墙洞,让猫猫可以自由活动。同时也增加了空间的通透感
-卧室重新布局,在10平米的空间内,实现超长衣柜+双人卧室+男主办公位+女主梳妆位置
-沙发靠窗设计,极大程度节省了空间。靠墙一侧是深度600的柜子,为以后次卧变成居住空间,拓展了收纳。
原精装玄关有三扇枣红色的门:入户门、厨房门、卫生间门
密集三扇门让空间分散,我们将其全部改色为白色,弱化掉突兀的门,和墙面融为一个整体。
将玄关顶部涂成蓝色,形成分区的感受。
家具选配上也选择白色呼应墙面,一进空间有一种明亮清新的感觉。
鞋柜是定制的挂壁金属鞋架,壁挂的安装方式让灰尘无所遁形。
业主装修前有一个宜家的餐桌,我们选配了色彩丰富的椅子和灯具来搭配
餐厅左侧是新增加的西厨,右侧放置了餐边柜,餐边柜上放置了电视。
业主习惯边看电视边吃饭,餐边柜里也放了随手可取的饮料和零食。
电视还可以满足业主打游戏的需求,围绕着餐桌,可容纳多人一起娱乐。
把零食放在桌子上,实现边玩边吃边喝,摇身一变成了娱乐空间。
水吧/西厨不仅可以满足烧水洗杯子的功能,台面还可以切水果,分摊厨房的压力。
餐厅柜部分我们做了细致的划分,上方柜子放置日常多买的存储物品,中间开放格可以放置厨房电器。开放格我们设计了上方窄下方宽,正好满足不同尺寸的电器尺寸。
柜子下方是四组抽屉,女主是杯子收集的狂魔,里面慢慢的放置的了女主的杯子。
小空间切记凌乱,不凌乱的重点就是有足够的收纳,一整排的定制柜满足了大量的收纳空间
配色还是白蓝配色,选择这个配色的原因是因为业主工作较忙,我们希望让空间可以疗愈浮躁的内心,蓝色有缓解焦虑的作用,让工作一天的疲惫,可以回到家放松下来,就像当我们看到蓝天大海那样。
我们定制了沙发,沙发下是四个可以收纳的抽屉柜,条纹地毯呼应了空间的配色。
沙发是业主休息的地方,也是猫猫最爱躺着的地方,业主开玩笑说这个家的主人是Bia(猫名)每个角落都是猫咪的空间。
沙发配合单椅形成客厅的区域,卧室墙上由一整排隔板分割墙面,上面是展示书记的空间,下面挂了投影,客厅也是观影的空间.
收纳柜的配色我们从大的蓝色中选取了三种不同的明度,让蓝色中又有层次感,猫厕所也嵌入在柜子里
猫猫在睡觉 / Cat is sleeping
原卧室的门我们跟换成移门,拉开移门感觉,客厅与卧室成为一个空间,从感受上让空间变得更大
主卧的门上开了一个猫猫洞,关门的适合也可以让猫猫进来。长虹玻璃既有通透性,又给空间增加了一些神秘感
猫咪最喜欢的空间
相关案例推荐
Kin

粤公网安备 44010602000156号