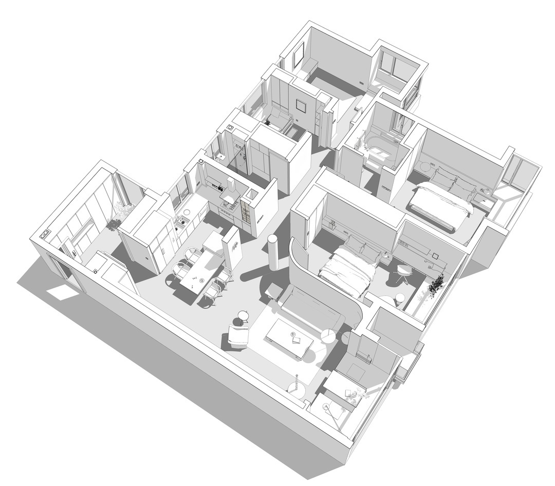
前言:
YU·REN DESIGN近期完成的私宅项目--坐落于广州市南沙区一隅。业主是一位刚准备退休的,知性优雅,温暖亲切的女性。喜欢品茶,咖啡,古琴,信仰佛教。追求本质生活和精神上的“净与静”的融合,也深谙生活的品位所在。本案以清净质朴,自然韵美,纯粹温暖来设定空间气质内涵。
而与我们而言,带精心持久且巧思打磨设计的心愿,去开始思考生活方式对空间美学关系。因理解业主的居住需求喜好和生活方式习惯,我们一直在思考当下该如何用设计语言表达,让客户更直观感受到我们独特的全案空间系统化设计价值,尽最大努力尊重设计中的“特殊性”,以及空间的气韵美感呈现每个项目。
开始探索人生漫生活节奏中寓所的“净与静,“净”是对空间的储物收纳功能和生活动线的巧妙处理“静”是向往自然,朴素,含蓄,内敛的东方美学意境,建筑多余的墙壁被拿掉,光线的引入,秀丽的玉竹,使气韵于空间之中自然流动。
餐椅来自本土原创设计家具:得闲DakHaan的玄武椅,实木与藤编,天然的木质材料搭配西班牙Marset吊灯,用最简单的色彩呈现最丰富的质感。
于万物之中,人与场所的关系以及通过场所直至空间的关系都基于他在其中的栖居。 一种生活方式,精神的轨迹,内在、主观的,一种哲学建构。
设计师借用雕塑造型加与减概念,着重审视人身体的空间尺度感与体验,让人的感官摆脱了固有物理限制,方与圆,刚与柔,错落于整洁,展现对立于统一的视觉平衡意向,使更纯粹的多与少,得与失,藉由空间完美比例和逻辑,流畅的弧形天花,有形和无型,彼此衔接成为现有建筑结构的延伸...
空间弥漫着静谧的光线--无形的美感,留白与余味,品位与追求,同理心,感受并回应环境
生活质量更多的是由内在状态决定的,当那些浮华绚烂褪去,剩下的是喧嚣之外静。物品少了,质感和情感让留下的更有价值,而镶嵌在物中的东西变得更有意义。
设计的目标不应该停留在使用和观赏,而是上升到影响,这是我对设计所做出的总结,对于使用者来说,一个空间作品的完成并非是结束,而恰恰是一个全新的开始.....
YU·REN DESIGN近期完成的私宅项目--坐落于广州市南沙区一隅。业主是一位刚准备退休的,知性优雅,温暖亲切的女性。喜欢品茶,咖啡,古琴,信仰佛教。追求本质生活和精神上的“净与静”的融合,也深谙生活的品位所在。本案以清净质朴,自然韵美,纯粹温暖来设定空间气质内涵。
开始探索人生漫生活节奏中寓所的“净与静
“净”是对空间的储物收纳功能和生活动线的巧妙处理“静”是向往自然,朴素,含蓄,内敛的东方美学意境,建筑多余的墙壁被拿掉,光线的引入,秀丽的玉竹,使气韵于空间之中自然流动。
于万物之中,人与场所的关系以及通过场所直至空间的关系都基于他在其中的栖居。 一种生活方式,精神的轨迹,内在、主观的,一种哲学建构。
弯曲即为力量与抵抗的迹象,且遵循内敛的姿态。当五感在空间钟意一种张弛有度的方式被调动,交织形成通透感时,它将延伸至情绪深处,触动内心,生动的,流动的精神涟漪即将打开。
客厅将电视柜与壁炉情景完美融合,打破和重组,功能与实用设计相结合,一边可隐藏电视,一边可做小酒柜,关起来又像是一扇窗。有趣的观念性就像一件雕塑,让我们重新审视日常生活中不一样的生活细节体验。
待人予茶
侍物修心
取之于生活
还之于生活
大地色系的质朴温润,线性,几何体量,适度的克制与平衡,采用纯粹的材质。
餐椅来自本土原创设计家具:得闲DakHaan的玄武椅,实木与藤编,天然的木质材料搭配西班牙Marset吊灯,用最简单的色彩呈现最丰富的质感。
万物皆有灵,艺术无止境。东方底蕴的含蓄在灯光氤氲渲染中背负独特性审美,艺术性表达尺度人居内在的温馨,将世间最美好的瞬间带给每一位客户。
相关案例推荐
李岱锐

粤公网安备 44010602000156号