前言:
本项目为280平米的大平层改造,居住者为一对夫妻及两个儿子,偶尔迎接长辈的来访。女主人渴望一个独特而舒适的空间,追求日式风格的自然温暖与粗犷肌理感。
灰色系天然大理石与拿铁色实木皮交织成自然沉稳的底色,宛如一幅静谧的山水画。餐厅与玄关的斧劈石墙面增添了粗犷的质感,肌理漆的柔和触感使空间如同轻柔的海浪,带来宁静的心境。通过对景手法,强化了空间的层次感,仿佛置身于大自然的怀抱。
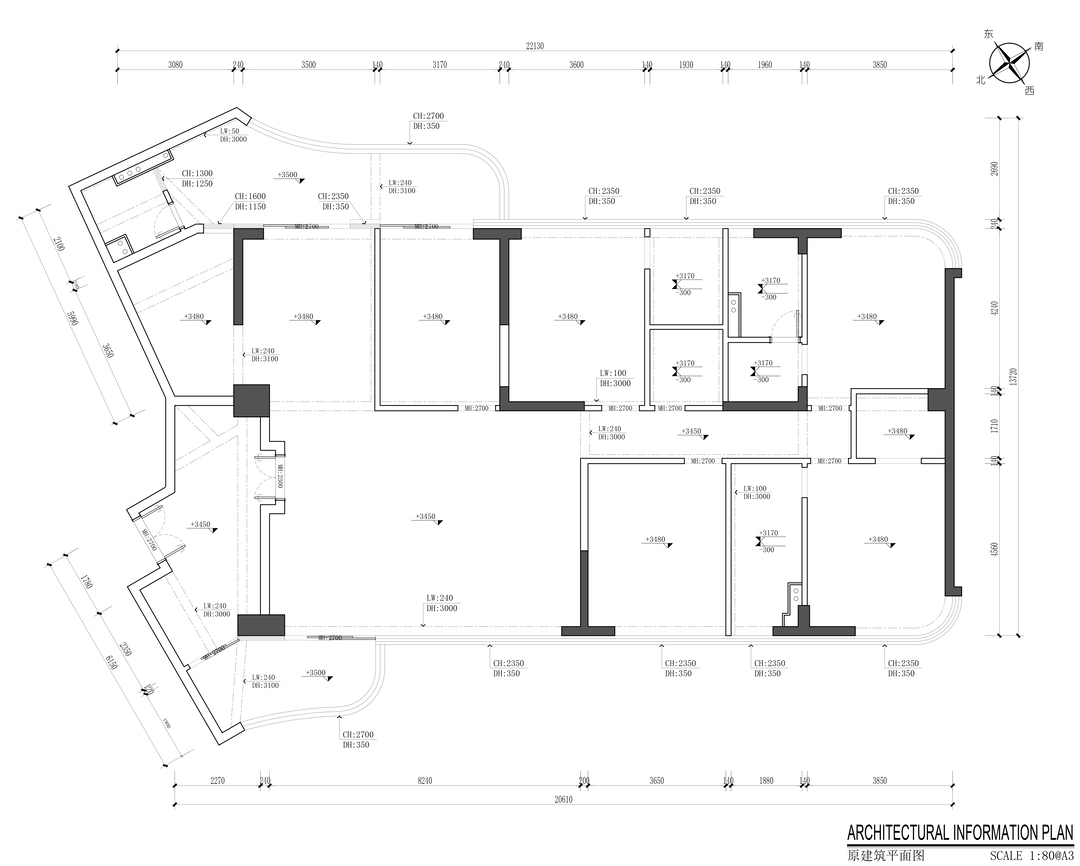
原始结构图
平面布置图
改造亮点:
入户设计:拆除生硬的隔断墙,巧妙设置双面柜,使客厅与玄关在无形中相互对话,创造温馨的迎宾氛围。
空间流动:书房的设计以推门为媒介,既保留独立,又引导南北通透,形成灵动的气流,宛如轻风拂过。
餐厨优化:借用书房的空间,巧妙设计酒水柜,增添储物容量,营造出如春日暖阳下共享美食的自然亲切感。阳台的杂物房并入厨房,不仅扩展了厨房使用面积,更增大了厨房窗户,带来更好的采光。
卧室拓展:通过合并走道,拓宽主卧与衣帽间,营造出一个如同温暖巢穴般的休憩空间。
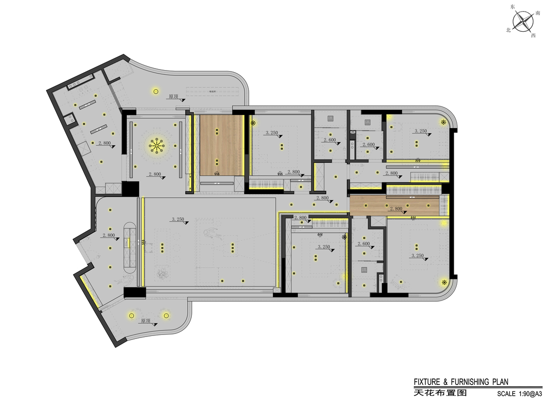
天花灯位图
卫生间采用统一的色调,营造开阔整洁的视觉效果,简约的悬空浴室柜,增大空间感。采用玻璃推拉门保证淋浴区的通透性,实现有效的干湿分离,淋浴间增加大理石坐凳,方便沐浴和护理。
原主卧的空间配比较小,将之前走道空间并入主卧,拓宽主卧面积,同时增大衣帽间,满足日常衣物的收纳。并在入口处做迷你吧方便卧室饮水及随手放置小物件。沿用全屋整体色调,木饰面增加质感,床头的壁灯与吊灯形成上下呼应关系,营造温馨舒适的休憩氛围
做成抬高”和室“书房,四扇推门增加”和室“韵味,增加南北对流,日常作为书房和琴房使用,整面书墙,为爱看书的业主一家提供惬意的阅读空间,书柜移门可自由选择开合部位;偶尔有亲朋留宿时,也可以直接铺上床垫当临时卧室。角落预留有备用衣柜,可以储存临时用的床品及客用衣物
相关案例推荐
陈诚

粤公网安备 44010602000156号