前言:
本项目是277㎡大平层精装房改造,常住人口为一对夫妻和两个儿子,长辈偶尔来住。
女主人希望能有一个完全按照自己喜好设计的舒适空间,不想要千篇一律的设计,而是具有一定个人色彩的独特设计。
女主人喜欢日式风格,喜欢木质与石材带来的自然温暖感觉,喜欢粗糙的肌理感。于是我们通过材质、色彩结合业主的生活习惯、审美偏好将本案风格定位为日式风。
国内很多日式都是走小清新路线,对于本案大平层户型结构而言,女主人一开始担心选择日式风格会被带入“紧凑型”的感觉中,经过分析对比一些高级日式酒店及住宅设计,如设计大师傅厚民的“香港奕居””缦合北京超奢平层“”日本AMOAM海滨奢华别墅“ , 设计大师Kerry Hill的“伊都安缦酒店”“京安缦酒店”等,我们提取适用元素,最终完成本案选材设计。
本案以灰色系天然大理石与拿铁色实木皮,奠定整个空间自然沉稳的色调;餐厅装饰墙与玄关石凳采用粗糙的斧劈石,带来自然的粗粝质感;肌理漆使整个空间具有温和质感。同时结合对景手法,强调互对景物的视点与人的关系,增加空间的层次感。
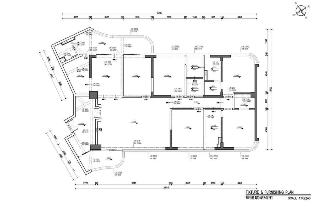
改造前:
①原有的入户玄关为独立空间,与客餐厅生硬隔开
②客厅的原始结构南北景观特别好,但南北交流性不强,每间房独立隔开缺乏互动
③考虑到餐厅比例略小,放置酒水柜后会显得狭窄
④原有主卧面积在整体比例中略小,需要对空间进行合理优化
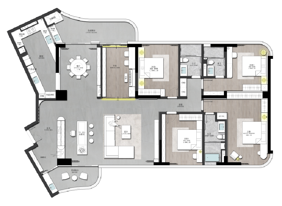
改造后:
①拆除入户隔断墙,设立玄关柜及茶柜双面柜;玄关一侧设立鞋柜、挂衣区,另一侧设悬空换鞋凳,与客厅增强互动
②通过拆除原客厅边上房间墙体,做成抬高“和室”书房,四扇推门增加”和室“韵味,增加南北对流
③借用书房空间,墙体移动留出餐厅酒水柜位,增加餐厅储物容量
④将原先的走道空间并入主卧,拓宽主卧面积
玄关设置玄关柜及茶柜双面柜,由弧形墙面缓缓引入室内,动线流畅,视觉柔和,增强入户的仪式感。一侧设立鞋柜、挂衣区,另一侧利用粗糙斧劈石制成的石凳结合岛形双面柜作为换鞋凳,与客厅增强互动。
玄关选用拿铁色实木皮,墙体的材质、色调一致,保持视觉整体感,实现美观与实用兼具。墙面于不规律光束的映射下,呈现出温润高雅的格调。
客厅采用开放式布局,将书房或茶室置入其中,扩大空间视野。书房做了四扇推门,开合之间,形成微妙联动,同时保证空间的封闭独立。透光不透影的推门,视觉上也会更加轻盈。
沙发墙
地板
灯具
地毯
客厅
沙发
日式
隔断
瓷砖
电视墙
窗帘
客厅采用开放式布局,将书房或茶室置入其中,扩大空间视野。书房做了四扇推门,开合之间,形成微妙联动,同时保证空间的封闭独立。透光不透影的推门,视觉上也会更加轻盈。
沙发墙
地板
灯具
地毯
客厅
沙发
日式
隔断
瓷砖
电视柜
电视墙
窗帘
沙发墙
地板
装饰画
灯具
客厅
沙发
日式
饰品
隔断
电视柜
电视墙
窗帘
通过借用书房空间,墙体移动留出餐厅酒水柜位,增加餐厅储物容量。 上方吊柜满足酒水的收纳,做玻璃柜门,兼具展示功能。餐边柜中间留空做操作台,预留轨道插座的位置,放置小厨电,方便制作简餐。
餐椅
餐厅
地板
餐桌
灯具
餐边柜
日式
隔断
瓷砖
橱柜
采用胡桃木制成的圆桌,天然的亲切感,赋予空间自然气息、搭配圆弧形靠背+ 软包座面餐椅,营造出融洽的家庭氛围。
地板
浴缸
干湿分离
日式
壁挂式马桶
隔断
镜柜
热水器
花砖
壁龛
灯具
浴室柜
镜子
淋浴房
瓷砖
卫生间
卫生间采用统一的色调,营造开阔整洁的视觉效果,简约的悬空浴室柜,增大空间感。采用玻璃推拉门保证淋浴区的通透性,实现有效的干湿分离,淋浴间增加大理石坐凳,方便沐浴和护理。
地板
地毯
日式
衣柜
卧室
床头柜
窗帘
飘窗
定制柜
灯具
床品
床
瓷砖
主卧的空间配比较小,将之前走道空间并入主卧,拓宽主卧面积,同时增大衣帽间,满足日常衣物的收纳。沿用全屋整体色调,木饰面增加质感,床头的壁灯与吊灯形成上下关系,营造温馨舒适的休憩氛围。
地板
地毯
日式
衣柜
卧室
床头柜
窗帘
飘窗
定制柜
灯具
床品
床
瓷砖
相关案例推荐
博睿设计
设计师相关作品

粤公网安备 44010602000156号