前言:
人与人,人与物,同一空间下不同时间的互动与联结,开放各个空间的属性,不再拘泥于一个固定的生活方式,空间与时间,开始相互开放与联结。
本案位于广州黄埔区的一栋精装交付新房,屋主是一对90后新婚小夫妻,在还没有正式收楼之前,屋主便找到我,希望以一个较少的改动达成自己想要的居住效果。
屋子本身的精装交付质量就挺不错的,并且天花内暗藏了全屋的新风系统不适合大规模改动,无奈整体的配色和装饰墙过于老气,仍然需要一些“年轻化”的改造~
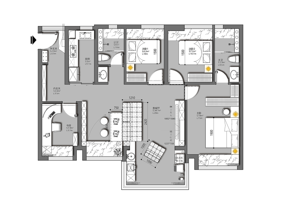
原始的户型图本身就足够方正,各个空间均有采光且利用率高。
①屋主夫妇现阶段是两人居住,男屋主想要一间独立的书房,女屋主则需要一间衣帽间,还需要腾出一间房给未来的小孩使用,现在布局上的四房刚好可以满足。
②公共洗手间侧面的卧室原本开门位置是从洗手台背面走进去的,稍微显得拥挤。
③原本客厅的阳台非常开阔,对比之下客厅的宽度有点狭小。
整体户型是很好的,设计布局上针对上面的②③问题进行专门的调整:
①最小卧室的房门封闭起来,不从公卫侧面进入,改为和其他卧室一样从过道出入。
②屋主对烘干机的接受程度比较高,不需要单独的阳台区域晾晒衣服之后,原阳台可以封窗后合并进客厅,成为客厅的一部分,更大的扩宽客厅的纵深感~
入户玄关处并没有什么特殊改动,仅增加一面储物柜,用来把热水器燃气表等设备藏进去。
中间留出一条小开放格,方便放下随手的包包快递等~
强电箱与弱电箱分别用入户小挂钩和电箱画盖住,美观又实用~
接着再往里面走,便可以直接看到6.4m径长的客餐厅。
原本地面的砖并没有拆除,而是直接在其基础上重新再铺贴一层木地板,整面的木地板与墙面柜体的木色进行衔接,直接把整屋的配色统一起来,完全改变了原有精装的配色。
天花中已经布满了原有的新风系统,所以完全保留不做改动。
少部分柜体配色采用深灰色来搭配,于是便形成了全屋原木色+深灰色+白色的经典配色
为了避免从餐桌视角望向客厅左侧看起来不够整体,三间卧室门同样采用同色隐藏门定制。
平时不开启时可以更自然地划分公共区域与休息静区。
得益于阳台合并容纳进客厅,搭配卧室隐藏门,现在客厅的整体宽度得到视觉延伸
原本通往卧室地过道区域也不会显得突兀,可以很好地融入成为客厅的一部分。
屋主闲暇时有观影的习惯,因为原本的精装天花保留不变,所以特意设计了地升幕布暗藏进地柜里面。
平时使用电视机观看流媒体,需要好好欣赏电影时电动升起地升幕布,音箱采用分体式安放在左右两边,不会被幕布升起所影响
客厅内的软装挑选非常地克制,ASIADES家的ZAN复古麂皮休闲椅与皮埃蒙特沙发构成了客厅的主要家具,两者颜色均选择了比较平衡的中灰色。
再搭配NORHOR家的LITH本色茶几,把空间中的木色延续到客厅中心。
地毯来自青山美宿家的“川-杏色”莫兰迪系列,单独视觉上划分一块休闲区出来。
这是一些改造前后的对比图,即使仅仅改动地面与重新制作柜体,也可以获得焕然一新的改造体验。
施工的过程中,不断有同户型的邻居前来参考交流。
阳台被合并入客厅之后,除了保留洗衣机烘干机摆放的基础职能外,还多了两个新用途~
①小区内部绿化很不错,封窗时特意定制了超大的整面玻璃,既成了观景阳台又为室内带来更多的采光
②原本阳台侧面自带上下水位,设计时顺势改造成了一个水吧台,上方设计层板刚好安放路由器和投影仪
对于餐厅的构想,我们想赋予这个空间更多的可能性。阅读区?吧台?办公?或者全开放?
于是设计时利用餐厅侧面的窗户与飘窗上的空间,设置了旋转定制吧台,需要使用时则划出来,不使用时则收纳进台面下,不占用空间。
客厅的皮埃蒙特沙发,靠垫可以随意拎起来改变方向,并且沙发本身方便拖动。
为客餐厅的全开放式布局提供了更多可能性~
ps:餐边柜的厚度挡住了空调下方的回风口,于是在定制柜体的最上沿镂空回风槽解决
从餐桌上望向电视墙,方便男女屋主更好地在同一个空间下互动
木地板直接从客厅通铺到卧室,定制梳妆台也保留了客厅同款木色,保持一致的空间色调
衣柜的柜门中间一块采用灰色玻璃制作,同样开阔视野延伸感。
床头护墙板沿用木栅格的形式制作,视觉上延伸空间内的纵深感。
洗手间保留原有精装房的洗手间不变,不过特意定制了几块客厅同款木色的柜门,用来替换原本的浴室柜柜门。
进入洗手间的位置位于卧室衣柜背后,刻意用衣柜隔开既保留了私密性又扩充了衣柜的储物空间。
精装房的改造区别于其他的翻新改造,不能全部拆掉重来,设计中既要考虑原有硬装的保留又需要满足屋主的生活方式。
施工的过程中更是如此,需要施工师傅以手术刀般的精准来改造,非常感谢这次的施工方李工,在疫情放开反复感染的情况下完成了本次施工。为大家点赞!
完工后的大合照,左起到右分别是施工监理李工、屋主夫妇、设计师吴思昊
Q&A
Q:装修过程花了多长时间?
A:装修时间花了四个月,原本精装改造并不需要这么长的时间,中间经历广州下半年的大规模封城和疫情放开,所以耽误了收尾的时间。
Q:你对这套作品最满意的地方在哪里,为什么?
A:最满意的地方在于地升幕布与旋转吧台的完美落地,因为精装的特殊性所以采用这两个不太常见的设计手法,实施施工的过程中我们在现场反复演练和调试,最终完美达到了落地效果,屋主入住后使用起来也非常的方便。
Q:对平面布局做了哪些优化改动,为什么?
A:针对平面布局的改动并不大,原始精装的水电竣工图并不完整,实际改造的时候我们仅能依据钢筋探测仪来进行估算。于是为了避免可能拆墙带来的水电损坏,我们仅仅改动了阳台和卧室的小部分墙体。
Q: 在整个装修设计期间遇到最大的挑战是什么?
A:最大的施工挑战其实来自阳台的大玻璃,这块超大玻璃从小区大门运输到屋主楼下需要经过几个小的拐弯道路,为此我们特意制作了保护海绵覆盖每一个可能被撞到的位置,最终花了很大的精力才得以安装上去。
相关案例推荐
吴思昊
设计师相关作品
编辑精选

粤公网安备 44010602000156号