前言: 空间开放共融的环境是一种最佳状态。开放则利于放松心态。 消除外面的世界带来的烦恼,让精神得到治愈和净化,“最关键的是,在开放的家中,人的精神与思想也要能保持相对独立,才能真正的涵养心灵和自我成长。”
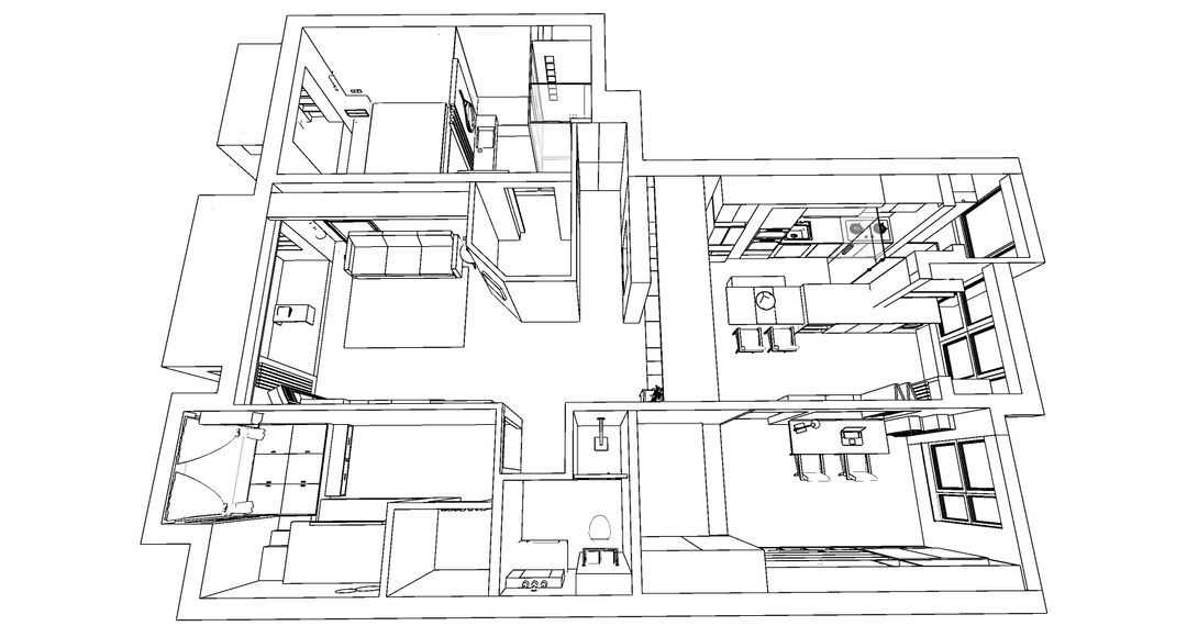
户型图
规划后平面图纸和原有图纸对比:1.原本进门区域比较狭小,一边是实墙,一边是拥堵的柜子。现在把进门做成了亮点,玄关鞋柜设计成了一个框景,框景内是一面黑板墙和复合磁力漆。2.原本餐厅是封闭的,摆放完餐桌就没有过道了,于是把厨房和餐厅结合做成了开放式。3.原本书房比较封闭,对于两人居住太有距离感了,现在做了一个折叠窗,灵活打开书房空间,融入大空间。4.原本主卧洗手间门正对着主卧门,封闭并且没有窗户,没有浴缸的位置,现在四分离还有1500mm浴缸。
玄关
结合顶面、地面和灯光,让进门有一个路线感,沿着光的方向往里走。客餐厅的大空间里没有做没必要的吊顶,唯一做的就是玄关区域,看似一条飘带分割了客餐厅的顶面。#玄关#玄关柜
用柜子做墙体,避免了墙体的厚度占用一定的空间,透过柜子是一个框景,框景内是一面黑板墙和复合磁力漆。
相关案例推荐
网友评论
东作西成设计室
设计师相关作品

粤公网安备 44010602000156号