所有丨南北中轴分公私 东方院落隐四时 家承永续生生不息
									前言:
									住宅主人是一家三口,年轻夫妇正经历着迈向不惑之年的人生旅程,与孩子的美好童年相伴。他们期望未来十几年三口之家的生活,能在这座200㎡的大平层中扎根生长,留下珍贵的共度记忆。得益于三面环窗、开敞通透的建筑条件,空间序列有机会围绕生活淋漓铺陈。设计主轴聚焦为家庭成员营造内外向兼顾的共生场域,兼备格调提升。
以南北中轴为界对仗公私区:东为公,柔性边界串联起5个「相望而不相扰」的生活场景。既回应了中国人的含蓄情感表达,又将传统中国院落中「移步易景」的观游趣味转译到这个当代大平层中。西为私,独处空间隔而不绝、开合有度,让原本只能发生在公区的家人相遇在这里延续。一座可以永居的房子,见证居住者的幼有
									
												 新中式
															
														
															
																简约
															
														
															
																现代
															
														
															
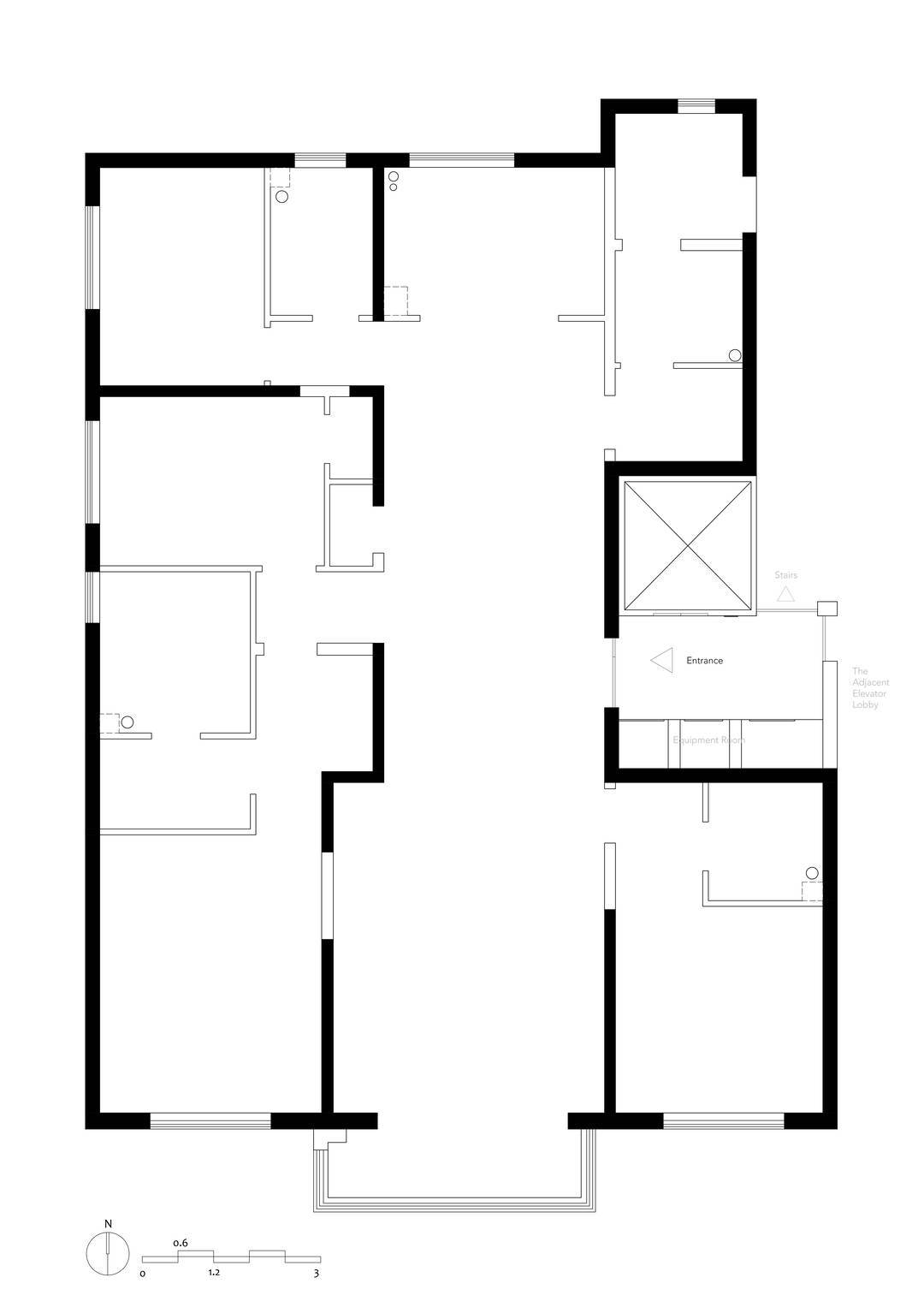
																户型图
															
														
															
																自然风
															
														
															
																轻奢
															
														
															
																现代简约
															
														
															
																中式
															
														
															
																原木
												
													
														
															
																新中式
															
														
															
																简约
															
														
															
																现代
															
														
															
																户型图
															
														
															
																自然风
															
														
															
																轻奢
															
														
															
																现代简约
															
														
															
																中式
															
														
															
																原木
															
														
													
												
											
设计前:
公私区序列无章,空间各自为阵,动线曲折、功能单一、采光受阻、互动性不足。入户开门见厅,私密性缺失。
												 新中式
															
														
															
																简约
															
														
															
																现代
															
														
															
																户型图
															
														
															
																自然风
															
														
															
																轻奢
															
														
															
																现代简约
															
														
															
																中式
															
														
															
																原木
												
													
														
															
																新中式
															
														
															
																简约
															
														
															
																现代
															
														
															
																户型图
															
														
															
																自然风
															
														
															
																轻奢
															
														
															
																现代简约
															
														
															
																中式
															
														
															
																原木
															
														
													
												
											
设计后:
重构空间秩序:打开公区,建立五进关系,动线流畅、效能丰富、光线穿透;梳理私区生活场景,独处体验舒适,合理共享。
												 新中式
															
														
															
																简约
															
														
															
																现代
															
														
															
																玄关
															
														
															
																自然风
															
														
															
																轻奢
															
														
															
																现代简约
															
														
															
																中式
															
														
															
																原木
												
													
														
															
																新中式
															
														
															
																简约
															
														
															
																现代
															
														
															
																玄关
															
														
															
																自然风
															
														
															
																轻奢
															
														
															
																现代简约
															
														
															
																中式
															
														
															
																原木
															
														
													
												
											
												 新中式
															
														
															
																简约
															
														
															
																现代
															
														
															
																玄关
															
														
															
																自然风
															
														
															
																轻奢
															
														
															
																现代简约
															
														
															
																中式
															
														
															
																原木
												
													
														
															
																新中式
															
														
															
																简约
															
														
															
																现代
															
														
															
																玄关
															
														
															
																自然风
															
														
															
																轻奢
															
														
															
																现代简约
															
														
															
																中式
															
														
															
																原木
															
														
													
												
											
												 新中式
															
														
															
																简约
															
														
															
																现代
															
														
															
																玄关
															
														
															
																自然风
															
														
															
																轻奢
															
														
															
																现代简约
															
														
															
																中式
															
														
															
																原木
												
													
														
															
																新中式
															
														
															
																简约
															
														
															
																现代
															
														
															
																玄关
															
														
															
																自然风
															
														
															
																轻奢
															
														
															
																现代简约
															
														
															
																中式
															
														
															
																原木
															
														
													
												
											
												 新中式
															
														
															
																简约
															
														
															
																现代
															
														
															
																玄关
															
														
															
																自然风
															
														
															
																轻奢
															
														
															
																现代简约
															
														
															
																中式
															
														
															
																原木
												
													
														
															
																新中式
															
														
															
																简约
															
														
															
																现代
															
														
															
																玄关
															
														
															
																自然风
															
														
															
																轻奢
															
														
															
																现代简约
															
														
															
																中式
															
														
															
																原木
															
														
													
												
											
												 新中式
															
														
															
																简约
															
														
															
																现代
															
														
															
																玄关
															
														
															
																自然风
															
														
															
																轻奢
															
														
															
																现代简约
															
														
															
																中式
															
														
															
																原木
												
													
														
															
																新中式
															
														
															
																简约
															
														
															
																现代
															
														
															
																玄关
															
														
															
																自然风
															
														
															
																轻奢
															
														
															
																现代简约
															
														
															
																中式
															
														
															
																原木
															
														
													
												
											
以皮质格栅屏风做入户影壁,光影绰绰,隔而不阻的构成形式兼顾通透与隐私。悬空柜方便置物、体量轻盈。木材与细布的细腻触感自此开启,归家的温暖体验向内延绵。
												 新中式
															
														
															
																简约
															
														
															
																现代
															
														
															
																客厅
															
														
															
																自然风
															
														
															
																轻奢
															
														
															
																现代简约
															
														
															
																中式
															
														
															
																原木
												
													
														
															
																新中式
															
														
															
																简约
															
														
															
																现代
															
														
															
																客厅
															
														
															
																自然风
															
														
															
																轻奢
															
														
															
																现代简约
															
														
															
																中式
															
														
															
																原木
															
														
													
												
											
												 新中式
															
														
															
																简约
															
														
															
																现代
															
														
															
																客厅
															
														
															
																自然风
															
														
															
																轻奢
															
														
															
																现代简约
															
														
															
																中式
															
														
															
																原木
												
													
														
															
																新中式
															
														
															
																简约
															
														
															
																现代
															
														
															
																客厅
															
														
															
																自然风
															
														
															
																轻奢
															
														
															
																现代简约
															
														
															
																中式
															
														
															
																原木
															
														
													
												
											
												 新中式
															
														
															
																简约
															
														
															
																现代
															
														
															
																客厅
															
														
															
																自然风
															
														
															
																轻奢
															
														
															
																现代简约
															
														
															
																中式
															
														
															
																原木
												
													
														
															
																新中式
															
														
															
																简约
															
														
															
																现代
															
														
															
																客厅
															
														
															
																自然风
															
														
															
																轻奢
															
														
															
																现代简约
															
														
															
																中式
															
														
															
																原木
															
														
													
												
											
												 新中式
															
														
															
																简约
															
														
															
																现代
															
														
															
																客厅
															
														
															
																自然风
															
														
															
																轻奢
															
														
															
																现代简约
															
														
															
																中式
															
														
															
																原木
												
													
														
															
																新中式
															
														
															
																简约
															
														
															
																现代
															
														
															
																客厅
															
														
															
																自然风
															
														
															
																轻奢
															
														
															
																现代简约
															
														
															
																中式
															
														
															
																原木
															
														
													
												
											
												 新中式
															
														
															
																简约
															
														
															
																现代
															
														
															
																客厅
															
														
															
																自然风
															
														
															
																轻奢
															
														
															
																现代简约
															
														
															
																中式
															
														
															
																原木
												
													
														
															
																新中式
															
														
															
																简约
															
														
															
																现代
															
														
															
																客厅
															
														
															
																自然风
															
														
															
																轻奢
															
														
															
																现代简约
															
														
															
																中式
															
														
															
																原木
															
														
													
												
											
												 新中式
															
														
															
																简约
															
														
															
																现代
															
														
															
																客厅
															
														
															
																自然风
															
														
															
																轻奢
															
														
															
																现代简约
															
														
															
																中式
															
														
															
																原木
												
													
														
															
																新中式
															
														
															
																简约
															
														
															
																现代
															
														
															
																客厅
															
														
															
																自然风
															
														
															
																轻奢
															
														
															
																现代简约
															
														
															
																中式
															
														
															
																原木
															
														
													
												
											
打破常规沙发组合形式,以坐榻连接台面,坐卧形式轻松,使用场景多元,功能过度流畅。
由隐藏双开门进入,材质语汇延续,质朴的藤编肌理让睡眠空间安然自若。主卫双台盆促成洄游动线,释放四面墙体功能。不锈钢材质调和空间节奏,弧形穹顶聚焦体验,提升空间质感。由此可以流动至公区,或径直前往私区另一侧。
全家共享书房,在主卧室套房与儿童卧室之间,不仅是联结父母与孩子彼此心意的承载站,也是一间多功能房:作为儿童卧室的扩展空间,也可做客房使用,灵活性高。儿童卧室功能丰富,满足成长阶段的多种需求。
餐厨开放布局,分区却无界。烹饪空间以岛为中心形成流畅布局,实现了高效家务与社交互动的动态平衡。主餐位被包裹在长榻坐席中,释放空间的同时不影响就餐体验。备餐时能与家人对望、用餐时可畅聊生活乐事,家的温情自然流淌,三餐时光在光影中糅合成家的记忆。
相关案例推荐
 
							行十设计
设计师相关作品
 
 
 编辑精选
编辑精选 
												
													
														
															
																 
												
													
														
															
																 
												
													
														
															
																 
												
													
														
															
																 
												
													
														
															
																 
												
													
														
															
																 
												
													
														
															
																 
												
													
														
															
																 
												
													
														
															
																 
												
													
														
															
																 
												
													
														
															
																 
												
													
														
															
																 
												
													
														
															
																 
												
													
														
															
																 
												
													
														
															
																 
												
													
														
															
																 
												
													
														
															
																 
												
													
														
															
																 
												
													
														
															
																 
												
													
														
															
																 
												
													
														
															
																 
												
													
														
															
																 
												
													
														
															
																 
												
													
														
															
																 
												
													
														
															
																 
												
													
														
															
																 
												
													
														
															
																 
												
													
														
															
																 
												
													
														
															
																 
                                                     
                                                     
                                                         
                                                     
                                                         
                                                     
                                                     
                                                         
                                                     
											
											
										 
											 
											 
											 
											 
											 
														 
														 
														 
														 
														 
				 
                
 粤公网安备 44010602000156号
粤公网安备 44010602000156号