前言:
住宅生活不应该只是
每人拥有一个独立的房间
和一个公共活动的起居室
而是应该在一个住宅中
增加些可以停留、对话的地方
◆
宁波、宁波一个还想再去的地方。
屋主安家在宁波,其姐姐引荐我们认识,带着美好的愿景我们又再次合作共建新宅项目。
虽然是异地项目,但基于以往的成功合作,我们已在对接、执行到验收的全流程中积累了成熟经验,因此他对我们能圆满完成此次委托抱有深厚信心。
屋主是一家自营企业的CEO,拥有儿女双全的幸福家庭。他热爱骑行与运动、也喜欢带着家人一同旅行,为人热情随和,处处透露出一种通透的生活智慧。
地下室原始结构图
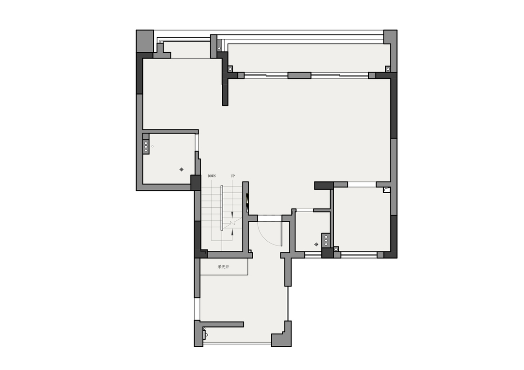
1F原始结构图
2F原始结构图
◆原结构存在的问题:
1.地下室楼梯处于光线黑暗的位置,且踏步较高,使用不舒服。
2.地下室只有一个小采光井,空间采光较差,层高有5米怎么合理利用,空气潮湿如何解决除湿问题。
3.一二楼空间分隔零碎,原始空间被切割面积狭小,入户的玄关、客厅和卧室边的阳台都未被利用。
4.原户型二楼3个卧室3个卫生间,卧室与卫生间数量过多,叠墅户型的优势没有体现。
-2F平面方案布置图
-1F平面方案布置图
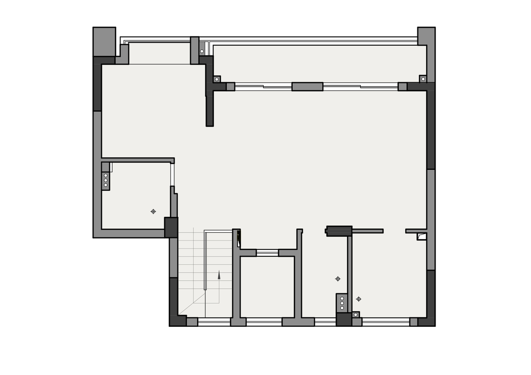
1F平面方案布置图
2F平面方案布置图
◆优化后的变动:
1.地下室层高5米一分为二,影音室与儿童娱乐区保留了挑空层高,减少遮挡尽量保留最佳光线。
2.负二楼作为日常主要的会客区域,增加地下室的使用频率,且离车库最近,方便朋友拜访时先来到此空间进行招待。
3.负一楼设置夹层空间,划分为了男屋主的书房与儿童手工区,一个相对安静自由的角落。
4.一楼作为一个家庭厅和小花园来使用,烹饪用餐写作业,家庭日常活动交流最多的空间。
5.应屋主要求,考虑培养儿子的独立自主性,男孩房设置在了一楼,两个孩子的卧室分在两层不同区域,保证一些私密性。
6.二楼布局放大了主卧在整体的比例,以套房的形式增设了衣帽间与主卫,增加了收纳空间与酒店式卫浴体验。
7.二楼设立多功能房作为过渡区,儿童和家长可以在这里做手工、学习,也是一个亲子互动场域。
8.对女儿房和儿子房的卫生间盥洗进行分离式处理,让空间更通透,有不一样的生活体验。
利用优越的层高优势
一分为二建立夹层空间
适当的挑空
带来了通透的视觉体验
空间瞬间让人安静了下来
发掘它迷人的一面
夹层空间的引入
为场景赋予层次感与艺术性。
独特的玻璃窗景
创建各场域之间的联系
由近及远
当孩子们在负二楼攀爬玩乐时
可以随时观察到儿童的动态情况
水吧台的设立
给朋友聚会带来了便捷
红酒、饮料、零食可以就近拿取
温润的暖木色
从水吧区延伸到影音室
隐藏式投影幕布、环绕式音响
身临其境般的视听体验
让在家看电影
也成为一种独特的享受
地台的设置
是一个置物平台
也增加了空间的序列感
减少了湿气对木材的侵入
精致的大理石
带来了典雅又美丽的气质
Flos——Taccia台灯
通过灯罩随意调整
为不同方向提供柔和且富有静谧感的照明
皮革、麻绳、羊毛的加入
对钢结构的硬朗设计有着很好的中和
软装融合包豪斯风格
深色系地毯
带来沉稳内敛的基调
娱乐区紧靠影音室
大人与儿童可以在同一空间玩乐
扩展亲子陪伴时间
吊环和爬绳是攀爬时的辅助工具
也是一种保护措施
饱和度较低的儿童椅
既童趣又不会过于抢眼
以素净的笔触勾勒空间轮廓
硬装褪去了冗余
自然洒落的天光
营造丰盈的感知体验
扶手与栏杆串联相通
特别的高度设置
保留通透的同时
也可以保证儿童的安全性
窗景是创作理念的延伸
光线自由穿梭
即使身处不同空间也能互相看见
拼乐高、做手工
美好的时光就这样慢慢流逝
圆润的家具
对儿童更加友好
不用担心磕碰受伤
陪伴孩子不受限制地快乐成长
空间不是艺术的背景
而是艺术的发生地
精心收藏的摆件陈列在此
布置成一所集生活与浪漫的理想之居
Panthella落地灯
展现了现代主义设计的先锋魅力
柔和的光线
装点了楼梯灰暗的角落
与众不同的手椅
既有雕塑感也有象征意义
每个人都值得被托举值得被爱
枝叶曼妙的绿植增加了户外感
空间充满生动与新意
超大落尘空间
满足归家的一切动线
条形边桌的选用
让每一物件都承载各自不同的功能
一楼家庭厅
用餐、阅读、辅导作业
日常活动交流最多的一处空间
闲暇无事时
孩子们与家长围坐在此聊聊天
火焰光影的跳跃舞动
带来一些动态的暖意
经典的非对称设计
悬浮结构释放轻盈感
优雅的女主人专属椅
通过绒面织物带来了柔软体验
古青玉茶几细腻而通透
裂纹般的不规则纹理
独树一帜
卡座的设置
为家人们围坐在一起
增添了别样的生活场景
餐厅是家人情感交流的重要场域
开放式餐厨空间
带来了更宽敞的空间体验
满足多人用餐
软装讲究消隐在空间里
充满未来秩序感
餐椅
冰箱
现代
餐厅
地板
灯具
餐桌
餐边柜
饰品
现代简约
橱柜
超大双开门冰箱(隐藏在门板之后)
生活的幸福感
触手可及
餐吧台考虑了置物功能
嵌入式轨道插座
可满足日常火锅和手机充电
是对餐桌功能的一种补充
空间动线重置以后
餐厅与吧台变成了洄游动线
摒弃常规的墙面隔断
通过巧妙的动线划分和材质区分
使得走廊连贯整个空间
吧台的另一边设置了吧椅
可满足日常简餐功能
或者小酌一杯
色彩活泼明快
营造舒适休憩氛围
悬浮背景分割了画面比例
抽象挂画的点缀
细节处尽显设计巧思
挂画颜色与场景颜色
互相对话
和谐而丰富
悬挂式镜子充满了惊喜
隔断的设置
既可以阻挡水汽又朦胧了画面
玻璃的巧妙利用
让暗卫也拥有了绝佳的空气流通和光线穿透
若隐若现
延续客厅的思路
力求营造一个干净、舒适的过渡空间
可以在这里做手工、学习
创建更多互动场景
被帷幔过滤后的阳光
一张柔软的单人沙发
寻找无忧的安静时光
与男孩房相反
女儿房以简约童趣设计为主调
营造出温馨自然的成长空间
伸缩壁灯的选择
不仅可调多种角度
也适配更多使用场景
将书桌功能巧妙地融入衣柜之中
通过分色处理
增加层次性
以玻璃隔断的形式分割空间
视觉上更加宽敞
半高的墙体刚好遮挡了台面的凌乱
展露出了造型精致的镜子
特地为女儿设置的梳妆角
洗脸、梳妆的动线实用又简便
黄铜圆弧镜子不仅是装饰也有功能
主卧更多的是理性与收敛
不过度炫技
通过基础的生活框架
在使用者真实的日常中随性生长
营造一个放松的家
在清晨阳光悄然降临时缓缓醒来
自然题材的装饰画
唤醒了墙面
对镜梳妆不为取悦别人
只为真正愉悦自己
墙面的留白
为空间增添了一些呼吸感
玻璃移门背后便是衣帽间
相关案例推荐
向以设计
设计师相关作品
编辑精选

粤公网安备 44010602000156号