前言:
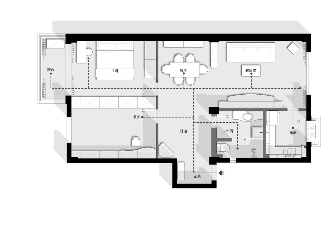
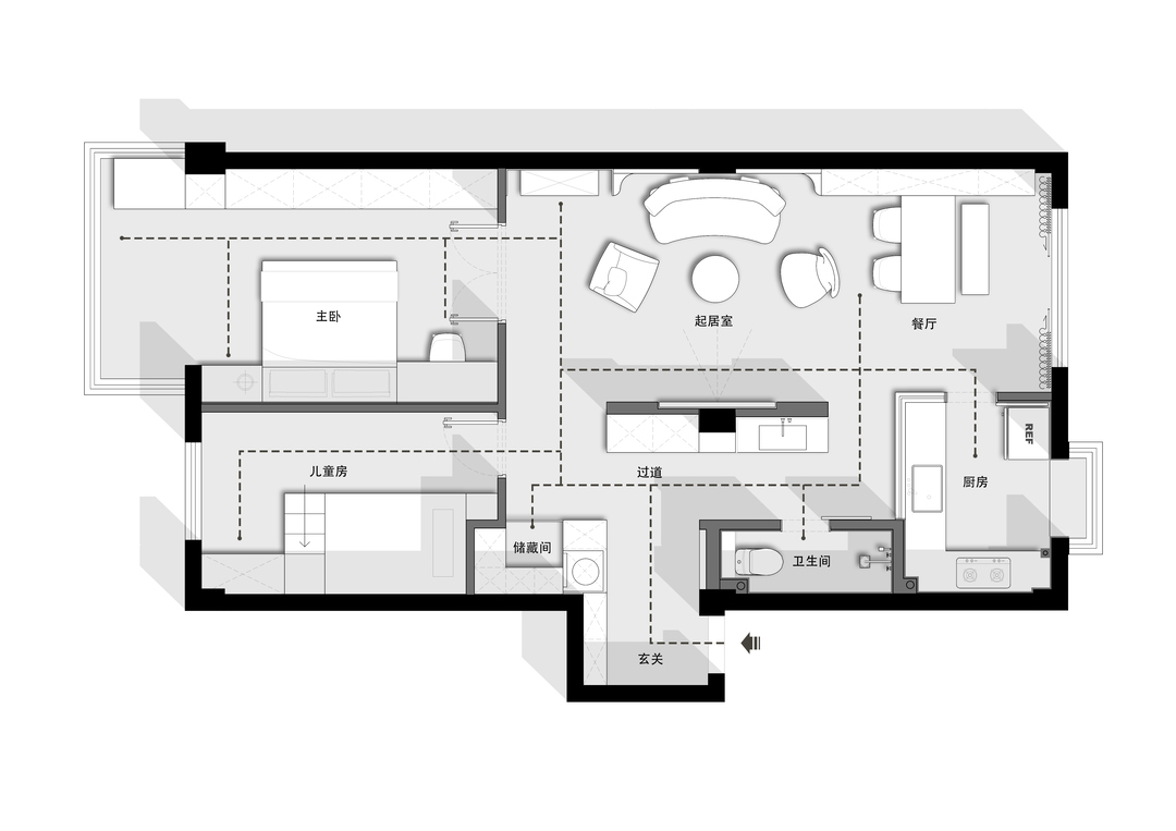
本案是武汉中心地区的一套老破小改造项目,原始户型为99㎡的传统两房结构。但存在空间布局不合理、隐私欠缺及设施陈旧等老住宅通病。
在最初设计沟通的时候,屋主提出了三个要求:希望可以打造温馨整洁、干净敞亮的小家,希望家中有大家坐在一起聊天的公共空间,同时也需要满足每位家庭成员个性生活的独立小天地。我们针对屋主的愿景,通过对空间的改造重组,成功营造出一个既整洁有序又动静相宜的居住环境,让这套二手学区房焕发新生。
卧室
相关案例推荐
网友评论
胡真滔
设计师相关作品

粤公网安备 44010602000156号