前言: 通过空间重组、光线优化与生态元素植入;采用木纹板材、拱形门洞等设计语言,打造兼具美学温度与实用功能的多代同堂理想居所。
【原始空间】:
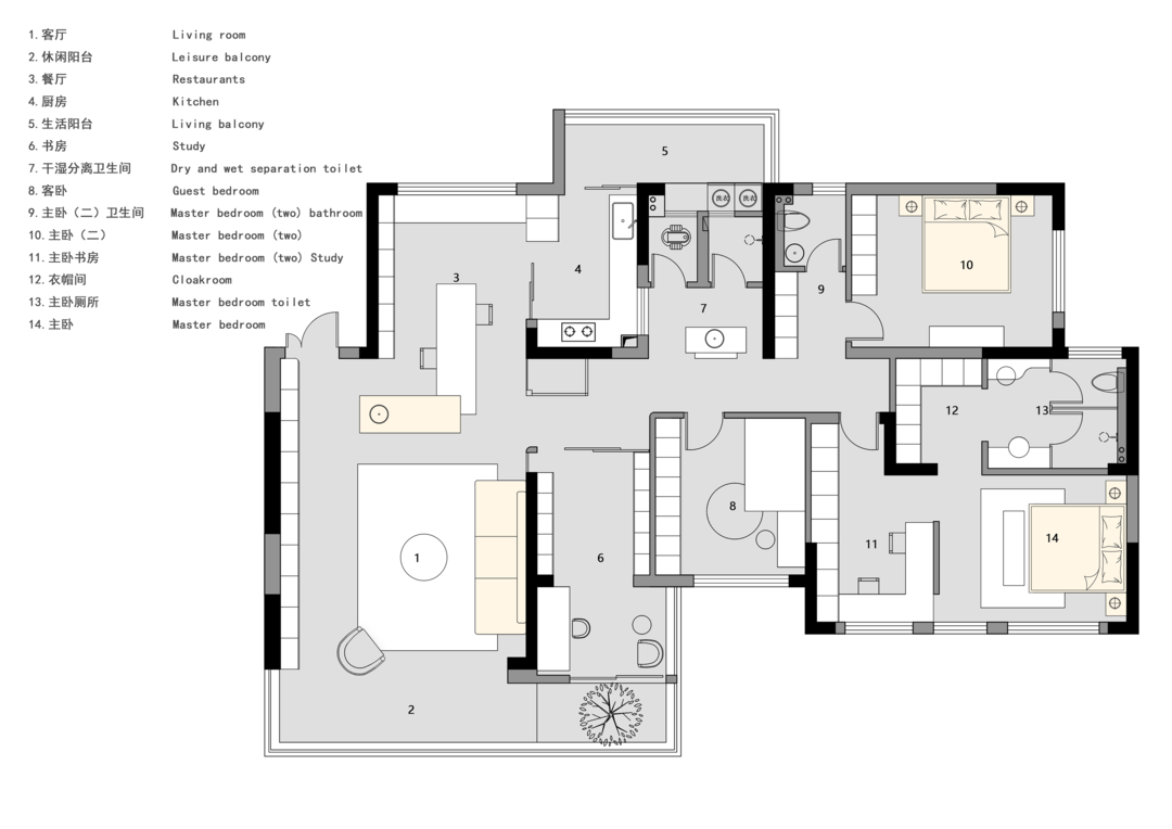
1.空间布局比较灵活,很多区域是大空间且墙体隔断较少,较为自由的划分功能区域;
2.采光较好,多个方向都有采光面,能让室内获得较为充足的自然光线,提升居住的明亮感和舒适度;
3.相对来说,客厅和餐厅的尺寸比较尴尬,餐厅比较短,客厅比较长,需要考虑融入岛台的设计。
【核心需求】:
1.代际共融:为祖孙三代打造多维度互动空间,连通客厅的书房绿植区、兼具学习与休闲功能的餐厅场景,以及三分离公卫与独立老人卫浴的双重保障;
2.功能迭代:针对户主的居家办公需求,在主卧设置可开闭的屏风式书房;儿童房采用模块化家具预留成长空间,全屋定制收纳系统实现隐形存储;
3.美学平衡:在户主偏好的极简基础中注入艺术元素,如书页造型的装饰墙、拱形走廊设计既保持空间整体性又避免单调。
整体采用原木极简的风格,以米色、黑色和木色为主色调,搭配协调,营造出温馨、宁静且有质感的空间氛围,顶面弧形造型与墙面弧度形成韵律,柔和了空间线条,配合隐藏式照明消解空间压迫感;窗户搭配轻薄的白色窗帘,既能保证充足的自然光线进入,又能营造柔和的氛围。
深色木质茶几、有设计感的家具线条,以及材质的细腻表现,凸显出空间的精致与高级感,绿植的点缀为空间增添生机与自然气息,搭配柔软的沙发、毛绒质感的座椅,从视觉和触觉上都传递出舒适之感。
厨房采用浅米色和木色搭配,色调柔和,无过多复杂装饰,简洁大方。设置了大量的嵌入式橱柜,增加了储物空间,使厨房用品收纳整齐,节省空间让厨房更加整洁;厨房接通生活阳台,引入自然光线,也能有效排除烹饪时产生的油烟,保持空气清新。
餐厅与客厅、厨房区域相连,形成开放式空间,把餐桌和岛台做了一个L形的设计,不仅优化了空间动线,还通过视觉延伸增强了空间的互动性和通透感,方便日常生活和家人朋友交流;岛台集成的洗手台与收纳系统,实现功能与美学的双重提升。
公共卫生间门洞采用弧形拱顶设计,与走廊顶面造型呼应,弧形线条柔化了空间棱角,配合隐藏式灯带营造温馨氛围,使卫生间成为空间艺术的一部分;外置洗面区拓宽走廊空间,实现多人同时使用,减少高峰期等待时间,划分洗面区、如厕区、淋浴区三部分,形成过渡空间+实用功能的复合设计,为家庭成员提供了安全、舒适、富有设计感的卫浴体验。
主卧通过空间渗透、功能叠加、光线管理三大策略,实现了居住、办公、储物、卫浴四大核心功能的高效整合;采用无主灯设计,搭配壁灯,节省空间且光线柔和,让空间利用实现最大化,空间布局紧凑,通过材质过渡与线条划分实现休息区与过道的流畅衔接,更通过屏风、衣帽间等过渡空间的运用,将私密性与开放性完美平衡,成为全屋“自然美术馆”主题下的静谧核心区。
室内书房将衣柜与书房结合,实现储物与办公的一体化设计,利用屏风式墙体划分区域有效阻隔办公区与就寝区的视线干扰,保障业主夜间加班时不影响伴侣休息;为业主量身定制,配备符合人体工学的书桌与储物吊柜,满足文件收纳、设备摆放等办公需求。
书房通过空间重构、功能复合与生态美学的融合,形成“客厅-绿植区-书房”的复合空间序列,将阳台纳入书房,连接客厅,消除了空间隔阂,增强互动性;开放设计促进祖孙互动,满足居家办公、阅读、亲子互动等多元化需求,强化家庭情感联结;室内花园采用绿植与自然造景结合,既满足采光需求又降低养护成本,创造可呼吸的室内环境;而且书房通过可移动屏风与客厅连通,可快速转换为临时客房,满足偶尔访客需求。
儿童房位于主卧与书房之间,形成亲子互动三角区,既便于父母随时照看,又能共享书房的学习氛围,紧邻公区却保持独立,符合儿童对安全感与探索欲的双重需求;通过“去走廊化”实现“睡眠区+储物区”的高效布局,模块化家具的选择,可随成长需求调整功能分区,延长空间使用周期。
相关案例推荐
陈阳
设计师相关作品

粤公网安备 44010602000156号