前言:
拥有自己的时间,拥有阅历和智慧,我不会花很多时间想象变回小孩,但的确会花很多时间思考他们退休了以后。
"退"是最优雅的前进——退去领带勒出的刻度,退回草木生长的频率。
混凝土森林里长出的透气孔,让每个毛孔都学会深呼吸。飘窗收藏的十二种夕阳,比任何屏保都更懂光阴的质地。
一个家刚好够安放:一个向外探索的动词,一个向内蜷缩的形容词,和那个始终在两者之间,轻轻摆动的破折号。
我们总在追赶什么,却很少问:何处可以停泊?这方寸之间,不是逃离,而是选择另一种呼吸的方式。让脚步慢下来,让心宽一点,让生活不再被精确计算,而是被温柔地浪费。
客厅的沙发微微下陷,像一种温柔的邀请。赤脚踩在地板上,触感微凉,却让人莫名安心。窗外树影婆娑,偶尔有鸟鸣落进来,像一段即兴的旋律,不必听懂,只需感受。
楼板解构为悬浮的光井,只需一句轻唤,楼上楼下便能即时回应,一碗汤的温度就能让两层楼同时心动。
生活本该有一些留白,让心灵得以喘息。而家,就是那张可以随意涂改的草稿纸,允许我们写下不完美的句子,画歪斜的线条,或者干脆空着,等灵感自己找上门来。
那些被日常搁置的念头,终于有机会浮出水面,轻轻呼吸。
白昼的棱角渐渐模糊,灯光像一层薄雾,轻轻覆在物体的轮廓上。时间不再笔直向前,而是缓慢地流淌,带着某种近乎透明的恍惚。
像解开绳结的线,它容纳了所有未完成的、朦胧的、难以名状的部分。
空气中有隐约的甜香浮动,混合着某种亲切的咸鲜,动作自然而松散,没有精确的步骤需要遵循。
手指掠过台面,偶尔停顿,话语很少,却也不觉得空缺,那些未说出的部分,反而让空间显得更加饱满。
储藏与展示的功能被巧妙折叠进立面,既保持日常的克制,又为特殊时刻预留了慷慨。
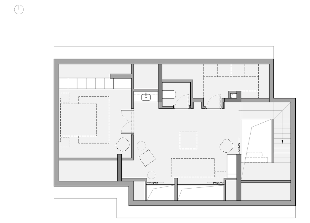
父母的卧室我们以未来可能性的目光丈量当下。卧室划分为两个套房移门开合之间,是独立与守望的微妙平衡。
分离的物理空间里,始终流淌着无形的联结。父母与子女,独立与依存,当下与未来,那些细枝末节的关怀被镌刻在每一寸留白里。
卫生间的尺度被重新定义,不再仅是功能性的存在,而是让每一个夜晚的辗转都获得从容的过渡,所有转折处都留有恰当的余量,让动作的滞涩也能找到流畅的路径。
当脚步的回声被墙壁温柔包裹,那些刻意保留的间隙,恰是造景最深邃的部分。当窗外的树影在尽头晃动,走廊便超越了通道的属性,成为居住体验中不可或缺的沉吟段落。
楼梯的负形被重新赋予意义,收纳空间嵌入建筑骨骼之中。与天地轴的玄关门相结合,界定公共与私密,既保持气流的通透,又让冷暖停留得恰到好处。
一间阁楼,几处错落的开口,都在无声地编织着两代人若即若离的联结。
父母抬头时能感知到阁楼透下的暖光,女儿俯身时能听见楼下传来的杯盏轻响。这种不刻意的互动,恰如家人之间最自然的状态:各自生长,却又根脉相连。
悬于顶层的秘密基地,是女儿归航时的私人太空舱。智能灯光随日夜节律模拟着不同行星表面的晨昏线。而藏在墙体和梁体间的反口灯带正计算着最舒适的空间驻留参数。
公共区保留着开放的格局,不同质感的家具能根据需求自由重组,当她躺在沙发上,透过天窗凝视真实的星空时,楼下父母生活产生的轻微震动会通过结构传来,就像飞船接收到的来自地球的引力波。
无论她航行到哪个象限,这里永远是最补充能量的发射基站
光从天窗倾泻而下,那些无法直立的负空间,在设计的解构下蜕变为隐形的记忆体,以柜体的形式收纳着时光的碎片。
父母的目光向上,是牵挂的延伸孩子的脚步向下,是归巢的印记那些设计的细节里,藏着她未说出口的体贴,而他们留白的沉默中,是无需言明的懂得。
相关案例推荐
云行空间建筑设计
设计师相关作品
编辑精选

粤公网安备 44010602000156号