前言: 本案为业主婚房,设计重新设定生活格局,以上下界面梳理动静区域,转承更舒适的生活与社交节奏。全屋铺陈一场现代感的块面关系,克制且流畅的框架内化简约本质,客厅绿色地毯打破常规素色,与室外景观呼应,构建一隅呼吸之地。
1F
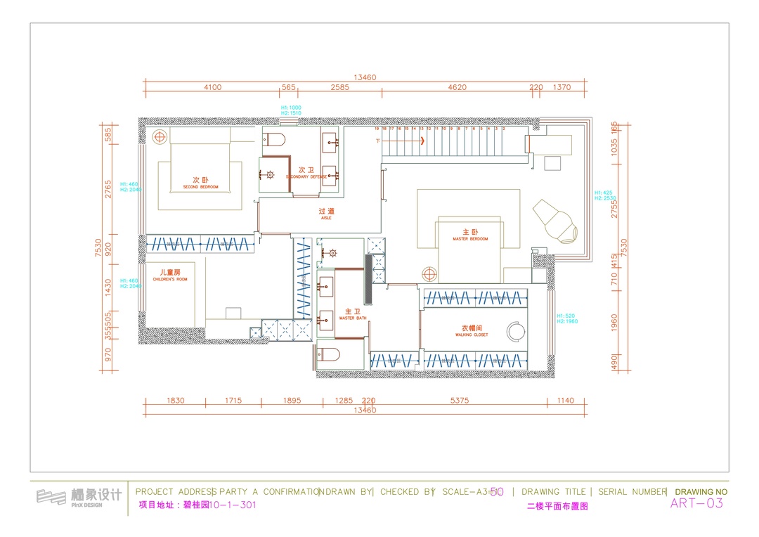
2F
项|目|信|息
PROJECTINFORMATION
项目名称:家的社交节奏设计公司:榀象设计项目地点:浙江·温州
项目面积:190m
主案设计:池旻烨
项目摄影:吴昌乐
内容策划:橙设传媒
设计时间:2024.04
完工时间:2025.01
主要材料:木作、岩板、金属、木地板
打破传统的预设
组合一场关乎自然与时间的精细化统筹展开自由、多变、创意的情节激发日常的无限想象去思索经得住考验的生活命题
榀象设计
光的生活场FIELD OF LIGHT
现代感的块面关系克制且流畅的框架内化
场景衍生,基于一场简约且序然的关系。
本案为业主婚房,设计重新设定生活格局,以上下界面理动静区域,转承更舒适的生活与社交节奏。全屋铺陈一场现代感的块面关系,克制且流畅的框架内化简约本质。客厅绿色地毯打破常规素色,与室外景观呼应,构建一隅呼吸之地。
一层公共区释放全域,南面房间拓入客厅,以留白制造流动的框架,使区域与结构之间形成舒适的递进关系,客餐厨穿梭有序,达成统一的空间语言。
搭配模块式沙发形成环绕的流动感,向四周散射交流切面塑造自由多元的场域形态,重构全景式社交场。
电视机搭配巴士门,移动切换更多样的使用场景。两侧收纳柜将未来孩子的玩具、生活杂物等内藏,既有生活温度又能保障干净整洁。
黑白分割体块,统筹零碎区域,协调整个公共区整洁有序幽黑质感的背景下,温暖的炉火缓缓滋生温度,加深了空间饱和度,凝聚出家的温馨实感。
基于对生活场景的理性构思,设计将楼梯进行改位内置通过台阶进行抬高,与客厅形成落差感,制造区域的隐性划分。
楼梯角设置品茗区,向外延伸与阳台构成一体,一抹绿植作为转角处的过渡,营造与自然共生的生活理念,享受一份松弛。
有序且克制地铺展生活逻辑形成开放且具有仪式感的社交剧场
基于对业主生活习惯和场景化结构的理性描摹,重新梳理餐厨互相兼容的紧密关系,为生活构建新的秩序美学,
客餐厅作为家庭生活场,串联厨房与岛台互为包容,和客厅联动洄游。流畅的灯光参与其中,有序且克制地铺展生活逻辑,形成开放且具有仪式感的社交剧场。
开放式厨房向外延伸,兼容岛台和圆桌餐厅,随日常行迹切换动态叠影,烹饪、就餐、聚会互相递进,给予不设限的自由形式。
岛台外部围合黑色格栅,白色台面穿插木结构体,作为料理、简餐的互动区,增加家庭交流的亲密感。
真正的空间,是结构、光与时间的一场对话。
楼梯作为场景转换的切入点,梳理着动静关系与层界调度设计以建筑思维布局界面,重视立面、比例、材料的简洁与真实性。悬浮式楼梯搭配白玻扶手组合轻盈结构,阳台与天窗指引光落入,给予视觉穿透和呼吸感。
睡眠区重视当下和未来家庭成员的需求,以一条过道串联三间卧室入口,增加空间利用率,在理性的布局中流露着对内心情绪的关照,
主卧套房铺展温润简约的框架,根据业主的日常习惯与使用动线,调度入寝、洗漱、更衣动线,优化宽阔舒适的收纳布局,展现品质格调。床头背景墙以线条和体块切割出流畅的黄金比例,不同材质、肌理互相拼接,与侧边的柜面呼应,丰富空间趣味,
独立衣帽间升级更高效的收纳体系,同时增设开放式的次净衣区,根据衣物品类、季节进行更精细化的布局。柜门与玻璃门互相搭配,打破单调和厚重感。双台盆卫浴符合业主的使用习惯,布局流畅舒宜的生活节奏,
自然作为人与空间关系链接的媒介,渲染一层通透感,引导场域精神再生。次卧布局完整的睡眠和收纳功能,传达身心舒适的空间尺度。柔软的床品、简约的造型、自然的呼吸,感受生活的细腻与热爱。
儿童房定制榻榻米和书桌,尺寸比例得到舒适的嵌合,布局和收纳皆考虑未来孩子的需求,营造安全舒适的居住体验,打造专属的成长世界。
现代化居住空间不仅仅局限于单一的简约形态,释放生活痕迹,内收感性的情绪,皆能洞察本质内里,塑造一份亲密与包容,一起参于这份对生活的热爱。
相关案例推荐
池旻烨
设计师相关作品
编辑精选

粤公网安备 44010602000156号