前言: 本案这方意式跃层,以利落黑白为基调,融入微水泥、黑色木作柜、岩板、不锈钢、玻璃等多重材质,构筑丰富的肌理层次。室内场域借开放式以及挑空设计,把视野打开,将空间尺度放大,打造出大气、时尚又饱含细节的都市摩登格调。
光是这个家中当之无愧的主角。白昼,阳光慷慨涌入,使居室浸润在无限温柔之中;夜晚,华灯初上、车流如织,绘就一幅美轮美奂的都市画卷。
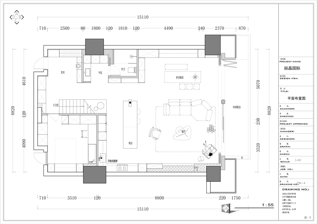
客厅运用挑空设计与极简线条延展空间尺度,黑白色赋予利落而深邃的气场。无论是阅读一本好书、聆听一曲爵士,亦或只是静静凝视窗外美景,这方空间都能提供恰到好处的氛围。
冰箱
洗碗机
油烟机
烤箱
橱柜
厨房
嵌入式家电
意式极简
开放式厨房
厨区的立柱包裹银色金属饰面,黑色岩板岛台质感高级,线条干净利落。隐形暖色灯光自缝隙间洒落,勾勒出材质边界,点亮黑与银的碰撞,营造别具一格的工业美学。
临近阳台向光侧的还有餐厅区域。餐厅不只是用餐空间,更融合了小酌、咖啡、轻食、聚餐等多重可能,无论独处亦或party,不同的状态、不同的心境,皆可在此处尽情绽放。
壁龛
灯具
干湿分离
镜子
壁挂式马桶
饰品
隔断
淋浴房
意式极简
卫生间
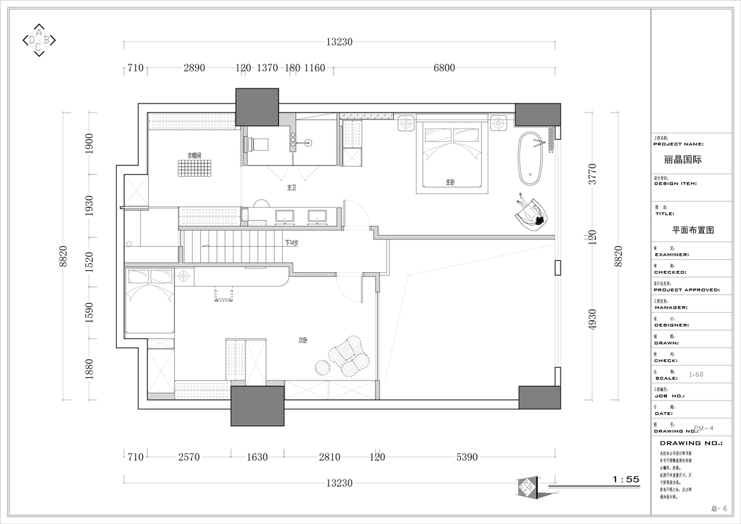
主次卫均采用干湿分离布局,延续室内大量岩板材质的运用,进一步强化现代意式风格的秩序美学。完整流畅的设计力加持下,卫浴空间也不再是隐蔽的功能角落,而是融入进整体居住美学的有机组成部分。
二层主卧延续了低奢黑白色调,更于窗边置入亚克力浴缸,搭配罗马帘,轻松营造优雅、惬意的酒店式氛围。
次卧是给家中小公主准备的房间,以弹性设计为理念,将宽敞的空间依序划分为睡眠区、储物区、学习区和休闲区。里侧做地台床,搭配波浪造型软包,细腻柔软,营造极舒适的包裹感。
相关案例推荐
浙江南鸿装饰股份有限公司
设计师相关作品

粤公网安备 44010602000156号