前言:
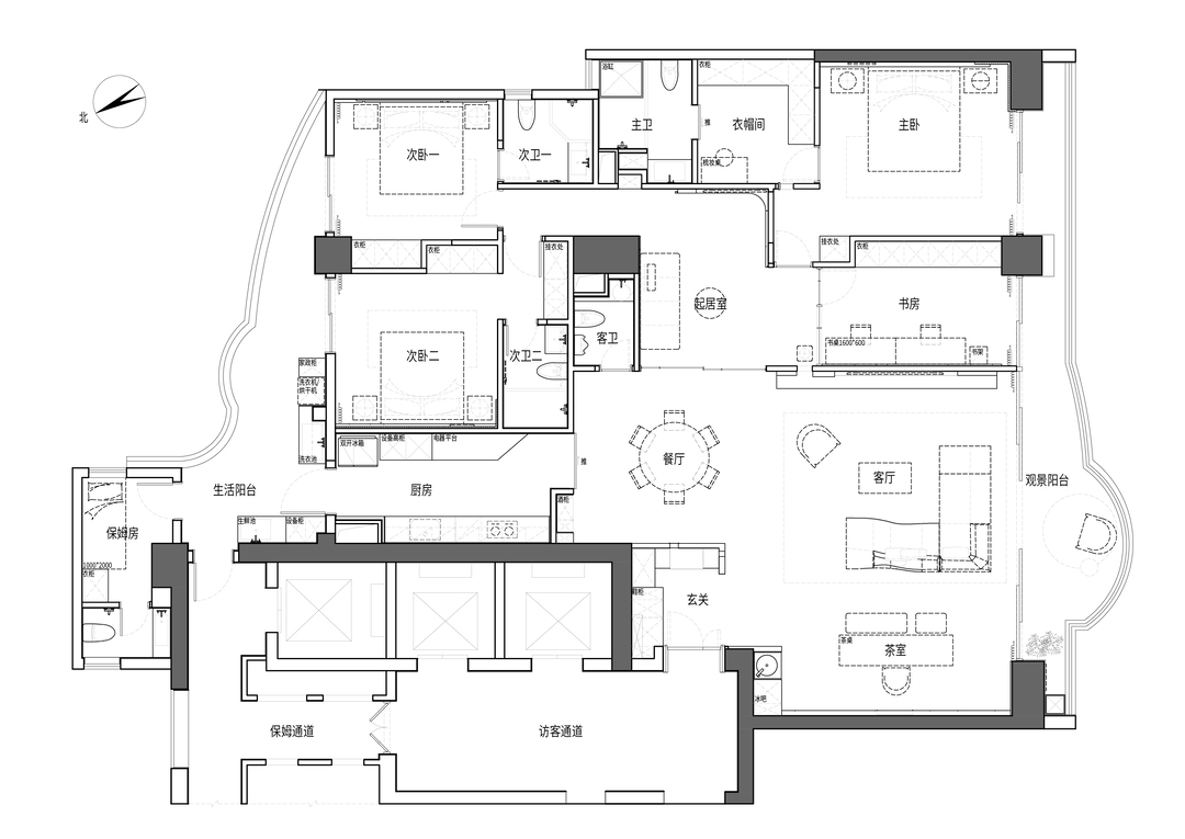
									这个被定位为高端豪宅的288㎡大平层,是小黄和小张共同拥有的第一个家。
90后大概天生就是来撕标签的,成长于上一辈主导的充满“红木家具”、“欧式水晶”的家,小黄和小张在自己的家里,完全推翻了传统豪宅的标志性元素,不依靠浮华的装饰自证身份,让一切“物”服务自己的生活状态。
									
												 绿植
															
														
															
																现代
															
														
															
																地板
															
														
															
																艺术品
															
														
															
																玄关
															
														
															
																鞋柜
															
														
															
																门厅柜
															
														
															
																现代简约
															
														
															
																隔断
															
														
															
																玄关柜
												
													
														
															
																绿植
															
														
															
																现代
															
														
															
																地板
															
														
															
																艺术品
															
														
															
																玄关
															
														
															
																鞋柜
															
														
															
																门厅柜
															
														
															
																现代简约
															
														
															
																隔断
															
														
															
																玄关柜
															
														
													
												
											
在打开门的第一视觉位,用胡桃木和莫奈花园奢石,作为空间的界定墙,让方正的公区与入户形成界限。
胡桃木沉稳质朴的材料性格,让视线“停”在这,奢石作为收藏品的托底,“留”下注意力,一停一留,不仅保护隐私,还向来者传递空间的情绪和居住者的格调。
												 现代
															
														
															
																地板
															
														
															
																艺术品
															
														
															
																客厅
															
														
															
																艺术漆
															
														
															
																沙发
															
														
															
																现代简约
															
														
															
																电视墙
															
														
															
																电视柜
															
														
															
																窗帘
												
													
														
															
																现代
															
														
															
																地板
															
														
															
																艺术品
															
														
															
																客厅
															
														
															
																艺术漆
															
														
															
																沙发
															
														
															
																现代简约
															
														
															
																电视墙
															
														
															
																电视柜
															
														
															
																窗帘
															
														
													
												
											
带有水泥粗犷质感的电视墙是公区的提示词,与起居室区隔;连贯的灯光和墙面金属线条形成串联,又引导客餐厅视角转换。
												 现代
															
														
															
																地板
															
														
															
																艺术品
															
														
															
																客厅
															
														
															
																艺术漆
															
														
															
																沙发
															
														
															
																现代简约
															
														
															
																电视墙
															
														
															
																电视柜
															
														
															
																窗帘
												
													
														
															
																现代
															
														
															
																地板
															
														
															
																艺术品
															
														
															
																客厅
															
														
															
																艺术漆
															
														
															
																沙发
															
														
															
																现代简约
															
														
															
																电视墙
															
														
															
																电视柜
															
														
															
																窗帘
															
														
													
												
											
												 绿植
															
														
															
																现代
															
														
															
																地板
															
														
															
																艺术品
															
														
															
																客厅
															
														
															
																沙发
															
														
															
																艺术漆
															
														
															
																现代简约
															
														
															
																电视柜
															
														
															
																电视墙
															
														
															
																窗帘
												
													
														
															
																绿植
															
														
															
																现代
															
														
															
																地板
															
														
															
																艺术品
															
														
															
																客厅
															
														
															
																沙发
															
														
															
																艺术漆
															
														
															
																现代简约
															
														
															
																电视柜
															
														
															
																电视墙
															
														
															
																窗帘
															
														
													
												
											
小黄和小张常在泡茶区接待亲朋好友,这是家里看到户外山景最好的位置。
得益于客厅有非常大的落地推拉门,室内外的界限变得模糊。为了让山石景观走进室内,茶桌背景选择了带有自然风化质感的白沙岩,在精致的现代语言中找到自然的粗粝感。
												 沙发墙
															
														
															
																绿植
															
														
															
																现代
															
														
															
																地板
															
														
															
																客厅
															
														
															
																沙发
															
														
															
																艺术漆
															
														
															
																现代简约
															
														
															
																窗帘
												
													
														
															
																沙发墙
															
														
															
																绿植
															
														
															
																现代
															
														
															
																地板
															
														
															
																客厅
															
														
															
																沙发
															
														
															
																艺术漆
															
														
															
																现代简约
															
														
															
																窗帘
															
														
													
												
											
												 绿植
															
														
															
																现代
															
														
															
																地板
															
														
															
																客厅
															
														
															
																沙发
															
														
															
																艺术漆
															
														
															
																现代简约
															
														
															
																电视柜
															
														
															
																电视墙
												
													
														
															
																绿植
															
														
															
																现代
															
														
															
																地板
															
														
															
																客厅
															
														
															
																沙发
															
														
															
																艺术漆
															
														
															
																现代简约
															
														
															
																电视柜
															
														
															
																电视墙
															
														
													
												
											
内外界限模糊,人和自然更近。
漆面除了带来“色”,还有微妙的“触感”。在天光落下时,夕阳打在水泥清漆、全屋手工涂刷的艺术漆上,漫反射的朦胧给现代的居家空间加上了来自远山的画外音。
&Tradition的X休闲椅,B&B的bend沙发,B&O的Beolab18音响,梦幻帘过滤的光影......软装家电的搭配,也是在质朴自然和清冷工业中找平衡,生动连绵的变换,打破“极简就是单调”的刻板印象。
												 冰箱
															
														
															
																现代
															
														
															
																地板
															
														
															
																油烟机
															
														
															
																现代简约
															
														
															
																烤箱
															
														
															
																橱柜
															
														
															
																厨房
															
														
															
																嵌入式家电
															
														
															
																壁柜
												
													
														
															
																冰箱
															
														
															
																现代
															
														
															
																地板
															
														
															
																油烟机
															
														
															
																现代简约
															
														
															
																烤箱
															
														
															
																橱柜
															
														
															
																厨房
															
														
															
																嵌入式家电
															
														
															
																壁柜
															
														
													
												
											
餐厅相邻着厨房,从厨房通向家政阳台,保姆为这个区域的常用者。为了保证居住者和来访客人的隐私性,设置了可电动操控的隐形门,让繁杂琐碎的生活细节都停在门后。
起居室和书房处在由动转静的过渡空间,这儿与带着会客属性的客厅不同,是小黄和小张更放松的安全角——夜半闲暇,打会儿游戏,看个电影,包裹的空间比开敞的客厅更有气氛。
在每个线条都经过计算的理性空间里,天然的材料能赋予空间温度。天然的石材无需矫饰,岁月流逝的痕迹才构成生活的记忆。因不完美而真实,因真实而有趣。
主卧的松叶绿似乎是一次小变调,但平和干净的基调始终没变。
*Poliform Onda床
相关案例推荐
理居设计
设计师相关作品
 
 
 编辑精选
编辑精选 
												
													
														
															
																 
												
													
														
															
																 
												
													
														
															
																 
												
													
														
															
																 
												
													
														
															
																 
												
													
														
															
																 
												
													
														
															
																 
												
													
														
															
																 
												
													
														
															
																 
												
													
														
															
																 
												
													
														
															
																 
												
													
														
															
																 
												
													
														
															
																 
												
													
														
															
																 
												
													
														
															
																 
												
													
														
															
																 
												
													
														
															
																 
												
													
														
															
																 
												
													
														
															
																 
												
													
														
															
																 
												
													
														
															
																 
												
													
														
															
																 
												
													
														
															
																 
												
													
														
															
																 
												
													
														
															
																 
												
													
														
															
																 
												
													
														
															
																 
												
													
														
															
																 
                                                     
                                                         
                                                     
                                                         
                                                     
                                                         
                                                     
                                                         
                                                     
                                                         
                                                     
											
											
										 
											 
											 
											 
											 
											 
														 
														 
														 
														 
														 
				 
                
 粤公网安备 44010602000156号
粤公网安备 44010602000156号