前言:
这是一个错层户型,没有承重墙,构造柱区隔出原户型的三房两厅,一侧是超长露台,没有顶棚封窗的部分,基本是处于“浪费”的状态。屋主一家五口,儿女双全,长辈也一同居住。
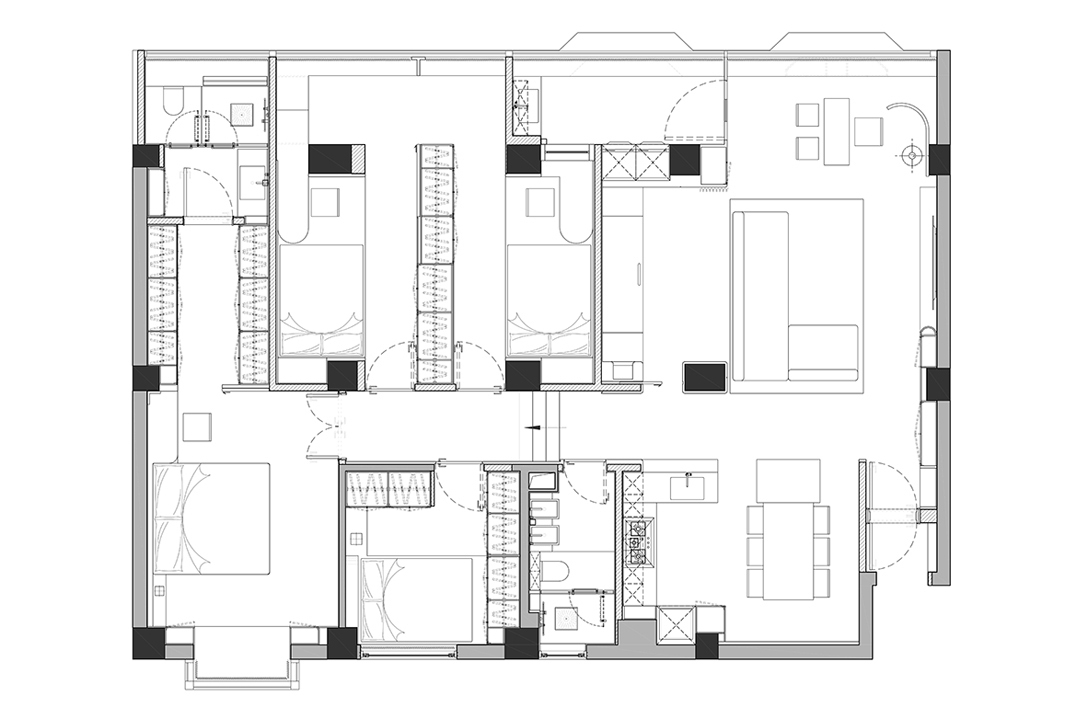
通过墙体的重构、露台与室内兼并扩容,我们将新的户型结构变为4.5房,外露的柱子则通过造型弱化美化。
两个孩子有同样公平的空间;平时作为客厅一部分的区域,在有亲友留宿需求时也能变身客房使用。
硬装材质以橡木饰面、灰调石材,搭配黑色系的材料,极尽克制的中性美学,能容纳更长远的生活变化。
平面功能上,主要实现了:
1.玄关:原有大门退进室内,保证邻里间的隐私。室外玄关设置半高鞋柜,门外换鞋,让室内保持更长久的整洁;半高柜的台面亦能作为临时置物区,空出手从容开门,或是快递外卖的放置,干净卫生。
2.客房:与客厅联通,通过模块化沙发的灵活布局,附加隐藏式隔断,可以根据使用场景实现三种空间形式。
3.儿童房:释放出原先主卧衣帽间过大的面积,将两间儿童房均分。相似的空间布局代表的是父母公平的爱。
原户型的大门和邻居极限贴贴,一出门保不齐撞个满怀。
我们将大门退进室内,与邻居、公区保持距离,保证彼此多一些些的隐私和安全。
【面积置换】
两户直角距离太近,如果大门内开,室内布局受制于开门半径的占用;如果大门外开,巧遇邻居同时出门,两扇门必然互相影响。
内退后大门可以自由外开,室内布局更加灵活,能够有效使用的面积,实际上是从室内玄关置换为室外玄关,而这个“室外”仍为私有,并不会被牺牲。
【缓冲地带】
私有的室外设置半高柜,可以实现:
A.落尘功能|门外换鞋,更长久地保持室内洁净,鞋子收进柜内,保证公区整洁不影响邻里;
B.置物功能|有时采购回家,抱个孩子提个袋子,不方便按个手指;又或者,外卖快递习惯等人离开后再拿。半高柜的台面方便顺手,总好过随手扔在地上膈应洁癖星人。
【公私分区】
墙顶造型、地面饰材与公区做区分,更贴近私宅装饰元素,加上规划好的功能储物,从容有序,回家的心情总是好的,也不会因为界限模糊被外人侵占使用。
玄关灯光辅以传感器,通过私宅电路控制,即使公共设备老旧损坏或是物业不作为,无需仰仗他人,总有一盏灯等你回家。������������
餐厅与玄关间墙,融合了解构主义的设计手法。将一面墙,分解再构成,体块大小的对比制造出视觉冲突。顶上预留光源,引导视线向上延伸,下方的平面空间可以做一些mini造景。回家进门的动线,便伴随了仪式感。
通过橱柜立面、吊顶顶面的材质关联,厨房在联通开放的空间中形成独立的整体。横穿厨房、过道、客厅的大梁被饰面遮蔽,过道错层上行的层高单独释放出来也不至于突兀。
餐桌与岛台靠近厨房,可以作为备用操作台面,餐桌总长2200mm,日常5人用餐时,可以缩进岛台空出更多过道空间。
客厅吊顶通过脱缝、弧形过渡,把两道大梁的硬伤风格化。玄关柜的体块穿插,又将原本被梁顶分割的空间做了关联,重新形成整体。
原本的客厅与阳台有明显的区域界限(图2),拆除墙垛后原先的阳台作为客厅一部分的泡茶区,进门视线得到最大的延伸。
以构造柱为区分,前方是常规客厅区,后方是休闲区/客卧区。沙发选用模块化的款式,构造柱包裹饰面融入口袋门的收口,沙发背后预留拉帘,根据使用场景变化空间布局,便能实现不同的功能。
1.日常布局,沙发面对电视,面宽更大的客厅显得通透开阔。
2.聚会布局,沙发面对卡座,形成围合,面对面的交流亲密无间。
3.客房布局,拉出卡座下的抽屉式折叠床,关上布帘及口袋移门,形成独立的临时就寝区。
外露的柱子做出弧线造型墙,营造出屏风的效果。CS的Shadow灯像是点睛之笔,光线穿过薄如蝉翼的金属布,在墙面投射出金色的影子,随风变幻。
主卧不同于其他空间,以黑白为主要色调。从进入双开门开始,便充满了仪式感。
床架、床头柜、梳妆台全都定制连成整体,靠背高度在同一水平上,近地的整个深色块有助眠效果,能让人沉静下来。
空调藏在飘窗顶部,黑色风口若隐若现。角落放置氛围落地灯,不锈钢的材质在黑色木饰面的映衬下显得更加凌厉。一半火焰,一半海水,是窗外晚霞的颜色。
好的灯饰,也是空间的重要配角。
相关案例推荐
仧适设计-方毓沛
设计师相关作品
编辑精选

粤公网安备 44010602000156号