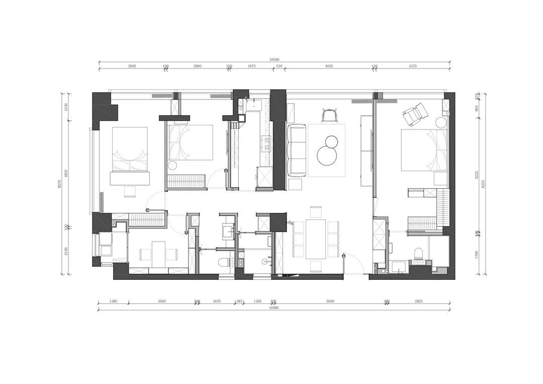
前言: 屋主陈先生是一位儒雅的70后,饱读诗书且看过大千世界,整体装饰元素都是沉稳克制的,灰调的材质虽暗却明,点缀零星橘色软装提亮空间。随着孩子长大,父母适当放手,一家人可以更多的关注自己,空间布局是分离又联合的。
进入这套房子前需要经过一段长且逼仄的公共过道,打开家门,全览客餐厅,视野顿时开阔,是回家的舒心。进门右侧即可坐下换鞋,挂好外套包包,往前走两步推开主卧房门,更换舒适的家居服,简单洗漱,沏一杯茶,坐下翻看一本书,全然忘却在外忙碌的疲惫。
陈先生的女儿已经上高中,相比起来陈先生夫妇二人在家时间更多,主卧与公共区域更近。女儿房在空间的另一端互不打扰。但他们不会全然分离,爸爸在书房看书,妈妈在阳台收拾衣物,女儿打开房门一家人也会相遇,坐下一起喝喝茶,讨论书中的典故,即使身后是生活的琐碎也有欢声笑语。
公卫做了三分离,长辈过夜或是有亲友来访,不容易堵车。为了保证马桶排污通畅,没有移位,所以将淋浴靠
入户吊顶与餐边柜、换鞋区用了相同材质划分出了空间。大门这一侧做了整面的木饰面护墙板,将强电箱也隐身其中。(ps:这里有个失败经验分享,之后做这种护墙板隐藏式的强电箱,如果是有纹路的板,尽量让定制方在一块板上切出来,这样纹路能连起来,隐藏的效果也会更真实一些)
餐边柜作为公共区域的水吧台,设置水具酒具等实现就近取物的动线,钢制层板同时具有展示陈列功能,下方柜门也可满足收纳。夜里只开层板灯和餐桌吊灯,三五好友相聚品酒谈天,氛围恰到好处。
百叶帘与格栅墙相呼应的竖向线条、吊顶的平立面颜色对比、吊顶顶部线条叠级处理,延伸了视觉效果,弱化层高不足的情况。
公共空间的墙体都做了饰面装饰,但没有过多的线条造型;家具表达的设计语言也是沉稳的;即使是B&O的音响,只选用了简洁的单色。整体空间是克制的,讲究却不张扬,非常符合陈先生的气质。
公共空间做了一整面的格栅墙来延长视觉感,将主卧门和鞋柜都做了隐形处理,关上门能更好的保证空间完整性与私密性。
原本的厨房很小,放置水槽和灶具后台面和柜内空间都很紧张。厨房墙向隔壁卧室借了一些空间,得到现在的U型厨房,烟道用斜角柜削弱压迫感,左侧35cm深的台面可以摆放一列小厨电,节省出富余的操作空间,也增加了相应储物量。
相关案例推荐
 
							仧适设计-方毓沛
设计师相关作品
 
 
 
												
													
														
															
																 
												
													
														
															
																 
												
													
														
															
																 
												
													
														
															
																 
												
													
														
															
																 
												
													
														
															
																 
												
													
														
															
																 
												
													
														
															
																 
												
													
														
															
																 
												
													
														
															
																 
												
													
														
															
																 
												
													
														
															
																 
												
													
														
															
																 
												
													
														
															
																 
												
													
														
															
																 
												
													
														
															
																 
												
													
														
															
																 
												
													
														
															
																 
												
													
														
															
																 
                                                     
                                                     
                                                     
                                                     
                                                     
                                                     
											
										 
											 
											 
											 
											 
											 
														 
														 
														 
														 
														 
				 
                
 粤公网安备 44010602000156号
粤公网安备 44010602000156号