前言:
“屋主是一个时尚行业的从业者,女业主本人跟这个家的风格非常契合,美中带一点浪漫,把生活和自己都过成了诗。✨
一个家无论大小,都能雕琢成自己想要的空间,喜欢浪漫,喜欢复古,这样的空间势必会有一点时间的沉淀与内敛。
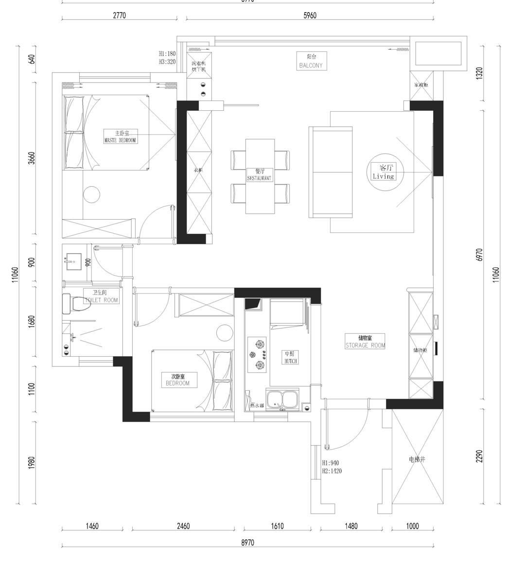
房子面积100㎡,设计师将空间分为,公共休闲区以及睡眠区,在100㎡中,设计师重点为客餐厅做了大面积的设计,敲掉一个房间,得到一个大的客餐厅,同时把收纳空间也重点转移到公共空间中;
胡桃木色的地板以及相关家居软装的配合,为了避免整体视觉的突兀感,设计师在材质和空间细节这些地方,运用了一些经典的欧式复古元素。
中古风简称MCM,也被称为是中世纪现代风格,在20世纪30年代到70年代在欧美非常流行的设计风格,融合了包豪斯现代主义、有机建筑等等精髓,成为了现代主义的发展和延续。
整屋在风格情怀上,它追求复古怀旧,在设计理念上,它追求现代主义和极简主义,在设计形式上,它追求创造经典。在原则上,它强调功能大于形式。
女业主本身从事的时尚相关行业,家里既要拥有生活的浪漫,也需要容纳生活的零碎,所以在客餐厅中,设计了大量的收纳柜,让整个空间既能够保持舒适的状态,也能拥有大量的功能容量。
餐桌选用了圆弧的长形餐桌,一方面跟本身的格局比较匹配,另一方面有机线条的出现,给整个空间处处增加了浪漫的生活气息。
餐桌的出现,通过几何体块和有机曲线的对比和融合,让整个家具看上去既满足实用性,同时也具备很高的观赏价值,也是一个雕塑或者装饰品。
不同于客厅的色彩,厨房运用了黑色冷色调,小白砖上墙,能与深色形成对比的颜色;黑色橱柜和白色墙面的过渡,给人感觉更轻盈、更平衡的生活质感。
相关案例推荐
上海鸿鹄设计
设计师相关作品

粤公网安备 44010602000156号