前言:
本案的两位业主都是设计师,这户房子是他们的婚房,是一个家庭的组建的开始,里面有哪些属于他们的故事呢?
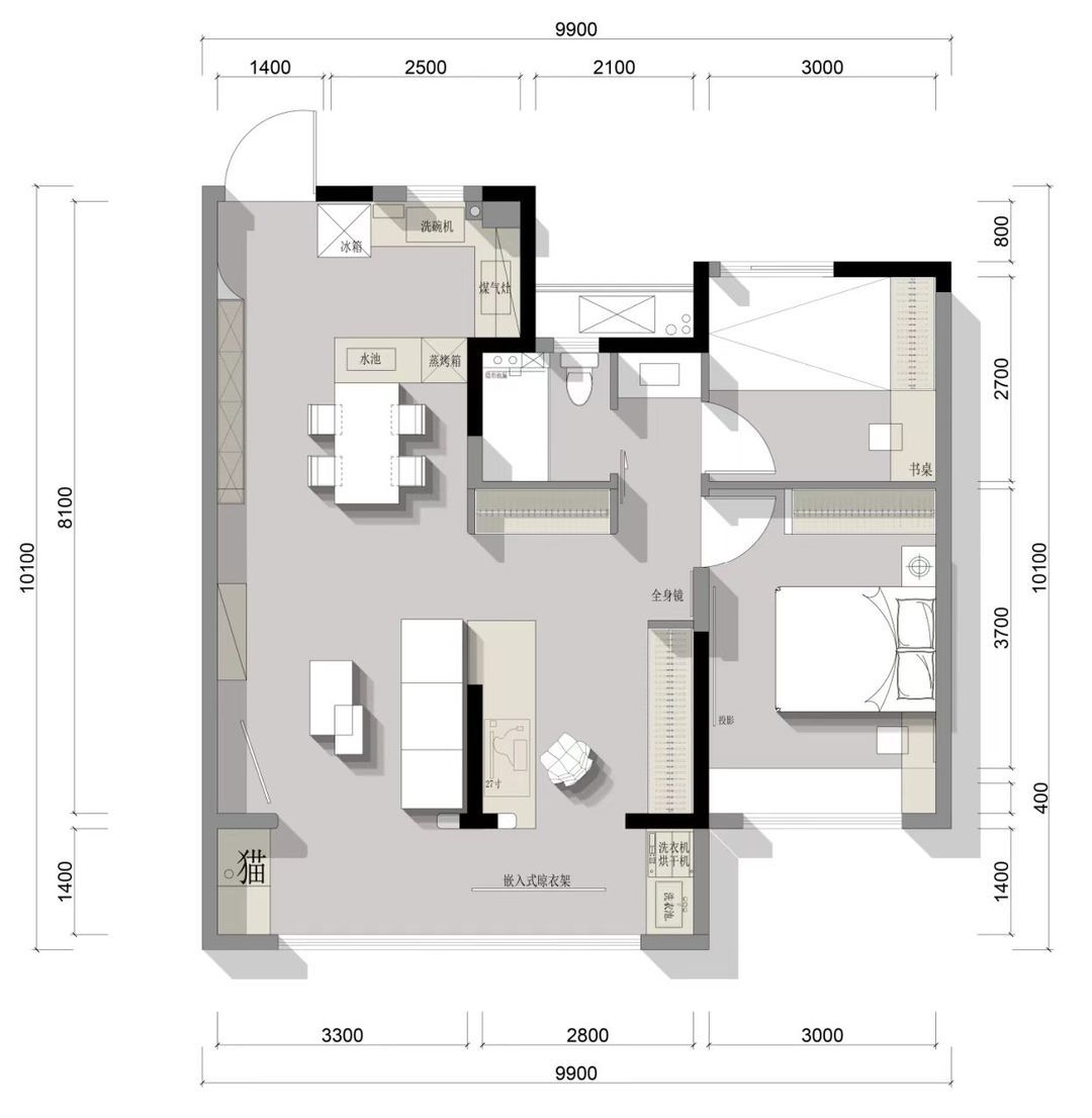
夫妻二人需要有一个办公的空间,既独立也要私密,同时他们家里有一只猫,所以还要保留适宠设计。
■ 日常生活状态
客厅及开放式书房,空间结构上对房屋进行拆除改造,将南边的次卧墙体拆除,改造成一个开放式的书房,不仅能极大的增加业主对书桌的需求,也能在空间上让整个客餐厅公共区域显的敞亮,增加公区的采光及视野。
整屋的状态呈现出一种慵懒随意,却不是凌乱的生活氛围感,设计师从颜色,软装材质着手,来营造属于他们的生活空间。
业主选择这款沙发,是出于家里宠物是猫咪,这种材质的沙发除了更适合空间,也更适合有猫咪的家庭。
轻硬装重软装,空间通过颜色的对撞,极致体现出住家的温馨和对生活的热爱。
因为业主家里有一个猫咪,所以也给猫咪打造了一个独立的休憩空间,
开放式厨房,因为业主在家做饭的频率不高,从而可以从开放式厨房着手,打开厨房的墙体,可以做到三边的U形厨房台面,相比原始厨房的台面,开放式厨房更加能增加厨房的使用面积,在空间上也能让整个客餐厅更加通透,对于厨房水池的位置,设计师动了一点小心思,并没有像常规设计一样,将水池放置在窗户的下面,而是将水池设置在了面对餐厅的台面上,结合对业主的深入了解,使用水池可以面对着餐厅和客厅,能够最大化的增加和客餐厅的互动性,这样业主也就不会一个人“面壁思过”
餐厨空间的软装也利用了很多胡桃木色,以及藤编元素,来增加空间的故事感,透着时光的缓慢,生活的轻松,以及空间的愉悦。
餐厨区域在日常生活中更多担任着“功能”角色,而“审美”功能往往被忽略,而这个家的设计细节却处处透露着精致,每一处都能有“颜值担当”。
■橱柜的把手别具设计格调
相关案例推荐
上海鸿鹄设计
设计师相关作品

粤公网安备 44010602000156号