前言:
当完全遵循内心
家便是一场造梦的美学
“每个家应有不同,它可以是轻盈张扬也可以柔和优雅,家是什么样子,取决于居住者本身。”
业主是一位年轻的独居女士,以纯粹的悦己作为出发点,无需过分考虑其它因素,充分满足自己的居住需求,将家装成自己最喜欢的样子。
设计将中古法式与现代风格相结合,以绿色+木质为主基调,挑选深胡桃色木质板、花砖、藤编、绿植等元素,并从五感出发,塑造故事感、温馨感、电影般的空间感。场域之间,每一处都充满了故事,每一物都有其独特的语言。
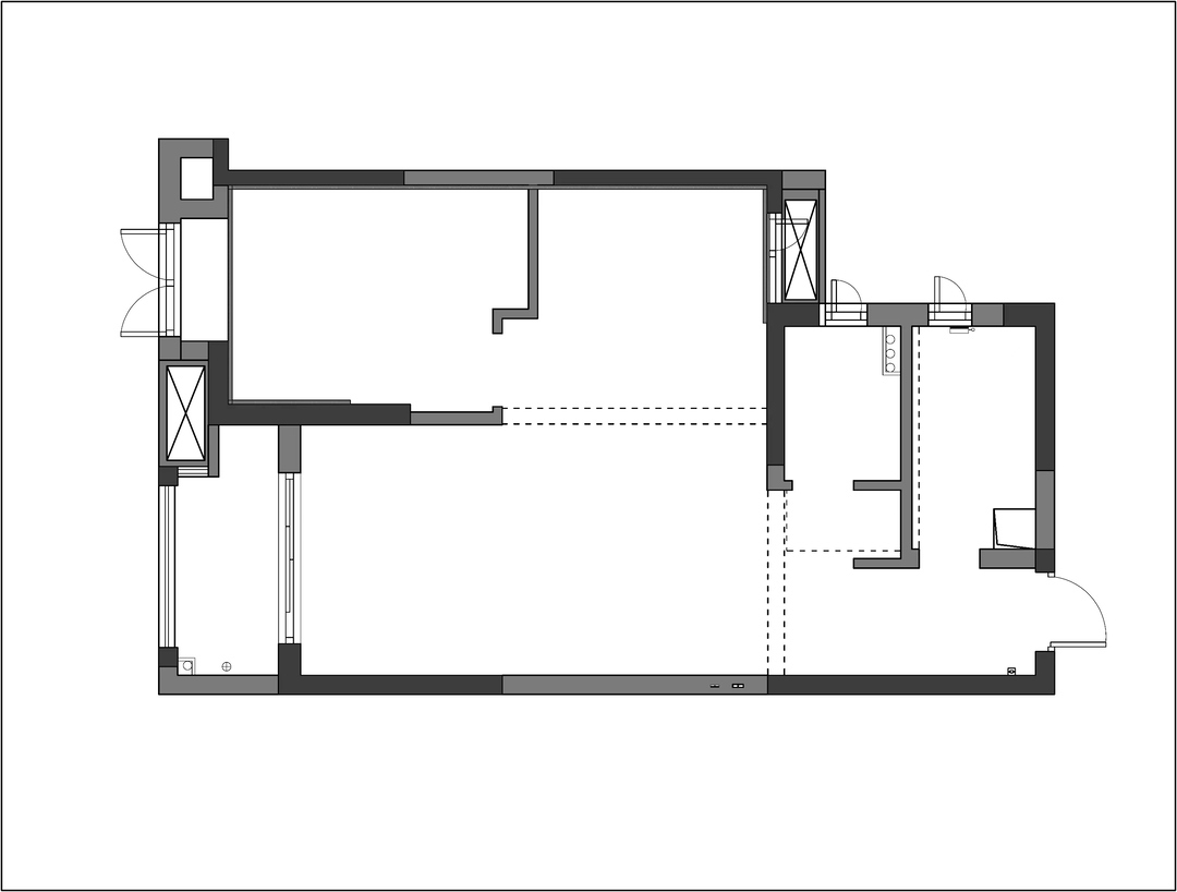
☑入户处将台盆区改向,扩宽玄关走道营造开阔感;
☑台盆区利用悬挑镜面代替墙面,悬挑使阳台的光线穿过,增加了玄关的明亮度,进一步弱化了入户处的逼仄感;
☑客厅纳入阳台,扩大客厅尺度,提升空间感;
☑主卧打通采光较差的小房间,改造为衣帽间,提升主卧功能性与开阔感。
客餐厅通铺人字拼地板,与柔和的奶油白色调共谱温馨与包容的篇章,后续无论是独特的色彩或是材质,都能与之形成绝妙搭配。
客厅自然纳入阳台,一侧放置洗烘一体机保留阳台的使用功能,通过开放的布局将光线引入室内,阳光透过窗户,温柔地洒在地面上,形成斑驳的光影。这些光影随着日光的移动而变化,为室内增添了一抹生动的气息。
氤氲之间,光线与白色系交融营造出一种如梦似幻的氛围,光缓慢移动到绿色沙发上,照耀出丝绒独有的质感,浪漫的气息随之而至。它们相互缠绕、相互渗透,自然与室内正在低声呢喃。
木质小几代替茶几,释放空间,光线和空间盈满客厅,打破空间的阻断,让欢笑声更轻盈,亲友相聚的距离更亲密,让视线延申,再延申,最终触及到空间美学的本质。
由于是一人居住,斗柜承担了收纳角色,设计塑造居所内相对自由的尺度,跟随舒缓的感受将空间的叙事节奏展开,透过时间、空间、光影的力量,营造小户型的开阔感,可自由行走。
餐桌可自由嵌入餐边柜,独处时提供更大的活动空间,朋友小聚时拉开围坐即是一副其乐融融的画面。
就餐区以体态及结构的张弛在开放式空间内得以自洽,协调统一的空间色彩下做局部跳色,薄荷绿餐边柜成为空间中最清新的语素,咖啡角宛如薄荷生巧,在丝滑浓郁中有着一刹的清爽,丰盈感知。
墙面搭配黑白复古壁纸,PU线分割清爽与繁复,黄铜壁灯散发着柔和的暖意,让整个餐厨区更有浓郁的美式复古感,正是这些角落一点点拼成生活的温馨画面。
客厅和餐厅融为一体设计,充分把区域进行最大化处理。巧妙的采光手法结合衍变出休闲慵懒的午后效果,薄荷绿携带木质丰富纹理,勾勒出更多艺术性。
圆弧形餐桌配合空间内的弧形元素,柔化空间的棱角。空间不是恒定的,而是可流动的,开放式的餐厨布局为不间断的社交活动创造条件。
客厅不经意散发出摩登复古的气质,复古灯盘与花卉壁纸,将法式的情怀、温柔的理念、经典的形成,逐渐注入空间内,房屋从空白变成了品位和情感的融合体。
法式双开门搭配黄铜把手,复古优雅,精致大气,留给人无尽的遐想,将进入主卧的仪式感拉满。
卧室打通隔壁的小房间,改造为衣帽间,一改传统的卧室布局。床尾直面飘窗,光影唱响时光的律动,在此能感受到日升月落,真切地触摸到时间的流淌。
蓝色屏风隔断休憩空间与衣帽间,薄荷蓝渲染一个清新的入梦环境,让身心、思绪缓慢荡漾,逐渐归于宁静,编织一场清醒梦。
相关案例推荐
武汉诗享家设计
设计师相关作品

粤公网安备 44010602000156号