前言: 这是位于深圳卓越中寰的房屋改造,屋主是一对年轻的夫妻,目前家里育有一个小宝宝。他们希望在空间改造上整体是通透的,符合一家的生活起居动线,有孩子玩乐的区域,以及希望拥有茶室或书房空间,兼顾每个空间的舒适程度和灵活使用。
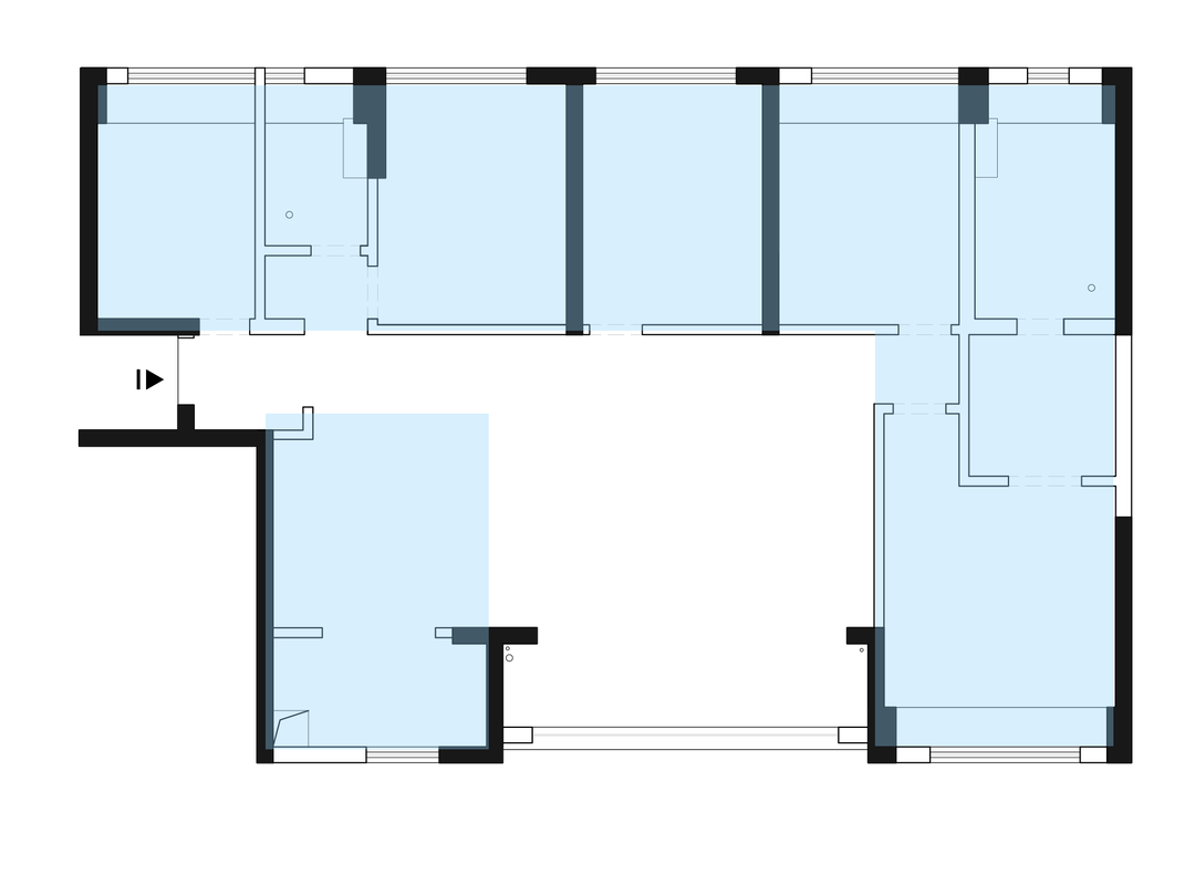
平面弊端| Planar drawback
1、各空间面积分布过于均匀,交通线路单调;
2、空间布局无趣;
3、整体缺少收纳空间。
改造后的平面| The reconstructed plane
1、根据家庭人员结构重新定义每个功能房间使用,让空间面积收放有序;
2、改变平铺直叙的进入方式,可分可合的空间布局,使流线清晰有趣;
3、结合空间布局的调整,动静分区互不干扰;
4、打造极简门墙柜系统,充分将收纳与美学结为一体;
5、探讨住宅的可持续发展状况,以满足当下年轻人面对未来增员的可能性考虑。
探索现代住宅的生活方式,回归真实的居家需要。进入玄关,可看到随着格栅木饰面的韵律延伸空间,展现自然原木带来的宁静;顶天立地的玄关柜,是作为鞋子和外出携带品的收纳。
不同功能区域相互交叠,促使空间的舒适与张力,丰富居家的感官情绪。
拱形代表圆润和谐,内嵌的位置可摆放香薰,及各种钥匙收纳。
充满童趣的多功能房,更是亲子互动区,折叠门的设置将来可作为独立学习区;空间色彩搭配均衡,淡蓝色的开放格,和即将拼凑完整的积木墙,纯粹且烂漫,营造互动有爱的氛围环境。
整合户型布局,保证动线顺畅,彻底打开原有的封闭空间,构造可分可合的多功能房及茶室,让各区域关系传递人与空间的交流,从而促进对话的发生。
将全屋收纳隐入体块,使得空间干净透彻,美观的同时又兼具功能实用。
餐厅既连接厨房,又与客厅贯通,是视觉的中转站;现场制作的餐桌满足6人用餐,弧面的造型,呈现柔和的轻盈感,更给人一种亲切的用餐体验。
冰箱及酒柜巧妙的融入柜体之中,不仅节省空间,更是增加了餐厨区的便捷性与舒适度;木饰面的材质纹理将空间填充富有质感,打破留白带来的单调。
厨房以半墙的玻璃隔断+推拉门设计,将厨房采光提升,更能增强与家人的互动性。
从厨房角度映入眼帘的客厅,拥有着诗意氛围,恰似一副画卷复刻在家中;时间的流动给室内带来无尽的生动鲜活。
现代感空间伴随着极简设计手法的步伐,将门墙柜一体的工艺置入空间,同时促成内嵌的电视背景墙,及隐形的次卧门。天然的材质给空间带来独特而真实的质感,唤起人们内心深处对自然环境的向往,而这些材质所散发出来的自然味道,让整个空间充满了生机和活力。
艺术涂料的肌理烘托出微侘寂的格调,墙顶面映射的光影质感,赋予空间一种近乎永恒的美感。
以简洁为主线,却又蕴含着深邃的内涵,书房设置的双轨道移门,可自由开合,成为两个互不干扰的空间,当作为交谈公事的区域,也不会受到杂音影响。
客厅与书房相连,能够自由地在两个区域之间漫步,更能体现日常生活中与客厅随时互动。
弧形吊顶的设计使视觉柔和,素色墙面、原木墙板,呈现自然的磨砂哑光质感。
卧室以朴实的姿态出现,低饱和度的色调,营造舒适、放松的美学场景,酝酿出理想的归属感,卸下内心压力与疲惫。空间连通的设计,是便于宝宝后续独立睡觉时,可随时照应。
相关案例推荐
 
							九陌空间设计
设计师相关作品
 
 
 编辑精选
编辑精选 
												
													
														
															
																 
												
													
														
															
																 
												
													
														
															
																 
												
													
														
															
																 
												
													
														
															
																 
												
													
														
															
																 
												
													
														
															
																 
												
													
														
															
																 
												
													
														
															
																 
												
													
														
															
																 
												
													
														
															
																 
												
													
														
															
																 
												
													
														
															
																 
												
													
														
															
																 
												
													
														
															
																 
												
													
														
															
																 
												
													
														
															
																 
												
													
														
															
																 
												
													
														
															
																 
												
													
														
															
																 
												
													
														
															
																 
												
													
														
															
																 
												
													
														
															
																 
												
													
														
															
																 
												
													
														
															
																 
												
													
														
															
																 
												
													
														
															
																 
												
													
														
															
																 
												
													
														
															
																 
												
													
														
															
																 
												
													
														
															
																 
												
													
														
															
																 
												
													
														
															
																 
												
													
														
															
																 
												
													
														
															
																 
												
													
														
															
																 
												
													
														
															
																 
												
													
														
															
																 
												
													
														
															
																 
												
													
														
															
																 
                                                     
                                                         
                                                     
                                                     
                                                     
                                                         
                                                     
                                                         
                                                     
                                                         
											
											
										 
											 
											 
											 
											 
											 
														 
														 
														 
														 
														 
				 
                
 粤公网安备 44010602000156号
粤公网安备 44010602000156号