前言:
本案是来自一位90后女孩的家,她对空间的色彩搭配要求很高,自我的探索与期待愈发深刻,于是,我们将其设计需求融入到整体方案,最终也满足她对家的所有幻想。
空间围绕松弛与活力的主题展开,简约的微水泥背景铺设,像一块纯净的画布,等待着你去描绘生活的色彩;动线布局与多元艺术的处理,是自由与创意的交织,绽放出空间的无限魅力,也让心灵得到真正栖息的地方。
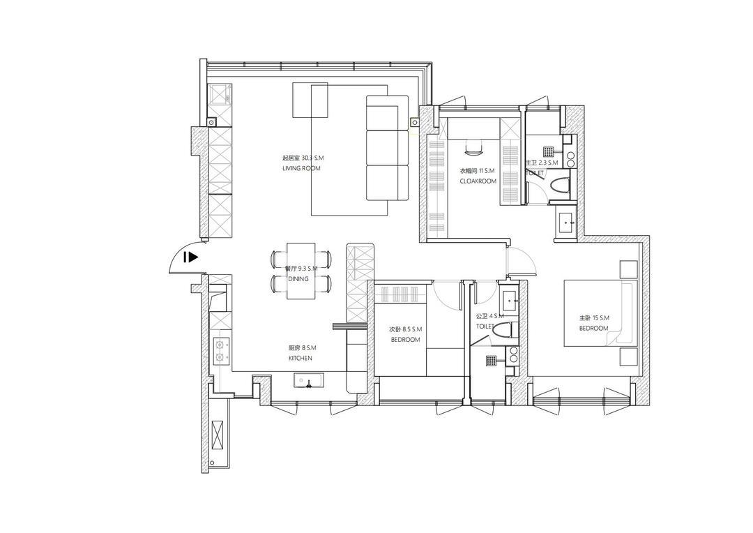
平面弊端 | Planar Drawback
1、主活动区客厅面积狭小,空间利用率不高;
2、两个次卧空间使用频率不高,易造成空间的闲置浪费;
3、全屋收纳空间不足,主卧储物面积较小,缺少衣帽间的位置;
4、封闭式的厨房操作面积有限,缺少西厨,无法容纳多人共同下厨,互动性较差。
改造后的平面 | The Reconstructed
1、将原阳台包揽进客厅区域,打造全视野落地窗的景观阳台,形成一个多元化的家居空间,同时采光和视野也被放大;
2、舍弃了一间多余的次卧,将改造成衣帽间,连通主卧设计为半开放式的大套间;
3、开放式厨房将功能分化在更多位置,操作台面得到了延伸,同时获得西厨空间以及转角收纳展示柜等,让厨房更加实用。
踏入家门的那一刻,没有了传统隔断的束缚,整个空间仿佛被赋予了生命,流畅而灵动。通过不同颜色的家具搭配,创造出活力和动感,使空间更加生动有趣。
整个空间采用了开放式的布局设计,各个功能区域紧密相连,也让居住者的行走动线变得无比便捷。为了增强室内的采光效果,设计师巧妙地引入全景落地窗,搭配电动纱帘,可随时调整室内光线,营造出最舒适的居家氛围。
餐边柜的设计,兼具收纳及烤箱、饮水机的功能,连接厨房包裹着嵌入式的冰箱,这样不仅提高了空间的利用率,也使得餐厅区域更加整洁有序。
建立室内美学的基础,立足于空间的便利性与功能性,餐厨利用玻璃推拉门的形式,打造两个可自由闭合的空间,拥有了更加开阔的烹饪环境,同时也是与家人交流互动的地方。
厨房操作动线舒适便捷,台面利用岩板铺贴,暗色系的黑与餐桌炽热的红色形成对比,整体的黑红色系,在空间中流畅的连贯起来。
空间的丰富层次在于家具的巧妙搭配,简约的空间背景,在色彩家具的叠加下,共同织就一幅有意境的生活艺术画。
意大利Edra的花瓣沙发,流线型的设计及舒适的坐感,带来一种温馨而时尚的氛围,搭配荷兰Kooij的油画桌,它是用手工绘制而成的色彩图案,充满着艺术感,与沙发组合一起赋予空间无限遐想。
这里摆放Kabuki的蕾丝落地灯,优雅的外观,柔和而浪漫,以及女主最爱的Brionvega笑脸音响,外形经典的复古设计,在家中还能作为一件艺术品来欣赏。
家具的选择紧随居住者的个性,布局则透露出随性而不失格调的气息。冷暖色调的对比,使用互补色来强调空间的视觉焦点。
墙面微水泥的肌理,通过不同光线产生丰富的纹理效果,形成一种引人探索的过道空间。
主卧套间融入了多功能分区,包括衣帽间、洗漱台及标准的淋浴卫生间区域,每个部分都被精心安排在合理的位置,既互不干扰又紧密相连。
半开放式的布局设计提供了空间上的灵活性,便于居住者在不同生活场景间自如切换,享受便捷与私密并存的舒适体验。
简约弧形点缀的空间,用材质和色彩,勾勒出温润素朴之感,在这样的空间中栖息,一切都显得如此真实自然,线条的勾勒让细节更为生动,当你身处其中,你会有一种被治愈心灵的感觉。
卧室空间,其深远的意义超越了简单的独处与私密性考量,通过精心挑选的柔和配色与不同的空间体块融合,将艺术美学渗透在空间中。
次卧延续着空间的主基调,在保证还原基础的功能下,将窗台打造成适合阅读的安静角落,同时让整个房间的氛围更加宁静和放松。
在有限的空间上,结合美观与实用性,打造顶天立地的收纳柜,减少空间整理的负担。
相关案例推荐
九陌空间设计
设计师相关作品
编辑精选

粤公网安备 44010602000156号