前言:
屋主需求
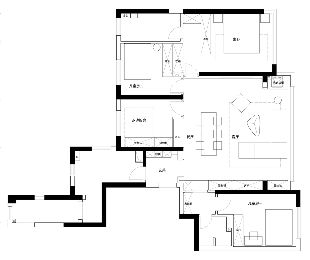
· 保留江景房的大空间以及良好的观景效果
· 满足家有二娃的学习需求+储物空间
· 中厨操作空间有限 增加日常西厨功能
· 预留钢琴位满足儿童使用
· 厨房经过独立玄关离餐厅远
· 客餐厅与阳台中间隔墙阻挡视线和光线
· 阳台功能单一
· 主卧空间大但是做衣帽间尺寸不够
· 没有家政空间
Step 1
阳台拆掉和客餐厅融为一体,采用异形沙发保证客餐厅尺寸正常使用的同时儿童娱乐区也相应变大
Step 2
客餐厅保证了空间最大化储物,把光线从原先阳台引入餐厅区域,餐厅增加了西厨功能区满足日常使用,钢琴、水吧池、直饮机和储物柜融合保证整体感
Step 3
三个卧室房门采用隐形门避免大空间零碎
Step 4
增加家政柜,扫地机各种日常用品就近存放
Step 5
主卧借次卧空间增加储物柜形成开敞式衣帽间,更合理规划储物功能
Step 6
主卫门正对主卧床头,设计成隐形门和壁炉衣柜保证通透也保证储物
客厅是一家四口生活的中心,空间感与自由度是最重要的考量。
将阳台扩进室内,超大幅落地玻璃窗,既保留了一览无余的江景视野,又增加了女儿们的放肆玩耍空间,坐在慵懒的沙发上,享受那些被生活治愈的时光。
整体空间以胡桃木色打底,简单的客厅收纳柜、随性而堆的懒人沙发与异形沙发
艺术品
地毯
客厅
艺术漆
沙发
饰品
现代简约
瓷砖
意式极简
灯具
客厅
艺术漆
沙发
饰品
现代简约
瓷砖
意式极简
电视墙
窗帘
客厅是两个孩子经常玩耍的地方,低矮不规则茶几,边角圆润的款式,给孩子营造安全舒心的环境。
主卫门正对主卧床头,将其设计成了隐形门和壁炉衣柜的样式,保证了通透度的同时,还提供了充足的储物空间。
相关案例推荐
武汉聆宁设计
设计师相关作品

粤公网安备 44010602000156号