前言: 屋主夫妻二人在广州天河从事金融,看遍城市喧嚣与车水马龙;平日里最爱与朋友结伴郊游、聚会品茶、种花赏月。偶然发觉外婆传下的老宅因闲置而日渐破败,于是便想将此老宅改造为远离尘嚣、关注内心自在的“桃源自宅”。老宅属于广州传统民居中的竹筒屋,面宽3.5m进深17m,户型窄长形如竹筒又三面与邻居共墙,让改造设计充满挑战;并且项目隐于市井气息浓厚的海珠老城,步入巷弄深处,虽与车水马龙的喧嚣隔绝,但也给改造施工造成了运输困难。考虑到房子年代久远且缺少维护,原有的青砖共墙、木梁瓦顶已老化严重,轻捏就能捏下砖木结构的粉化层;且原有空间布局为适应十九世纪广州拥挤的市井生活而隔了很多卧室,缺失居住的功能性。屋主二人希望通过重建修复,承载祖辈回忆,注入新的活力,满足居住和家族聚会的功能,且具有舒适居住体验并且可以不断生长的空间
老宅宽3.5长17m,为适应炎热多雨气候和紧张用地条件而用两片瓦顶覆盖全屋,加上左右后三面与邻居共墙无外窗,导致全屋仅有入户与顶上高侧窗的一丁点采光与通风,夏日正午的屋内仍昏暗得需点灯照明且空气浑浊。
所以,我们将设计改造重点落在了“二人世界、动线自由、视线开阔”“现代生活、修旧如故”、“引光引风种绿树,赏花赏月观自在”这三点上。在保留原有屋檐和外形特征的基础上,将内部重组,打造一个时间与空间、功能与内涵并存,当代与传统有序连接的场所。历史建筑的改造设计不仅要还原、保护建筑本体,更重要的是对其所在的空间场景进行再生设计,最终延续老建筑的良性更新
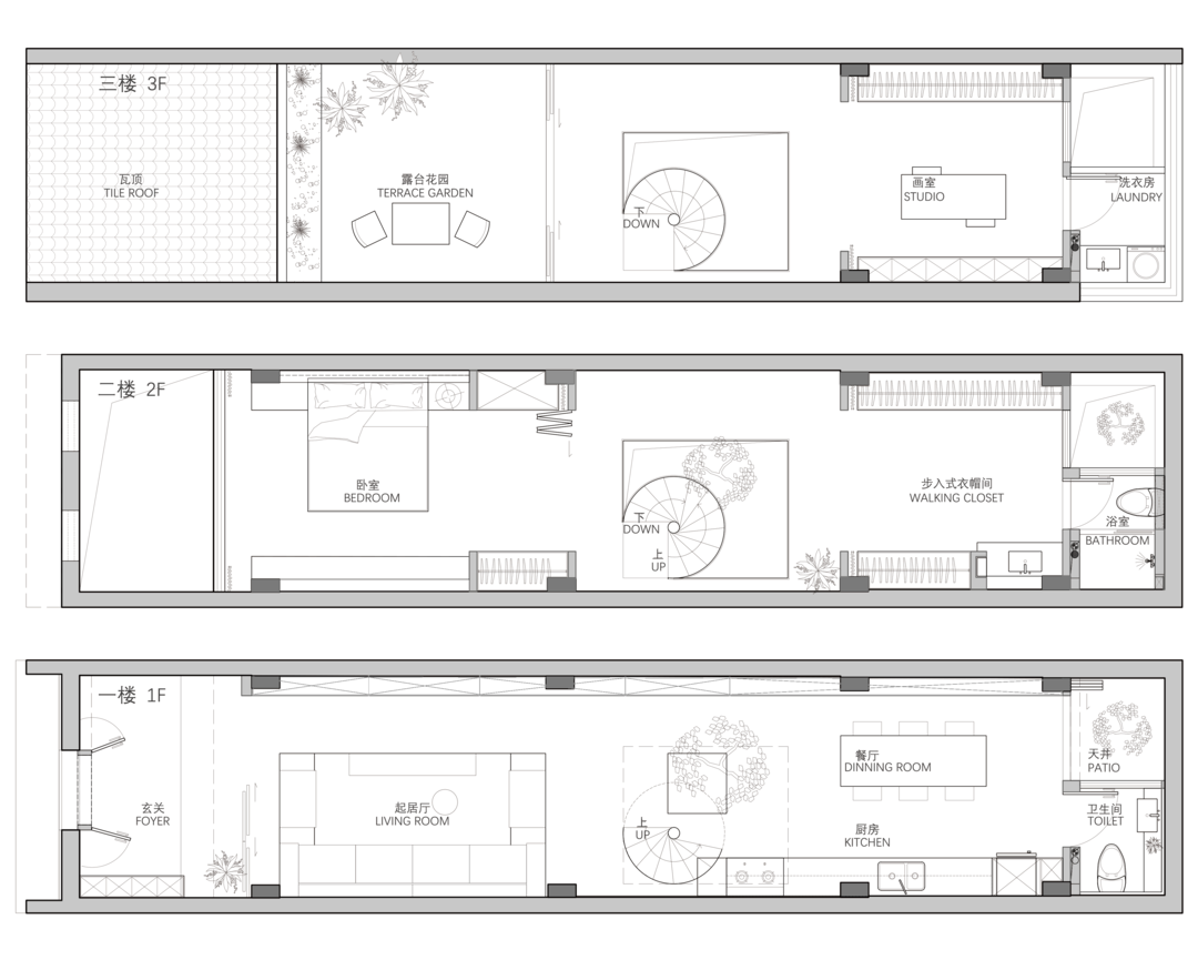
老宅占地面积约60㎡,外立面保留了原建筑竹筒屋框架,保留趟栊门,修复花阶砖,安置旧日时光,将过往的老宅记忆均填充进去,更像一个留住老宅记忆的家庭博物馆。
日常打开大门,不时飘出粤曲小调,沿路偶尔会听到几声吆喝叫卖,感受到了数十年前的市井风情。街巷尺度、建筑形式,不同于快节奏的市中心,承载了广州老西关的点点滴滴,充满了人文和温情。 #玄关 #入户
玄关浓缩了老宅所有历史——趟栊门、老花砖、旧屏风、青砖木梁,挑空的空间让光线、气流和视线自由流动。 #入户 #玄关
曾经用过的老家具和老物件会被整理后陈列其中,可以陪伴在身边并随着时间的沉淀累积不同的韵味。
一楼由保留丰富老宅记忆的入户玄关+完全开放的现代客餐厨+中庭绿植采光井+隐形门背后的观景卫生间组成。以天井为中轴划分两部分空间的开放式主要活动空间。下沉式客厅让长17米的一字型空间更富有层次,通过高低差隐形划分功能区,包围感也可以从心理上缩短人与人之问的安全距离,满足多种形式的聚会。#客厅 #开放式设计
为了让天花顶面呈现出水泥浇筑的原始质感,以及一整面连续不断的顺畅感,特地将这里的梁做成了反梁。将灯具嵌入到结构层,在不做吊顶不占层高的情况下实现平嵌的效果。#客厅 #下沉式客厅
为解决长条型空间的采光与通风问题,在房子的中间打造中空的采光天井,从原来单一采光源变成三个采光源,让房屋能够享受更多的阳光和自然空气,空间也会有一个更通透的感觉。
#老房改造 #旋转楼梯 #采光
同时把交通枢纽的楼梯放在中空位置,方便两边上下,也成为了一个软隔断。旋转楼梯围绕树的生长方向,一日的光阴绕着树流转,树影似时针在室内画圈,四季在外也在建筑之内更替。
#旋转楼梯 #室内景观
视线随着旋转楼梯与树向上观望,整个建筑体感增大,让室内与室外通过光这个自然元素保持交流。 #绿植 #景观
开放式的厨房、餐厅融为一体的四季四景,既在视觉上延伸空间感,打破单个空间的封闭,聚会时大家围坐热闹地闲聊品茶下厨烹饪,为一层整体空间平添一份生活野趣。#开放式厨房 #厨房设计 #餐厅
楼梯由一楼串联各层,形成空间体块,室内动线更加活跃,一方面让空间与空间之间的互动更明显,另一方面令人与人,人与“家”更亲密。透过旋转楼梯缝隙,家人之间在不同楼层中都能构建一种视觉或听觉的联系,形成一种新的陪伴方式,让这个家创造更多趣味性的体验。
在尽头同样植入天井与绿树,形成彷如一个内外部混合的立体花园,弥补老城区绿化空间相对缺乏,寻求居所与自然之间的联系。#花园设计 #端景
卫生间落地窗带来的框景可以感受到的绿意更胜,框住自然特写,自然和人文都被带入这所老屋。即使外面刮风、下雨,在室内依然能享受片刻宁静,并抱有很多遐想。正如《阴翳礼赞》里谷崎润一郎的描述,没有比满眼可见碧空绿叶的茅厕更有乐趣,雨天还可以真切听见从屋檐或树叶上滴落的声响,如厕与欣赏四季的情趣并行。
#洗手间 #卫生间设计
通过砖、木、绿植等材料的形态和材质质感关联,呈现新与旧的融合,让内与外拥有和谐统一的时间和空间感。#洗手台
卧室窗边是玄关上的挑空,拉开窗帘便看到毫无修饰的原始青砖墙与屋顶,形成了自然的窗景,可以透过趟栊门看街上人来人往以及触碰瓦顶下历久弥新的木梁,感受老城老宅的韵味。#主卧 #卧室设计
青砖墙上随机的光斑是太阳透过亮瓦溜入屋内,随着日夜更替与四季变换,光斑也随之移动,犹如日晷般记录太阳的轨迹。一天、一年的时间流逝都可以通过光斑来观察,从光斑的位置移动体现了房子春夏秋冬与日月的变化。 #采光 #砖瓦
从自然中采撷的阳光在房子内恣意地涂鸦,捕捉光影的微妙变幻,将时间的流逝展现在面前。
#采光 #床头
平日里二楼也无需将空间隔断,让风和光和人都能自由流转;休息时将隔断关上则能聚集空调与加强围合感。#挂画 #摆件 #电视柜
三楼则是公共性更强的露台+画室+洗衣房,更多地保留了青砖、新浇混凝土楼板与瓦顶的原始质感和时光痕迹。#露台 #书房设计
以空间为载体,承载时间,一件件旧物被赋予新的生命,旧物的背面,是它们在这里以另一种方式得到延续。依托旧物改变环境气场,物品与空间融为一体相互滋养,成为让人总忍不住再看一眼的印迹,旧的生活痕迹与新的构思在家的每一个角落散布。#书房 #画室
为了强调建筑肌理,留下裸露天花肌理的自然形态,呈现出一种原始的粗粝感。天然质朴、带有肌理的表面,初看并不鲜亮,却会在日后长久的使用过程中焕发活力。#原始 #青砖
通透的采光玻璃顶作为画框,借景了天空与光线以及对面老宅的瓦顶,开阔的视野对比让从一楼步上三楼逐渐呈现桃花源记里“初极狭,才通人。复行数十步,豁然开朗”的感觉。 #阳光房 #露台设计
一个自带故事感的老房子,在技术上是重建,在情感和文化上是修复与传承,满足新的需要的同时又能勾起人们心底的回忆和认同,让老宅可以伴随居住者共同成长。
就这样,我们完成了对老宅空间的开放重组、历史记忆的修复保留、风光景观的引入组织。期待老宅在二人入住过程中增添更多属于他们独特的色彩,陪伴二人度过美好的日日夜夜、岁岁年年。人生匆匆不复返,却燕去燕来,柳枯柳青。
#老屋改造 #旧房改造 #老房翻新
相关案例推荐
一宅一物建筑设计
设计师相关作品
编辑精选

粤公网安备 44010602000156号