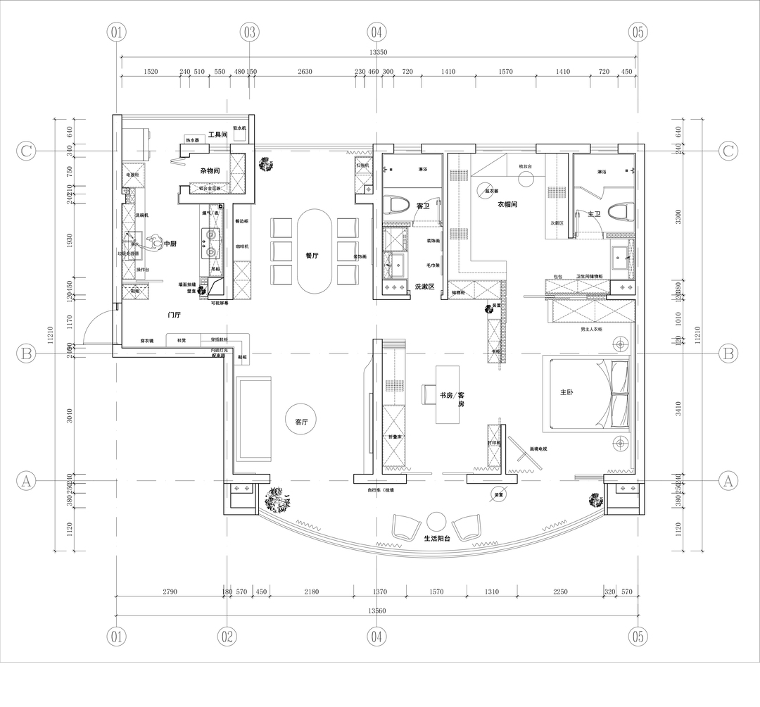
前言: 原户型为三房,老房翻新改造,屋主平时只有二人居住,在结构限制的情况下如何放大房子采光的优势,把空间的延展和联动与未来功能的可变性做结合,是我们需要思考的方向。
玄关由于尺寸限制-考虑进门鞋子包包的收纳,左侧厨房的墙体内退,增加鞋柜,移门内嵌在柜子背后,引入光线。
入户正对房门改成端景柜
右侧在离入户一定的距离做悬浮鞋凳,保证,舒适度之后做悬浮鞋柜,满足收纳的同时,弱化空间闭塞感
空间打开增加储物和光线,满墙穿衣镜增加空间通透感。顶面黑色木饰面处理,步入客厅由暗及明,情境转换
折射空间
整个空间营造一种宁静的氛围
客厅与阳台做了明暗对比。玄关鞋柜延伸到客厅,增加收纳
由于结构墙的限制,墙面做弧形顺延到静区,弱化空间边界
天花通过弧形连接客餐厅,增加空间延伸感,同时弱化梁的存在
在沙发背后做了一个框景,希望营造出小角落的安心感
客厅的框景处理,与玄关和餐厅阳台天花相互延展,在视觉上放大空间
北阳台打通,墙垛包裹在储物柜里面,与餐厅融为一体
在墙垛一侧设置了一排餐边柜,可以满足入户净衣区+餐厅配属功能
南卧室打开后,可以在餐厅与卧室进行互动交流
卧室和书房半开放,光线上得到释放,视线延展
功能上考虑到屋主目前二人居,作为可机动性的房间,可办公可睡觉
空间上可与客厅做交互,空间放大,弱化过道属性。两侧安置储物柜,折叠门与柜子平齐
相关案例推荐
葛彩峰
设计师相关作品

粤公网安备 44010602000156号